EasyManua.ls Logo

Haier HTW5618DNMG - Page 356

Haier HTW5618DNMG
482 pages
To Next Page IconTo Next Page
To Next Page IconTo Next Page
To Previous Page IconTo Previous Page
To Previous Page IconTo Previous Page
Loading...
34
10-Installatie
NL
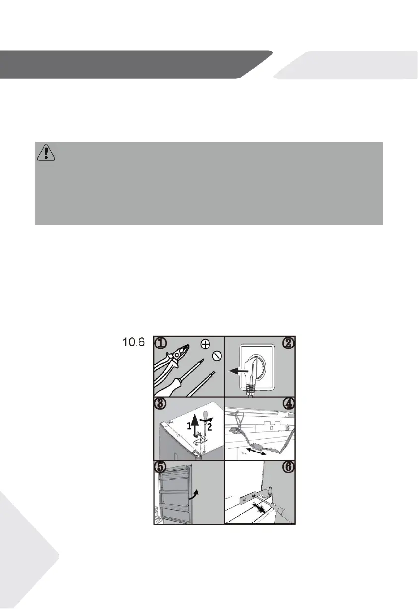
10.6 Omkeerbaarheid van de deur
Voordat u het apparaat aansluit op de voeding, moet u controleren of de zwaai
van de deur moet veranderen van rechts (zoals geleverd) naar links, als dat
nodig is voor de installatieplaats en de bruikbaarheid.
Waarschuwing!
Het apparaat is zwaar. Er zijn twee personen nodig om de deur om te keren.
Haal de stekker van het apparaat uit het stopcontact voordat u eraan
gaat werken
Kantel het apparaat niet meer dan 45° om schade aan het koelsysteem
te voorkomen.
Montagestappen (afb. 10.6):
1. Zorg voor het nodige gereedschap.
2. Haal de stekker van het apparaat uit het stopcontact.
3. Verwijder de bovenste scharnierafdekking (1) en schroef het bovenste
scharnier (drie schroeven) aan de rechterkant los (2).
4. Haal de stekker uit het stopcontact
5. Til de losse koelkastdeur voorzichtig van het onderste scharnier af.
6. Verwijder het onderste scharnier van de bovenste deur.

Table of Contents

Related product manuals