EasyManua.ls Logo

Harman Kardon AVR 2700 - Page 140

Harman Kardon AVR 2700
158 pages
Print Icon
To Next Page IconTo Next Page
To Next Page IconTo Next Page
To Previous Page IconTo Previous Page
To Previous Page IconTo Previous Page
Loading...
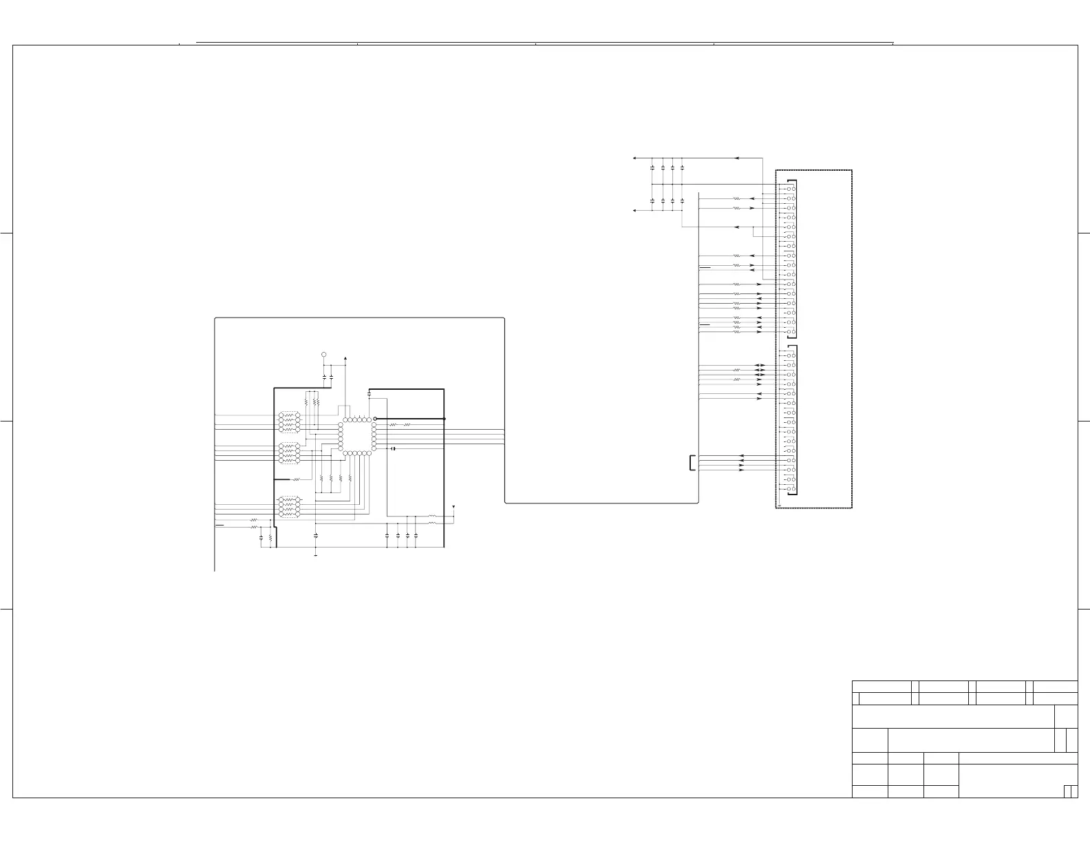
(DM860A_Connector)
05.00.0005.00.0005.00.00
Y.K.YY.K.YY.K.Y
7
6
5
4
3
2
1
REVISION
SCHEMATIC DIAGRAM
4
1
SHEET
MODEL
1
1
1437SCPZ
DRAWING NODESIGN CHECK APPROVE
A
D
C
6
A
B
C
D
5 4 3 2 1
B
AVR270
VDD2A
LED2/nINTSEL
LED1/REGOFF
XTAL1/CLKIN
XTAL2
VDDCR
TXD1
TXD0
TXEN
nRST
nINT
MDC
RBIAS
RXP
RXN
TXP
TXN
VDD1A
RXD1/MODE1
RXD0/MODE0
VDDIO
RXER/PHYAD0
CRS_DV/MODE2
MDIO
25.GND
1.GND
2.GND
3.3.3V
4.RXD0
5.3.3V
6.TXD0
7.GND
8.GND
9.1.9V
10.1.2V
11.1.9V
12.1.2V
13.GND
14.GND
15.NWAIT
16.RXD1
17.NCS2
18.TXD1
19.NREST
20.GND
21.3.3V_RTC
22.MCLK
23.GND
24.LRCK
25.SPI_DIN
26.SCLK
27.SPI_DOUT
28.A/D DATA0
29.SPI_CLK
30.D/A DATA0
31.SPI_NCS0
32.SPDIF_OUT
34.SPDIF_IN
33.NCS3
35.GND
36.GND
37.SSND7
38.USB_DN
39.I2C_SDA
40.USB_DP
41.I2C_CLK
42.USB_VBUS_DRV
43.GND
44.USB_VBUS
45.SPI_REQ
46.GND
47.PDOUT0
48.SSMD5
49.VCO0
50.SSMD4
51.GND
52.GND
53.ETH_LED_SPEED
54.ETH_LED_ACT
55.MIITXCLK
56.SSMD6
57.ETH_RXN
58.ETH_RXP
59.ETH_TXN
60.ETH_TXP
61.MIICRS
62.MIICOL
63.GND
64.GND
CX870 Low Density Connector
ETHERNET
To BCO MODULE
R3210
OPEN
R3211
33
R3212
10K
C3209
1000P
L3205
HCB2012KF-221T25
L3206
HCB2012KF-221T25
C3214
OPEN
C3217
OPEN
C3213
4.7/6.3V
C3218
4.7/6.3V
123[
5678
R3218
33X4
123[
5678
R3216 33X4
123[
5678
R3217
33X4
242322212019
18
17
16
15
14
13
12 11 10 9 8 7
6
\
4
3
2
1
IC322
LAN8720A-CP-TR
R3300
100(1%)
R3299
12K(1%)
C3271
0.1
C3270
0.1
C3268
1uF
C3267
470P
R3302
OPEN
R3303
1.5K(1%)
R3304
OPEN
C3272
0.1
R3301
OPEN
T13
R3305
10K
R3202
10K
R3203
10K
R3204
10K
32
31 29
30
27
28
17
18
19
20
21
2224
2325
26 16
15 13
14 12
11
10
9
8
7
6
53
4
1
2
CN20
29
30
27
28
17
18
19
20
21
2224
2325
26 16
15 13
14 12
11
10
9
8
7
6
53
4
1
2
CN21
R3101 33
R3102 33
R3103 33
R3104 0
R3112 33
R3109 33
R3114 33
R3116 33
R3105 33
R3108 33
R3107 33
R3110 33
C3206
0.1
C3207
0.01uF
C3208
1000P
C3205
3216 22uF/6.3V
C3102
0.1
C3103
0.01uF
C3104
1000P
C3101
3216 22uF/6.3V
R3111 33
R3106 33
BCO_1.2V
BCO_3.3V
CX870A_MODULE_INTERFACE
DEBUG_TX
E_RESET
E_RXDMOEI
E_TXDMIEO
E_256FS
E_SPIMOEI
E_64FS
E_SPICLK
E_DATA
E_SPICS
860SPDIF
USBD-
ESDA
USBD+
ESCL
BCO_VBUSDRV
USB_VBUS
E_REQ
ETH_RX-
ETH_RX+
ETH_TX-
ETH_TX+
E_SPIMIEO
E_FS
ETH_RX+
ETH_RX-
ETH_TX-
MIIPHYCLK
MIIRXD3
MIIRXD2
MIIRXER
MIIRXDV
MIIMDIO
MIIMDC
MIITXEN
MIITXD2
MIITXD3
PHY_RST
E_RESET
DEBUG_RX
BCO_3.3V
BCO_1.2V
ETH_TX+
AVR 2700 harman/kardon
140

Other manuals for Harman Kardon AVR 2700

Related product manuals