EasyManua.ls Logo

Hayward HCC 2000 - Page 7

Hayward HCC 2000
24 pages
Print Icon
To Next Page IconTo Next Page
To Next Page IconTo Next Page
To Previous Page IconTo Previous Page
To Previous Page IconTo Previous Page
Loading...
USE ONLY HAYWARD GENUINE REPLACEMENT PARTS
6
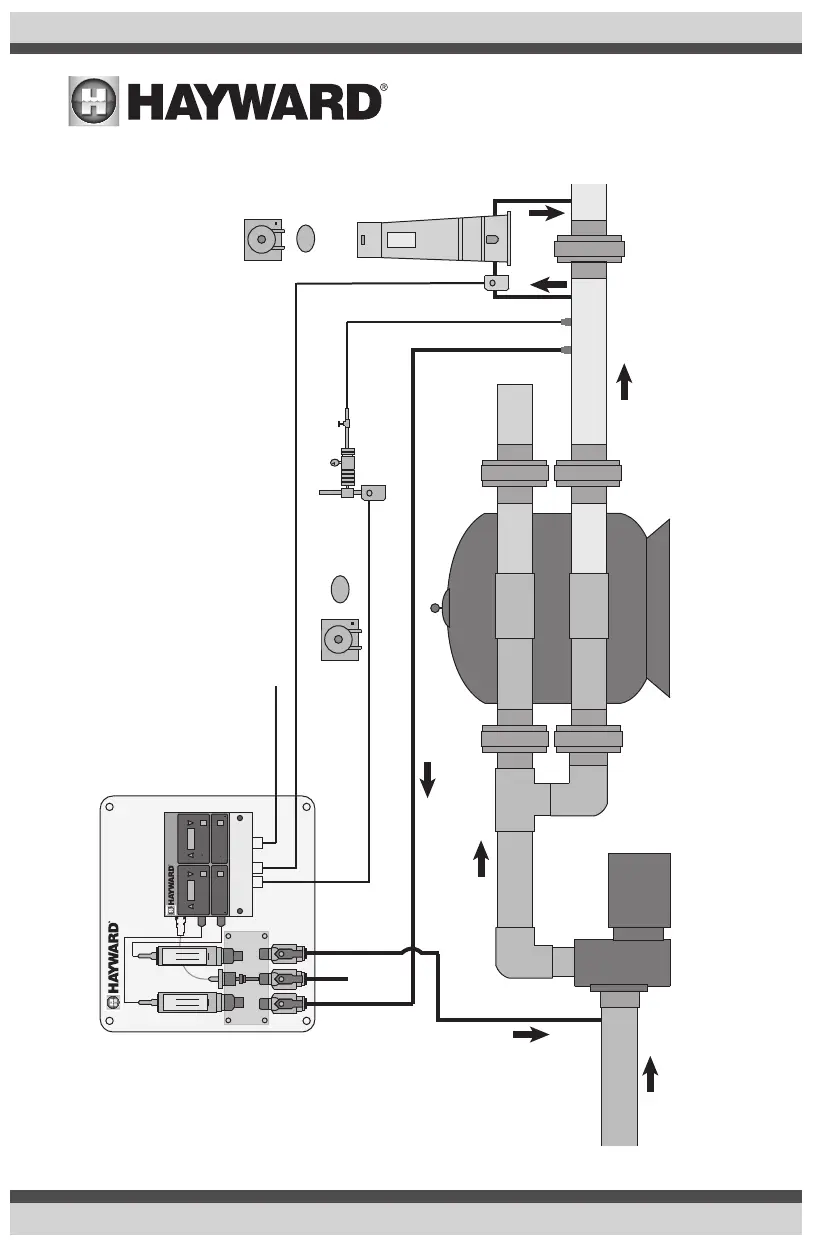
Typical HCC 2000 Installation Diagram:
Flow
Main Drain
and Skimmer
Flow
Flow
Flow
Flow Cell / Flow Sensor Bypass Line
Solenoid
Flow
Pressure
Differential
Solenoid
CAT CO2
pH Control
Erosion
Feeder
or
or
Chemical
Pump
Chemical Pump
Influent
(to Return Line)
Effluent
(to Suction)
SUCTION LINE
PUMP
FILTER
WASTE
RETURN LINE
HCC 2000
CONTROLLER
Sample
Stream
ALL CHEMICALS MUST BE INJECTED DOWN STREAM FROM HEATER AND FLOW CELL
CAT PRO25
ORP
Sensor
CAT PRO15
pH
Sensor
pH
ORP
Flow
pH
ORP
pH/ ORP CONTROLLER
HCC 2000
pH ORP
FEED
ALARM
Setpoint Adjustment
SET
CALIBRATE
Channel Mode Selection
AUTO OFF MANUAL
FEED ALARM
Setpoint Adjustment
SET BREAKPOINT
Channel Mode Selection
AUTO OFF MANUAL
Power Cord
pH Feed Output
ORP Feed Output

Related product manuals