EasyManua.ls Logo

Hayward ProGrid DE3620 - Installation

Hayward ProGrid DE3620
12 pages
Print Icon
To Next Page IconTo Next Page
To Next Page IconTo Next Page
To Previous Page IconTo Previous Page
To Previous Page IconTo Previous Page
Loading...
USE ONLY HAYWARD GENUINE REPLACEMENT PARTS 4
GENERAL INFORMATION
Your Hayward ProGrid
TM
Vertical Grid D.E. Filter combines superior water filtration with ease of operation and totally corrosion-
free construction. It uses diatomaceous earth (D.E.), which is the most efficient dirt remover and filter medium known.
The D.E., which is usually fed through the skimmer at initial start-up, uniformly coats the curved vertical filter elements that are
covered with a custom fitted monofilament polypropylene filter cloth. As pool water is pumped through the control valve into
the bottom of the filter tank, the D.E. surface, or coating, filters out even the minutest particles resulting in clear, clean, sparkling
water.
After a period of time, the accumulated dirt in the filter causes a resistance to flow, the pressure rises, and flow diminishes. This
means the dirt holding capacity of the D.E. has been reached, and it is time to clean (backwash) your filter. With the control
valve in the back wash position, the water is automatically reversed through the filter, flushing trapped dirt, debris and D.E. out
the waste line. Once the filter is backwashed (cleaned) of D.E. and dirt, the control valve is manually re-sequenced to filter
position and a fresh charge of D.E. is added to resume normal filtering.
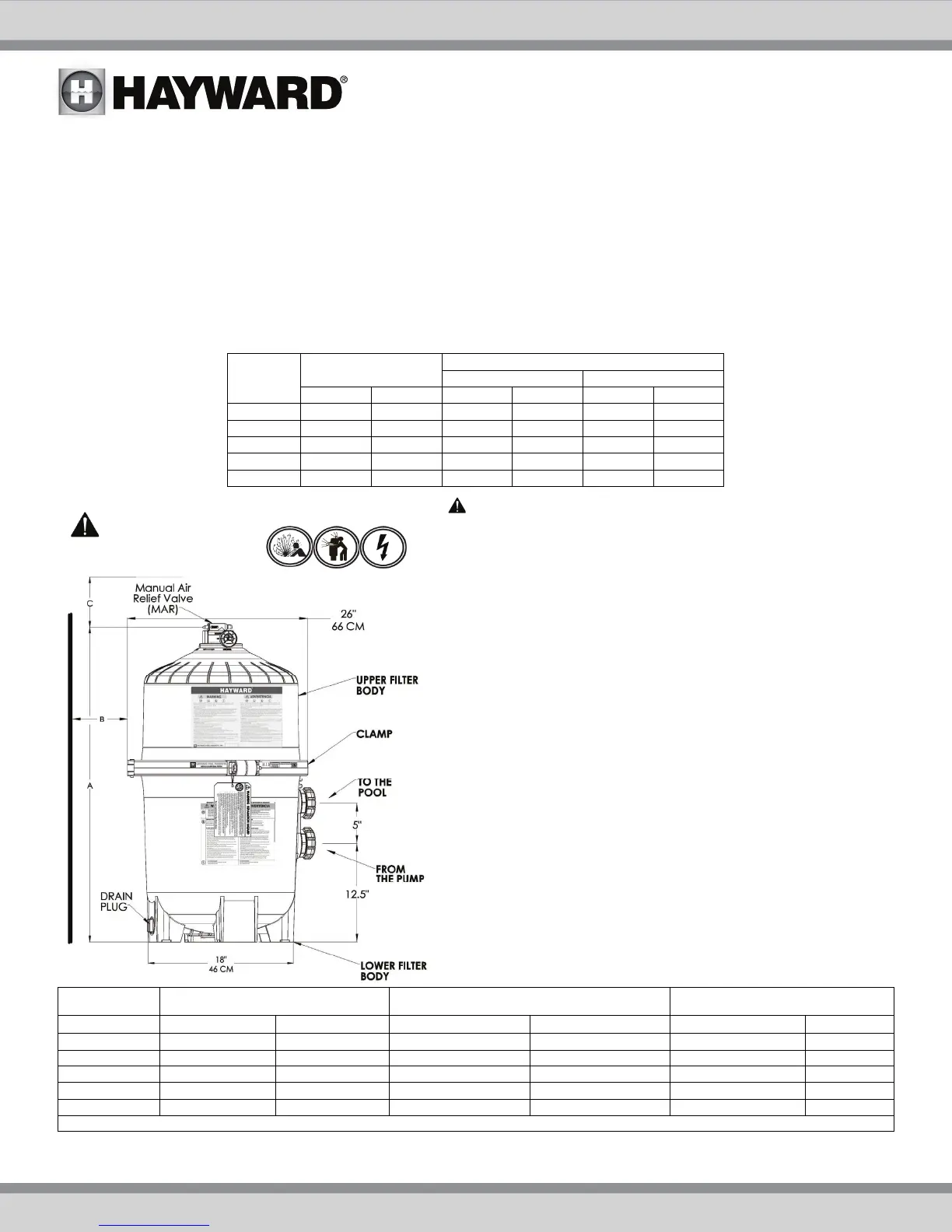
A
REQUIRED CLEARANCE
“B” SIDE “C” ABOVE
IN CM IN CM IN CM
DE2420 32.0 81 18 46 15 38
DE3620 34.1 87 18 46 16 41
DE4820 40.1 102 18 46 18 46
DE6020 46.1 107 18 46 22 56
DE7220 52.0 132 18 46 25 63
INSTALLATION
WARNING
Only simple tools (screwdriver and wrenches), plus pipe sealant for
plastic adapters, are required to install and/or service the filter.
1. The filter system should be installed on a
level concrete slab or
other rigid base. Select a well drained and vented area, one that does
not flood when it rains. Position the filter so that the piping
connections, and winter drain are convenient and accessible for
operation, service, maintenance and winterizing.
2. Position filter so the filter will drain by gravity.
3. If practical, place pump and filter in the shade to shield it from
continuous, direct heat from the sun.
4. Assemble appropriate Filter Control valve (See Page 10 for
selection) to filter. Lubricate the O-ring first (we recommend using
Jack’s 327 Lubricant). Align the two (2) valve pipe connections, with
O-rings in place, with the two openings in the side of the filter tank
and press in firmly. Secure the assembly to the tank connections with
the two bulkhead lock nuts. Do not over-tighten.
5. Connect the pool suction plumbing between the skimmer, pool
outlet and the pump.
6. Install the pool return plumbing.
7. If pressure gauge is not installed, apply Teflon tape to the gauge
threads and carefully screw the gauge into the gauge adapter
assembly.
8. Do not locate pump controls over or near filter.
9. Verify water discharge from the filter manual air relief valve is
directed away from electrical devices
MODEL EFFECTIVE FILTRATION RATE DESIGN FLOW RATE RECOMMENDED AMOUNT OF D.E.
F
T
2
M
2
GPM LPM LBS KGS
DE2420 24 2.2 48 182 3.0 1.4
DE3620 36 3.4 72 273 4.5 2.0
DE4820 48 4.5
9
6 363 6.0 2.7
DE6020 60 5.6 120 454 7.5 3.4
DE7220 72 6.7 144 545
9
.0 4.0
MAXIMUM WORKING PRESSURE FOR ALL MODELS 50 PSI (3.45 BAR)
This product should be installed and serviced only by a
qualified professional.

Related product manuals