EasyManua.ls Logo

Hermann EURA 23 E - Page 38

Hermann EURA 23 E
52 pages
Print Icon
To Next Page IconTo Next Page
To Next Page IconTo Next Page
To Previous Page IconTo Previous Page
To Previous Page IconTo Previous Page
Loading...
38
for the technician
First firing, regulation and servicing instructions
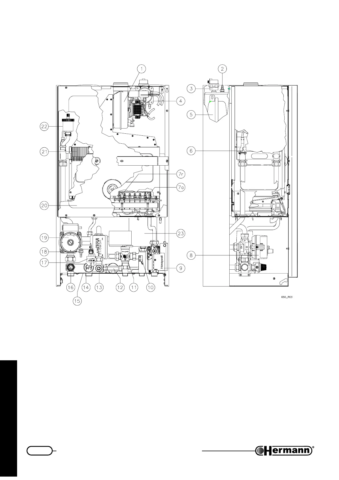
1Fan
2 Domestic minitank temperature sensor
3 Automatic air vent for sanitary minitank
4 Flue pressurestat
5 Expansion vessel
6 High temperature safety thermostat
7a Ignition electrode
7r Flame detection electrode
8 Motorised mixing valve
9 Gas valve
10 Priority flowstat
11 Motorised mixing valve
12 Automatic filling device
13 Drain valve
14 Manometer
15 By-pass
16 Safety valve 3 bar
17 Loss of water switch
18 Flow temperature sensor
19 Pump
20 Sealed combustion chamber
21 Primary heat exchanger
22 Automatic air vent
23 Micro-storage
EURA 28-32 SE

Related product manuals