EasyManua.ls Logo

HIKVISION DS-KH6320-WTE1-W - Installation; Wall Mounting Plate; Wall Mounting with Junction Box

HIKVISION DS-KH6320-WTE1-W
11 pages
To Next Page IconTo Next Page
To Next Page IconTo Next Page
To Previous Page IconTo Previous Page
To Previous Page IconTo Previous Page
Loading...
4 Installaon
It supports wall mounng. There are two installaon modes.
4.1 Wall Mounng Plate
The wall mounng plate and the juncon box are required to install the indoor
staon onto the wall.
The dimension of
juncon box should be 75 mm (width) × 75 mm (length) × 50 mm
(depth).
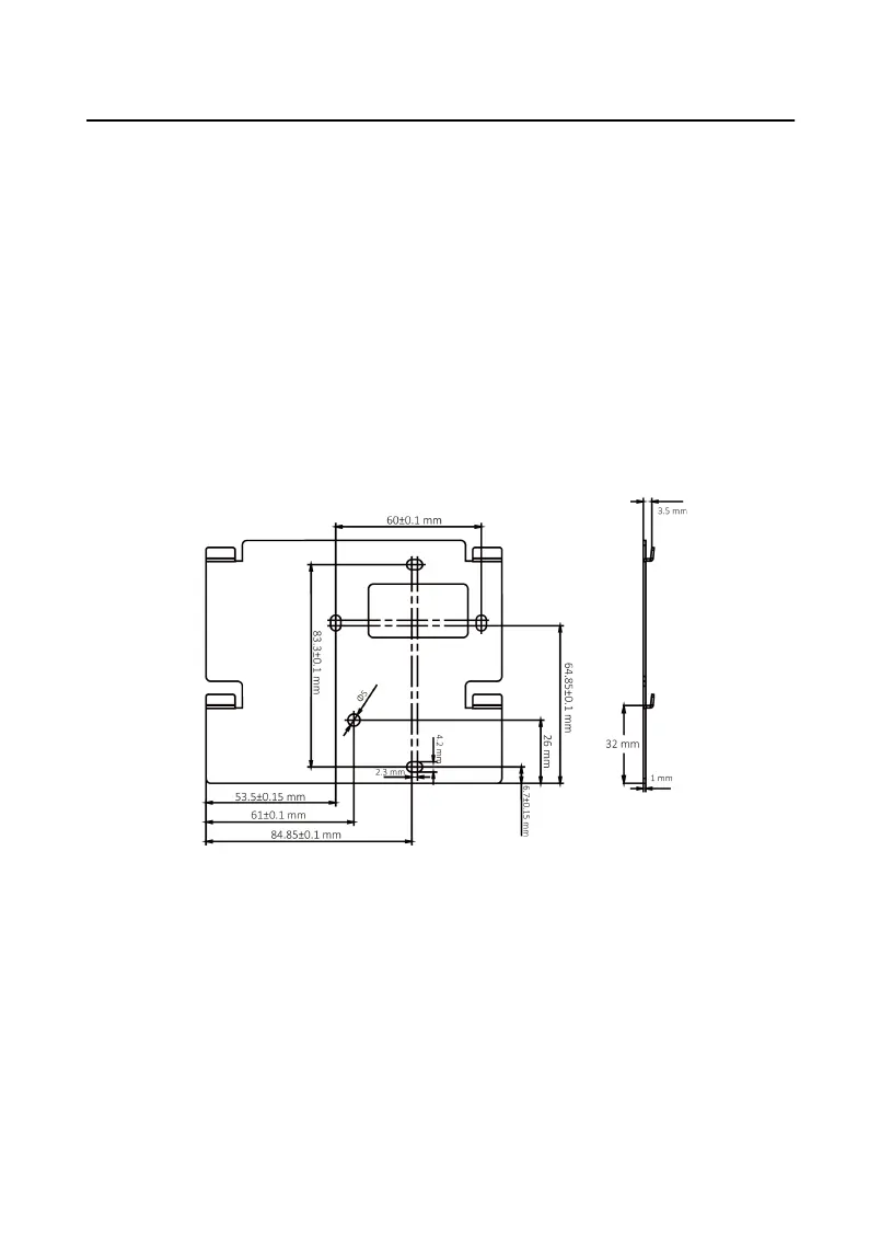
The dimension of wall mounng plate is shown .
Figure 4-1 Wall Mounng Plate
4.2 Wall
Mounng with Juncon Box
Network Indoor Staon Installaon Guide
5

Related product manuals