EasyManua.ls Logo

Hitachi KPI - Desenho Dimensional

Hitachi KPI
230 pages
Print Icon
To Next Page IconTo Next Page
To Next Page IconTo Next Page
To Previous Page IconTo Previous Page
To Previous Page IconTo Previous Page
Loading...


PORTUGUÊS
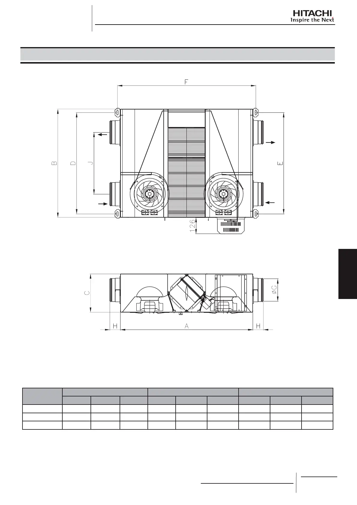
10. DESENHO DIMENSIONAL
10.1. MODELOS KPI-(252~802)(E/H)2E
Modelo
Dimensões Suporte para tecto Ligação de conduta
A B C D E F G H J
KPI-252E2E         
KPI-502(E/H)2E         
KPI-802(E/H)2E         




NOTAS:
OA: Ar exterior
EA: Exaustão de ar
RA: Retorno de ar
SA: Fornecimento de ar


Table of Contents

Related product manuals