EasyManua.ls Logo

Hitachi KPI - Massstabgerechte Zeichnungen

Hitachi KPI
230 pages
Print Icon
To Next Page IconTo Next Page
To Next Page IconTo Next Page
To Previous Page IconTo Previous Page
To Previous Page IconTo Previous Page
Loading...


DEUTSCH
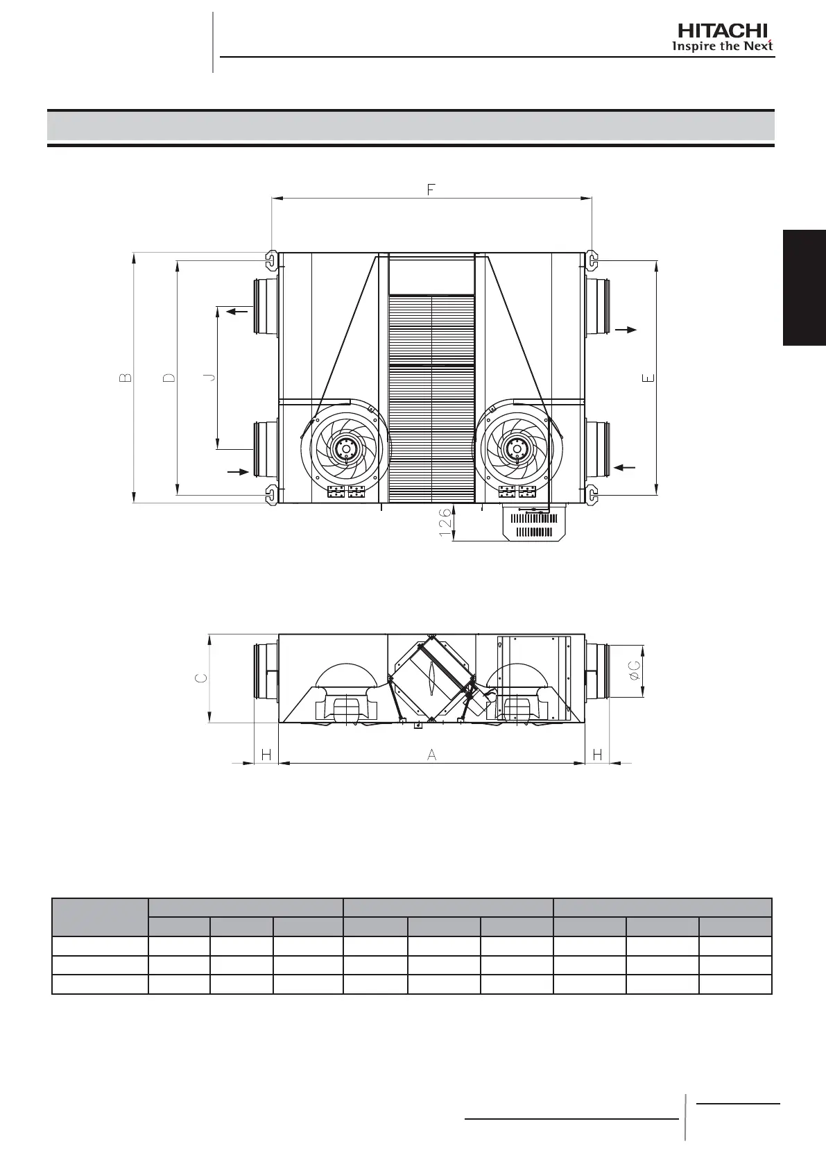
10. MASSSTABGERECHTE ZEICHNUNGEN
10.1. KPI-(252
~
802)(E/H)2E MODELLE
Modell
Abmessungen Deckenhalterung Leitungsanschluss
A B C D E F G H J
KPI-252E2E         
KPI-502(E/H)2E         
KPI-802(E/H)2E         




HINWEISE:
OA: Außenluft
EA: Abluft
RA: Rückluft
SA: Zuluft



Table of Contents

Related product manuals