EasyManua.ls Logo

Hotblast 1357M - Locating the Furnace

Default Icon
32 pages
Print Icon
To Next Page IconTo Next Page
To Next Page IconTo Next Page
To Previous Page IconTo Previous Page
To Previous Page IconTo Previous Page
Loading...
7
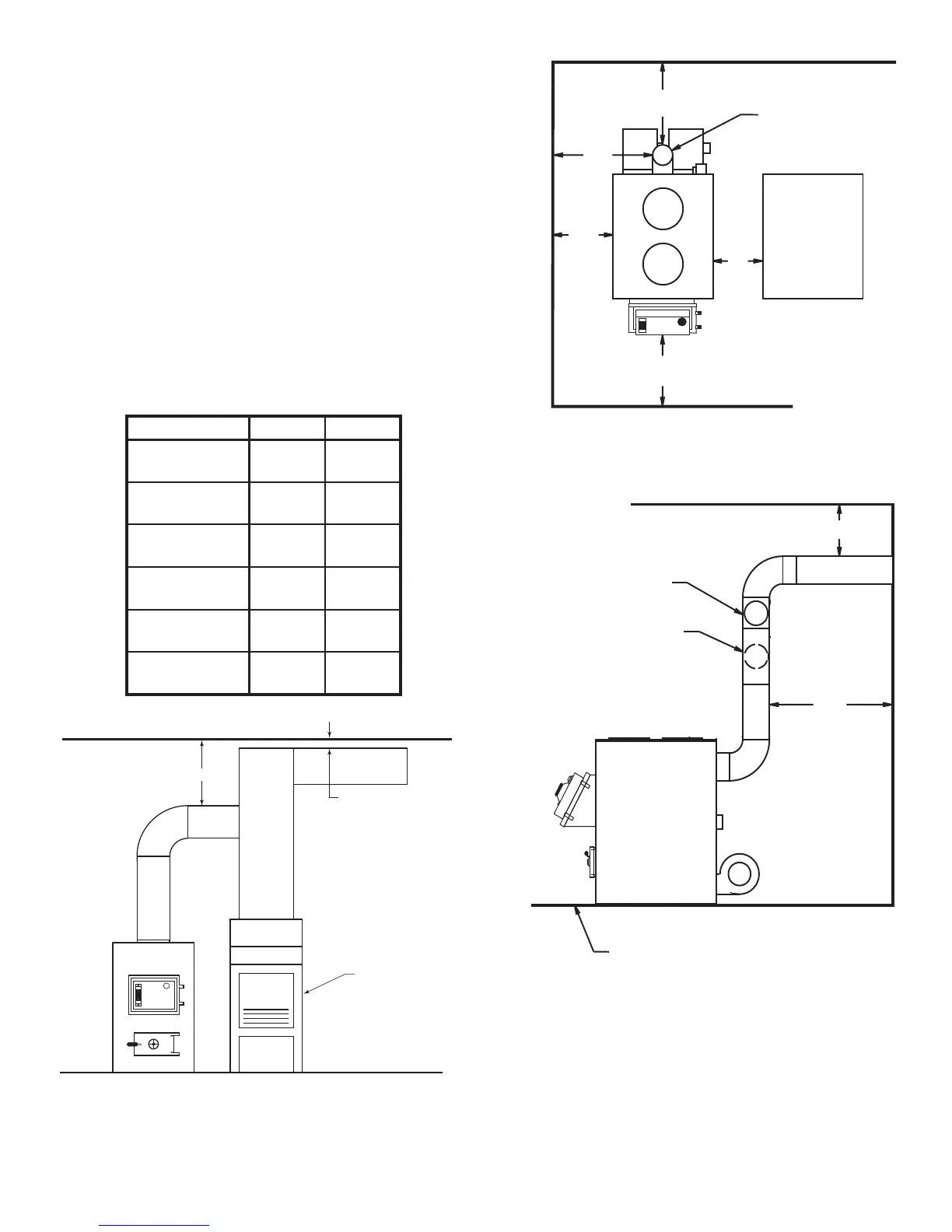
LOCATING THE FURNACE
1. The furnace should be located in the same room as the
central system and as close as possible, but not closer than
9". There should be no wall between the furnace and the
warm air outlet duct that is connected directly to the warm
air outlet plenum of the central furnace. (See Fig. 4)
2. Place the furnace on a noncombustible oor.
3. Check gures 3 through 5. Be sure you have the clearances
shown below from the furnace and the connector pipe to
combustible surfaces. If you have a solid brick or stone wall
behind your furnace, you can place the furnace as close as
you wish to the wall. If the wall is only faced with brick or
stone, treat it as a combustible wall.
18"
18"
6" SOLID DAMPER
6" BAROMETRIC
DRAFT REGULATOR
NON-COMBUSTIBLE FLOOR
12"
9"
48"
18"
CENTRAL
FURNACE
6" CHIMNEY
21"
Figure 4
Figure 5
1357M 1557M
Unit to Sidewall
12"
(305mm)
12"
(305mm)
Unit to Backwall
30"
(760mm)
30"
(760mm)
Front of Unit to
Combustible
48"
(1.22m)
48"
(1.22m)
Chimney Pipe
to Sidewall
18"
(460mm)
21"
(530mm)
Chimney Pipe
to Backwall
18"
(460mm)
18"
(460mm)
Plenum to
Combustibles
6"
(150mm)
6"
(150mm)
2" MIN. AIR SPACE
REQUIRED BY CODE
CENTRAL
FURNACE
6" MIN.
PLENUM
TO
CEILING
Figure 3

Related product manuals