EasyManua.ls Logo

HP C30 - Page 448

HP C30
487 pages
Print Icon
To Next Page IconTo Next Page
To Next Page IconTo Next Page
To Previous Page IconTo Previous Page
To Previous Page IconTo Previous Page
Loading...
1200-Sheet/2500-Sheet Feeder
8-4 Options June 1999
1200-Sheet/2500-Sheet Feeder
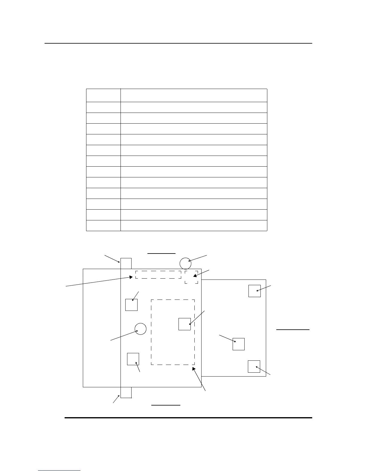
Figure 8-1. 1200-Sheet/2500-Sheet Physical Locations
Table 8-1. 1200-Sheet/2500-Sheet Component Acronyms
Acronym Component
DSW Door Switch (magnetic door lock)
IEM Input Elevator Motor (M1 – elevator motor)
ILLS Input Lower Limit Sensor
IPES Input Paper Tray Sensor
IPM Input Pick-up Motor (M2 – paper pick-up motor)
IULS Input Upper Limit Sensor
NF AC Noise Filter
NPS No Paper Solenoid
PCSW Power Control Switch (slope tray interlock switch)
PES Paper End Sensor
PHS Paper Head Sensor
SOL Solenoid
Printer side
PCSW
PHS
SOL
M1 (IEM)
PES
IPES
DSW
M2
(IPM)
Door
ILLS
IULS
Front side
Power supply
Input
control
board
NF
Rear side

Related product manuals