EasyManua.ls Logo

HP DL580 - Page 72

HP DL580
127 pages
Print Icon
To Next Page IconTo Next Page
To Next Page IconTo Next Page
To Previous Page IconTo Previous Page
To Previous Page IconTo Previous Page
Loading...
Cabling 72
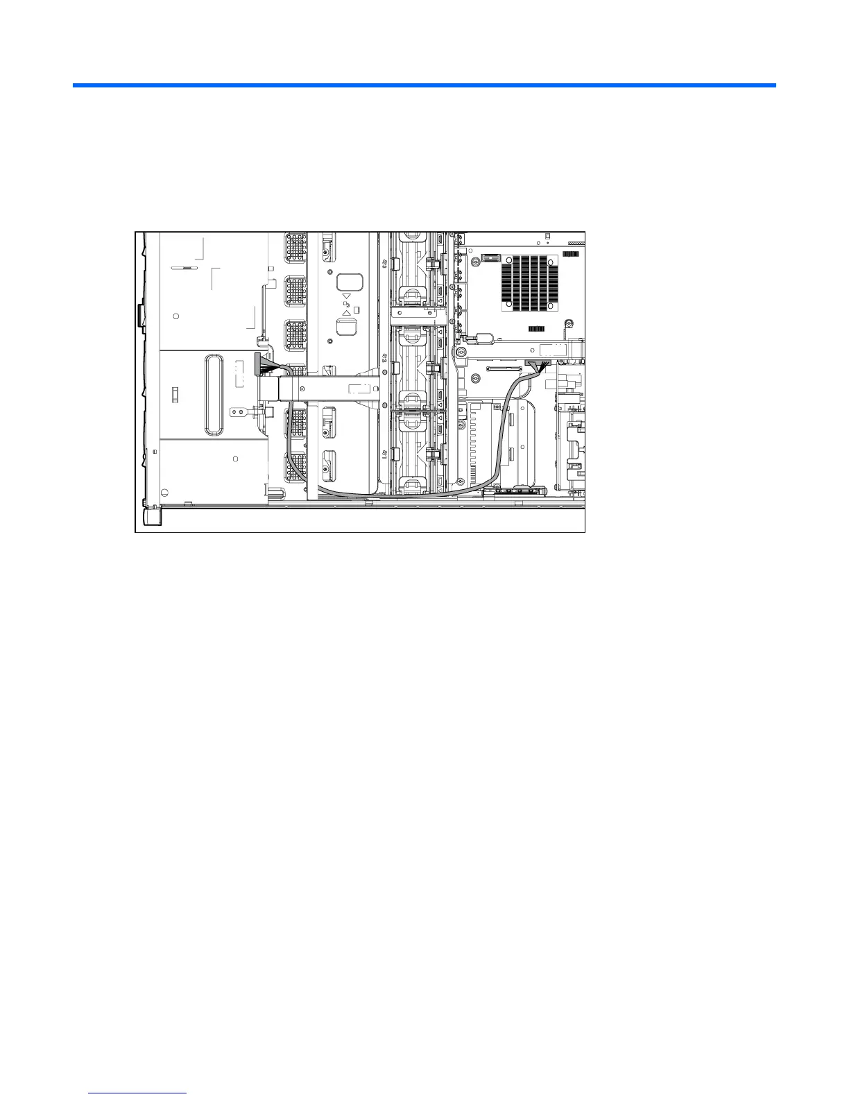
Cabling
DVD-ROM drive cabling

Related product manuals