EasyManua.ls Logo

HP DL585 - Page 70

HP DL585
124 pages
Print Icon
To Next Page IconTo Next Page
To Next Page IconTo Next Page
To Previous Page IconTo Previous Page
To Previous Page IconTo Previous Page
Loading...
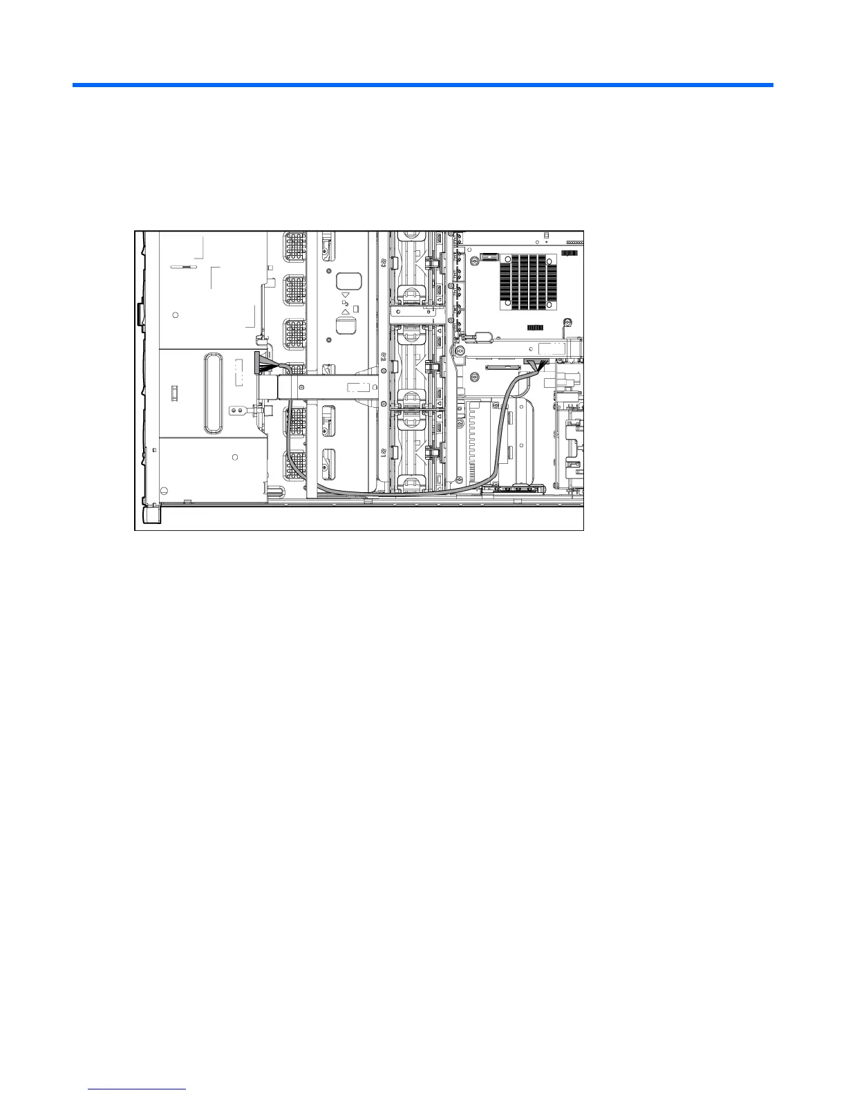
Cabling 70
Cabling
DVD-ROM drive cabling

Related product manuals