EasyManua.ls Logo

HP ML370 - ProLiant - G3 - System Fans

HP ML370 - ProLiant - G3
113 pages
To Next Page IconTo Next Page
To Next Page IconTo Next Page
To Previous Page IconTo Previous Page
To Previous Page IconTo Previous Page
Loading...
Removal and Replacement Procedures
System Fans
The server supports redundant hot-plug fans to provide proper airflow to the system. In the
standard configuration, three fans cool the system. If any one of the primary fans fails, the
system monitors the fan status and shuts down to prevent any thermal damage to components.
When the system is powered up, POST displays an error message.
In the redundant configuration, six fans cool the system. If any one of the primary fans fails,
the system detects the paired redundant fan and continues to operate without any interruption
or downtime.
WARNING: To reduce the risk of personal injury from hazardous energy or of damage
to the equipment when working on energized servers:
Remove all watches, rings, and any other loose fitting jewelry.
Avoid the use of conductive tools inside the server that could bridge live parts.
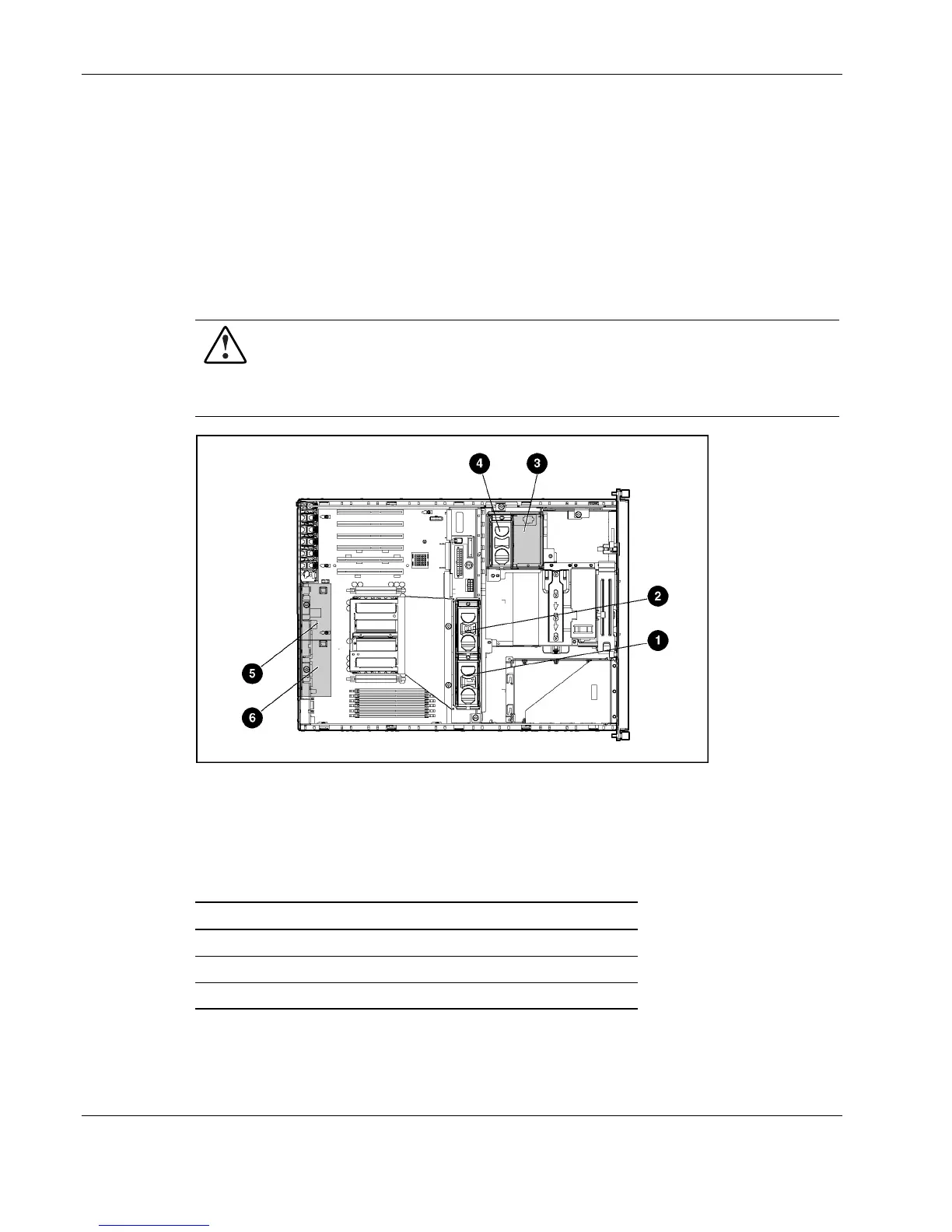
Figure 2-20: System fan locations
NOTE: Fan locations are labeled in the chassis and on the system configuration labels attached to the
access panel.
Table 2-1: System Fan Locations
Item Description Item Description
1 Processor fan 1 4 I/O fan 5
2 Processor fan 3 5 Redundant processor fan 4
3 Redundant I/O fan 6 6 Redundant processor fan 2
Fan failure is indicated by amber LEDs located on each hot-plug fan and by the front panel
internal health LED. For fan failures, the internal health LED shows red in nonredundant
mode and amber in redundant mode.
2-22 HP ProLiant ML370 Generation 3 Server Maintenance and Service Guide

Related product manuals