EasyManua.ls Logo

Huawei UPS2000-G-6KRTL - Page 34

Huawei UPS2000-G-6KRTL
194 pages
To Next Page IconTo Next Page
To Next Page IconTo Next Page
To Previous Page IconTo Previous Page
To Previous Page IconTo Previous Page
Loading...
Environment
Do not install the UPS in an environment outside the specications.
Keep the UPS far away from water, heat sources, and ammable and
explosive substances. Install the UPS in an environment free of dust, volatile
gas, salt, and corrosive materials. Avoid direct sunlight.
Do not install the UPS in environments with conductive metal scraps in the
air.
The ideal operating temperature for batteries is 20–30ºC. Temperatures higher
than 30ºC shorten the battery lifespan and temperatures lower than 20ºC
reduces the backup time.
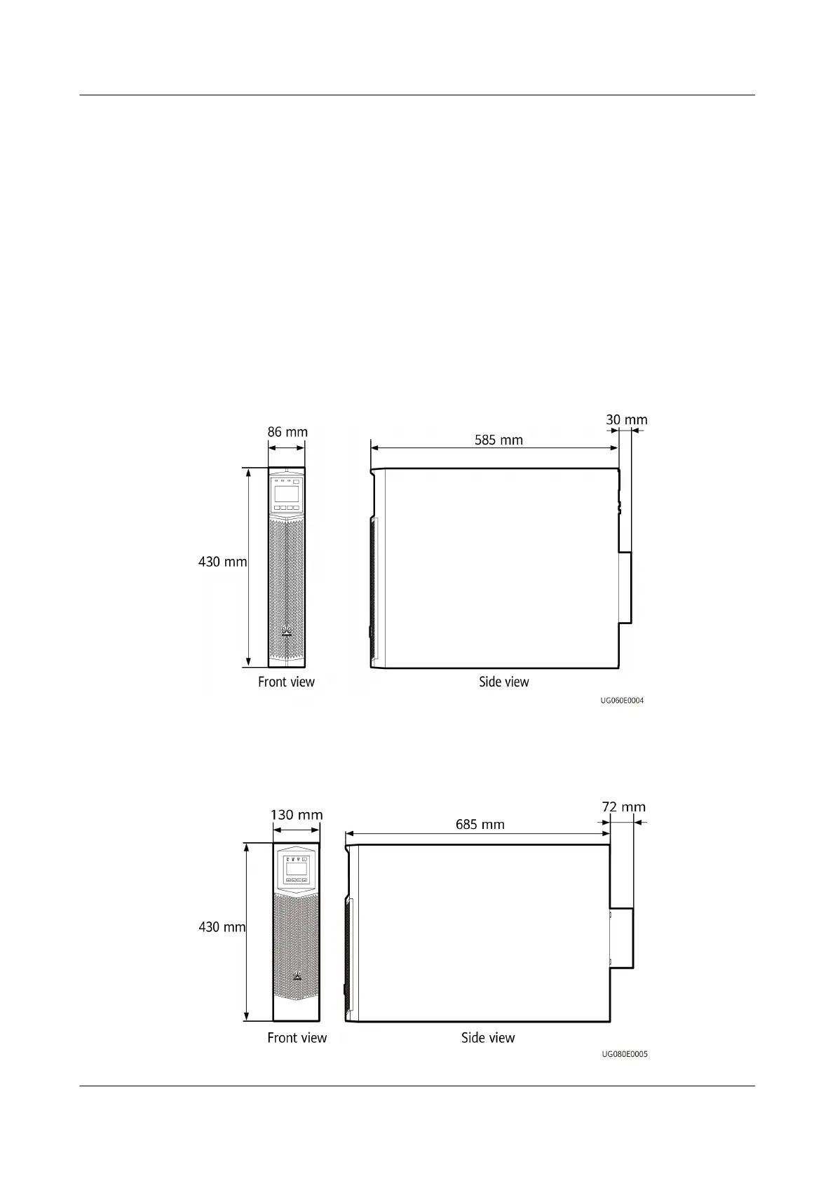
UPS2000-G-6 kVA/10 kVA Dimensions
Figure 3-1 UPS2000-G-6 kVA/10 kVA installation dimensions
UPS2000-G-15 kVA/20 kVA Dimensions
Figure 3-2 UPS2000-G-15 kVA/20 kVA installation dimensions
UPS2000-G- (6 kVA-20 kVA)
User Manual 3 Installation
Issue 18 (2021-07-16) Copyright © Huawei Technologies Co., Ltd. 26

Table of Contents

Other manuals for Huawei UPS2000-G-6KRTL

Related product manuals