EasyManua.ls Logo

Hussmann RL - Page 21

Hussmann RL
22 pages
Print Icon
To Next Page IconTo Next Page
To Next Page IconTo Next Page
To Previous Page IconTo Previous Page
To Previous Page IconTo Previous Page
Loading...
Reach-in Rectangular Solid
and Contour Glass Ends
P/N 0387152_H
21
HUSSMANN CORPORATION • BRIDGETON, MO 63044-2483 U.S.A.
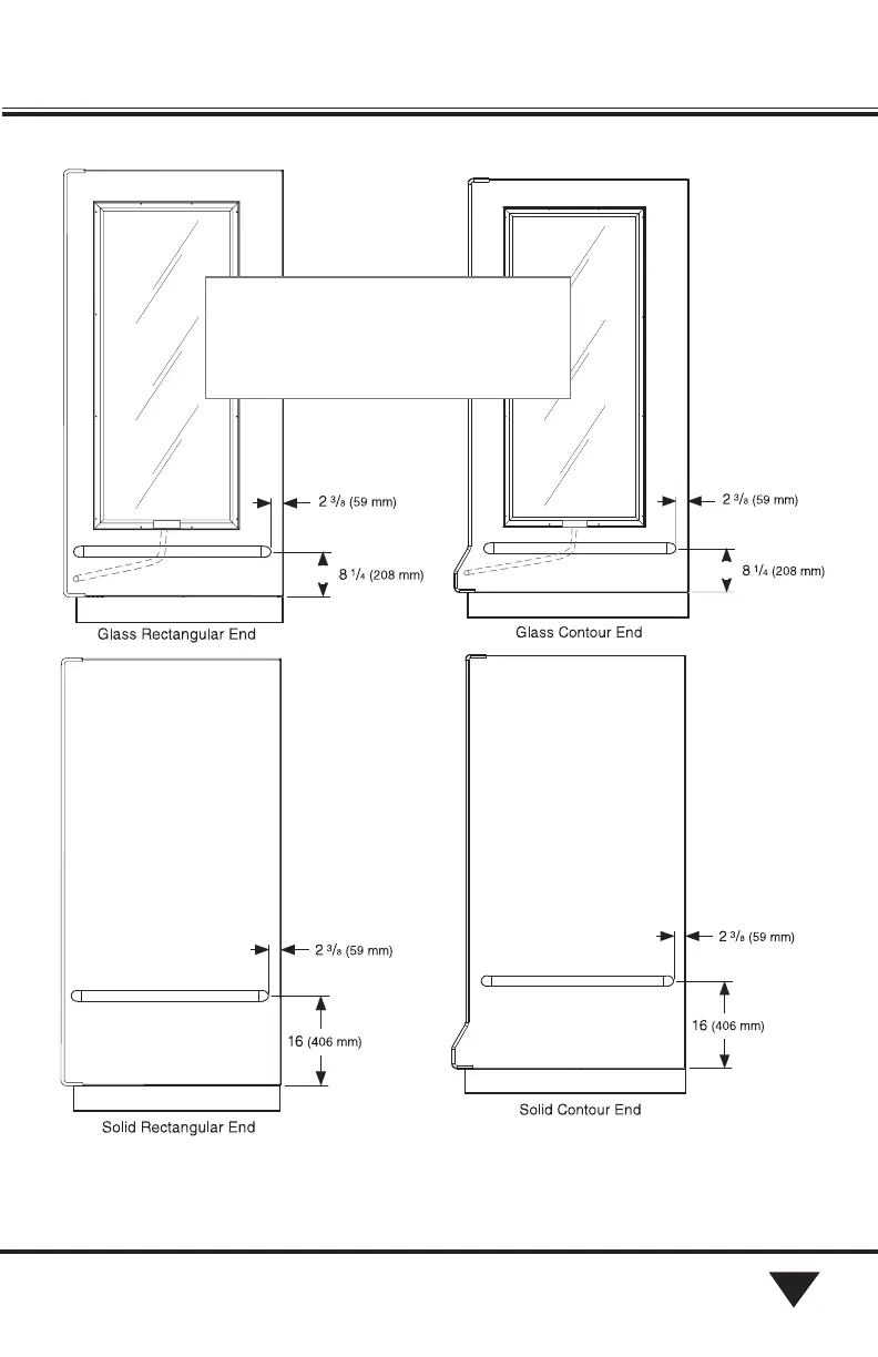
Figure 24. Location Optional End Bumper
Glass Ends: Position of center screw may be offset
so that internal wiring is not damaged.
RLT ends are not affected as wiring is at top.

Other manuals for Hussmann RL