EasyManua.ls Logo

Hussmann SHM - Page 36

Hussmann SHM
44 pages
Print Icon
To Next Page IconTo Next Page
To Next Page IconTo Next Page
To Previous Page IconTo Previous Page
To Previous Page IconTo Previous Page
Loading...
5-6 INSTALLATION
P/N 0515258_N U.S. & Canada 1-800-922-1919 • Mexico 01 800-890-2900 • www.hussmann.com
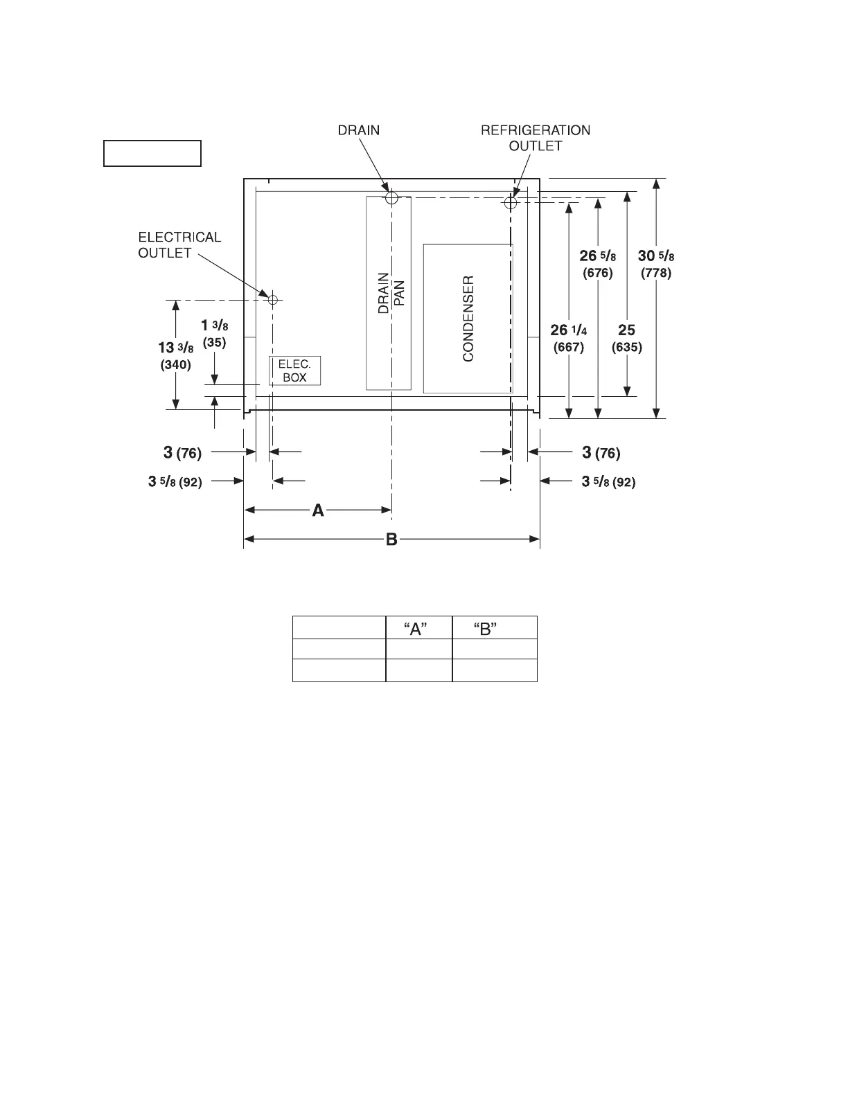
A-4 APPENdIx A TEChNICAL dATA
General
Case Length (Note: Includes One Pair Ends) 5ft (68
3
/8) (1737) 10ft (3353)
Optional End Bumpers (One Pair) 2 (51) 2 (51)
Maximum O/S dimension of case back to front 43
1
/2 (1105) 87 (2210)
(Note: Includes bumper)
Width of skid rail 9
5
/8 (244) 19
1
/4 (488)
Waste Outlet
LH end of case (from outside of End Assembly) 33
1
/2 (851) 67 (1702)
to center of waste outlet
MODEL
SHM300 18" 36.375"
SHM400 24" 48.375"
SHM

Other manuals for Hussmann SHM

Related product manuals