EasyManua.ls Logo

HWH SPACEMAKER - Room 1 Level In;Out Detailed Diagram

Default Icon
22 pages
Print Icon
To Next Page IconTo Next Page
To Next Page IconTo Next Page
To Previous Page IconTo Previous Page
To Previous Page IconTo Previous Page
Loading...
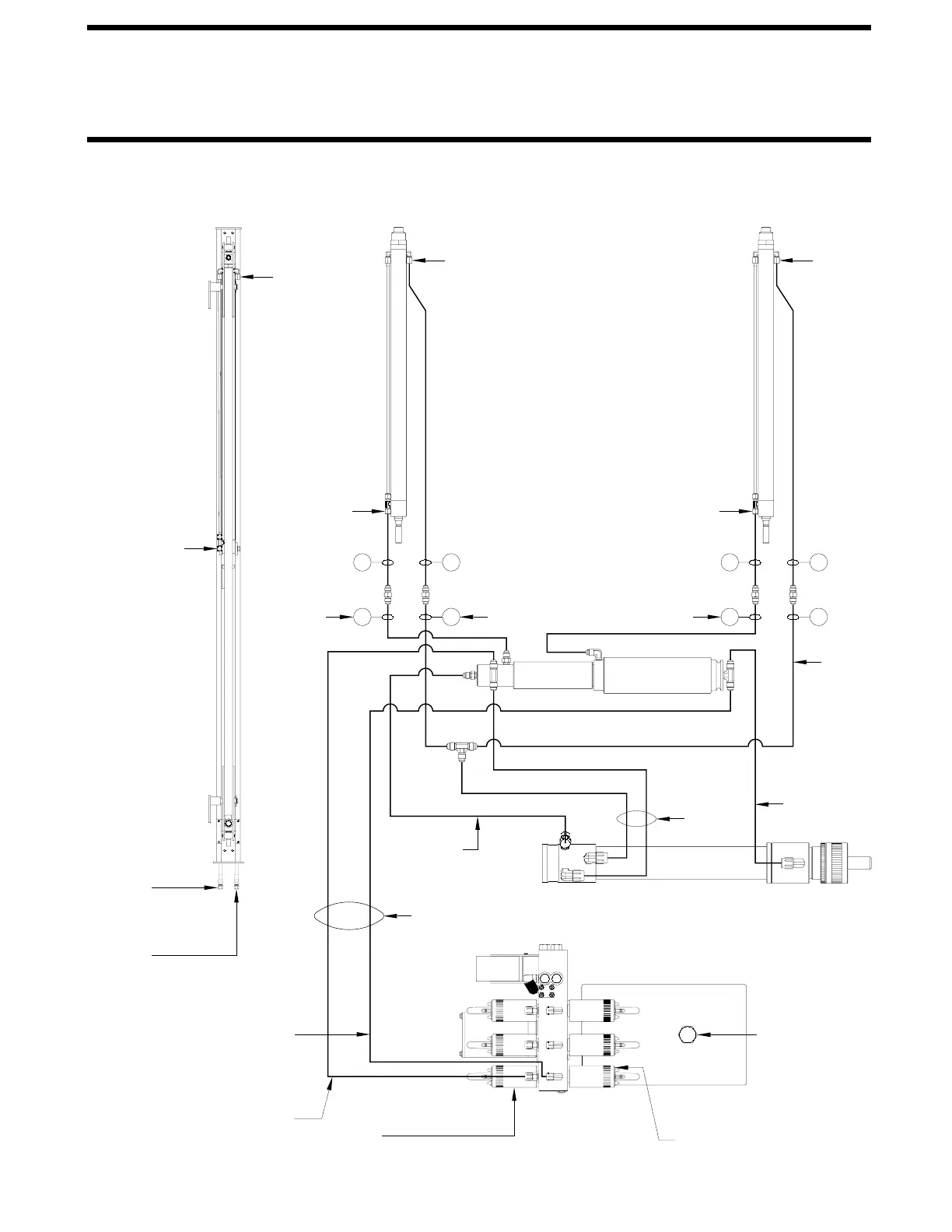
MP64.8279
22MAR10
E F
FLOOR LIFT CYLINDER
BREATHER/
FILLER
CAP
CYLINDER EXTEND
ROOM RETRACT VALVE
(1E)
CYLINDER RETRACT
ROOM EXTEND VALVE
(1R)
E & F - HOSES ARE 1/8" HIGH PRESSURE
HOSE SUPPLIED WITH THE MECHANISMS
G - HOSES MUST BE 1/8" HIGH PRESSURE
HOSE AND THEY MUST BE EQUAL LENGTH
H - HOSE MUST BE EQUAL LENGTH AND
THE SAME TYPE OF HOSES
ROD END
ROD END
CAP END END
FOR CONNECTION CLARITY,
ONLY THE ROOM CYLINDERS ARE SHOWN
E F
SYNC CYLINDER
ROOM CYLINDERS
CAP END
CONNECTION - C
ROD END
CONNECTION - A
ROOM CYLINDERS
CYLINDER EXTEND - ROOM RETRACT
CYLINDER RETRACT - ROOM EXTEND
CHECK OIL LEVEL WITH ROOM EXTENDED
CONNECTION
CAP END
ROD END
CONNECTION
FRONT VIEW
OF MECHANISM
CAP END
CONNECTION
AP24818
CAP
AP24632
CONNECTION
ROD END
G H G H1/4" HOSE HOSE
1/8" HP
HOSE
1/8" HP
HOSE
1/4"
PROPER HOSE CONNECTIONS ARE
CRITICAL PAY CLOSE ATTENTION TO
FITTING ORIENTATION ON FLOOR LIFT
1/4"
HOSE
HOSE
1/4"
1/4"
HOSE
HOSE
1/4"
CYLINDER AND SYNC CYLINDER
HYDRAULIC LINE CONNECTION DIAGRAM
UNIVERSAL LEVEL IN / LEVEL OUT ROOM EXTENSION
ROOM 1 - DRIVERS SIDE FRONT
PAGE 2 OF 3
A
D
C
B
B
C
A