EasyManua.ls Logo

HWH SPACEMAKER - Rooms 2 & 3 Straight Out Detailed Diagram

Default Icon
22 pages
Print Icon
To Next Page IconTo Next Page
To Next Page IconTo Next Page
To Previous Page IconTo Previous Page
To Previous Page IconTo Previous Page
Loading...
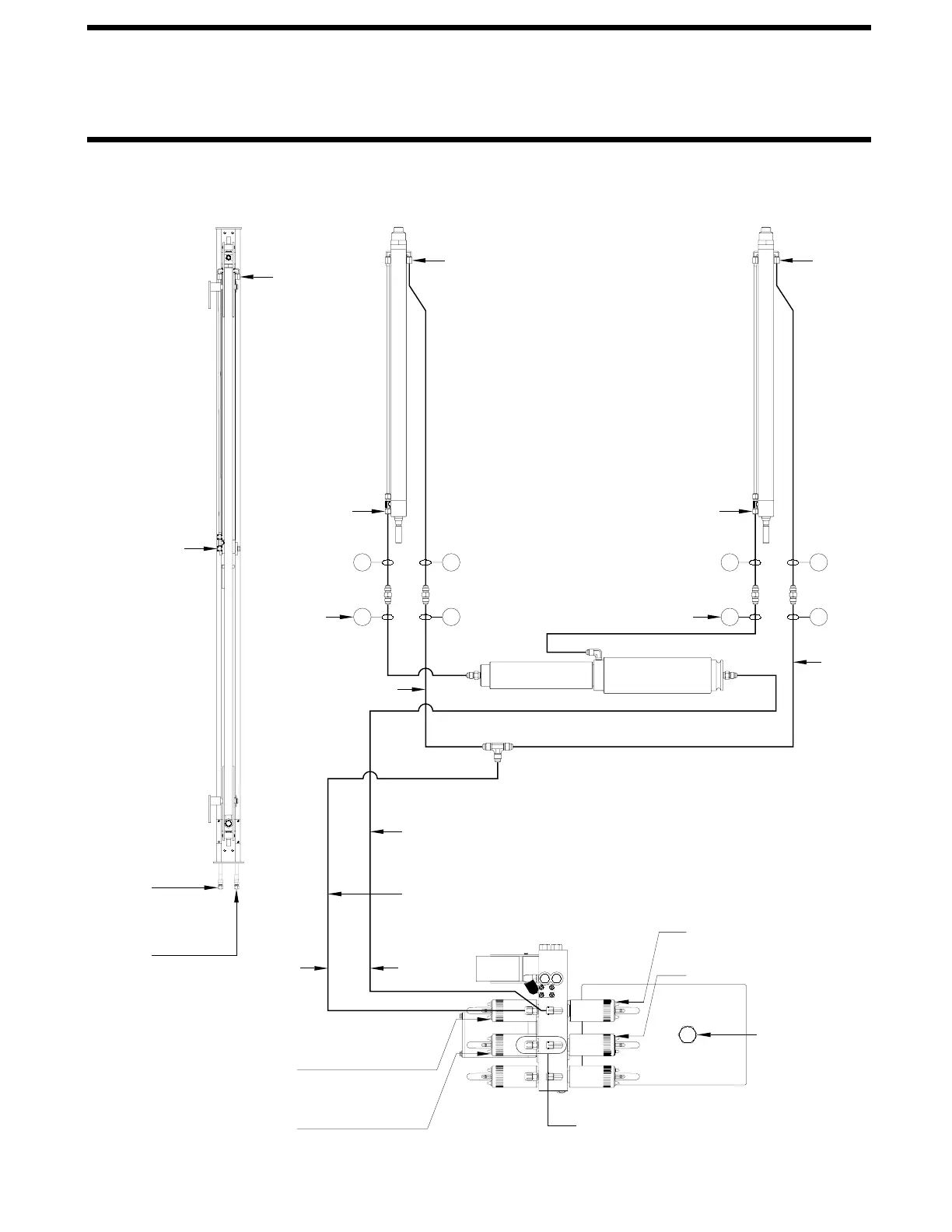
MP64.8280
22MAR10
E F
CYLINDER EXTEND
ROOM RETRACT VALVE
(3E)
BREATHER/
FILLER
CAP
CYLINDER RETRACT
ROOM EXTEND VALVE
(3R)
ROD ENDROD END
CAP END END
FOR CONNECTION CLARITY,
ONLY THE ROOM CYLINDERS ARE SHOWN
E F
SYNC CYLINDER
ROOM CYLINDERS
CAP END
CONNECTION - A
ROD END
CONNECTION - B
ROOM CYLINDERS
CYLINDER EXTEND - ROOM RETRACT
CYLINDER RETRACT - ROOM EXTEND
CHECK OIL LEVEL WITH ROOM EXTENDED
CONNECTION
CAP END
ROD END
CONNECTION
FRONT VIEW
OF MECHANISM
CAP END
CONNECTION
AP24818
CAP
AP24632
CONNECTION
ROD END
G H G HHOSE
1/8" HP
HOSE
1/8" HP
1/4"
HOSE
THE SAME TYPE OF HOSES
H - HOSE MUST BE EQUAL LENGTH AND
HOSE AND THEY MUST BE EQUAL LENGTH
G - HOSES MUST BE 1/8" HIGH PRESSURE
HOSE SUPPLIED WITH THE MECHANISMS
E & F - HOSES ARE 1/8" HIGH PRESSURE
CYLINDER RETRACT
ROOM EXTEND VALVE
(2R)
ROOM 2 CONNECTIONS
(SAME AS ROOM 3)
HOSE
1/4"
1/4"
HOSE
1/4" HOSE
CYLINDER EXTEND
ROOM RETRACT VALVE
(2E)
PAGE 3 OF 3
ROOM 2 DRIVER SIDE REAR & 3 PASSENGER SIDE REAR
UNIVERSAL STRAIGHT OUT ROOM EXTENSION
HYDRAULIC LINE CONNECTION DIAGRAM