EasyManua.ls Logo

Hyster E004 - Page 19

Hyster E004
19 pages
Print Icon
To Previous Page IconTo Previous Page
To Previous Page IconTo Previous Page
Loading...
8000 SRM 989 Diagrams, Schematics, or Arrangements
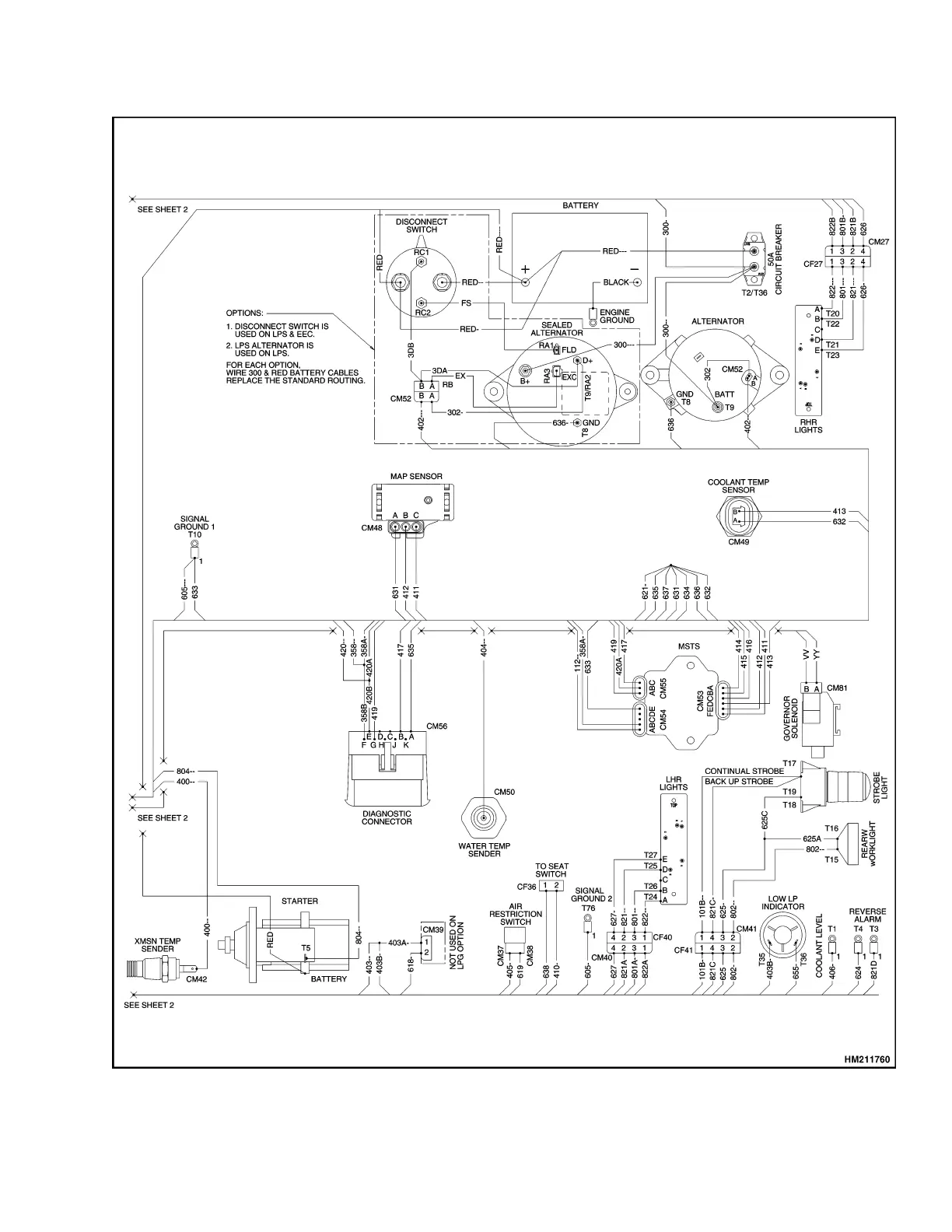
Figure 4. Wiring Diagram LPG (REV 2 and 3) (E004) (Sheet 3 of 4)
13

Related product manuals