EasyManua.ls Logo

IAI RCM-P6GW - Wiring Diagram

Default Icon
5 pages
Print Icon
To Next Page IconTo Next Page
To Next Page IconTo Next Page
To Previous Page IconTo Previous Page
To Previous Page IconTo Previous Page
Loading...
Target Position
Target Position No.
Control Signal
PLC
Current Position
Completed Position No.
Status Signal
Gateway
Unit
+24V
RCP6S
Actuator
Hub Unit
Communication with Fieldbus
Target Position
Positioning Width
Speed
Acceleration/Deceleration
Push %
Control Signal
PLC
Current Position
Current Value
(Command Value)
Current Speed
(Command Value)
Alarm Code
Status Signal
+24V
RCP6S
Actuator
Gateway
Unit
Hub Unit
Communication with Fieldbus
Teaching Pendant
(to be purchased separately)
PC software
3) RCP6S connecting cable
CB-RCP6S-PWBIO□□□
(Enclosed in Actuator)
System I/O Connector
(Top Surface)
Axis Power Supply Connector
Axis Control Connector
(Bottom Surface)
Control Power Supply Connector
Motor Power Supply Connector
Drive Cutoff Connector
SIO Connector
1) Connection
Cable between
GW and Hub
CB-RCP6S-RLY□□□
(Prepare separately)
(to be purchased separately)
Fieldbus
Connecting
Dummy Plug
DP-5
(Note1)
Host System (master unit)
PLC etc.…Please prepare separately)
Gateway
Unit
Emergency Stop Circuit
Drive Cutoff Circuit
Control/Drive
Power Supply
(24V DC
…Please prepare
separately)
It is also available to
connecting with miniUSB.
Hub Unit (MAX. 4 units)
RCP6S Actuator
(MAX. 16 units)
RCP6S Connector
Hub Power Supply
Connector
Hub Control Connector
Current Position
Gateway Unit
Hub Unit
Operation Mode Selected
This controller are available to select from 6 types of operation modes.
The settings are to be established with Gateway Parameter Setting Tool.
Operation
Mode
Contents Overview
Simple Direct
Mode
The target position can be indicated
directly by inputting a value. Also,
monitoring of the current position is
available in 0.01mm unit.
Those other than the target position are
to be indicated in the position table, and
the setting can be done for 768 points at
maximum.
Positioner 1
Mode
The 768 points of position data can be
registered at the maximum and is able
to stop at the registered positions. Also,
monitoring of the current position is
available in 0.01mm unit.
Direct Indication
Mode
The target position, speed
acceleration/deceleration and pressing
current limit can be indicated with
inputting a number.
As well as monitoring of the current
position in 0.01mm unit, monitoring of
current speed and command current is
also available.
* For those except for CC-Link, the
maximum number of the connectable
axes should be eight axes when a hub
unit is used and two when not used.
Positioner 2
Mode
This is the operation mode of the
position data of 768 points at maximum
set in the position table. The monitoring
of the current position is not available
This mode is that the transferred data is
reduced from Positioner 1 Mode.
Operation
Mode
Contents Overview
Positioner 3
Mode
This is the operation mode of the
position data of 256 points at maximum
set in the position table. The
monitoring of the current position is not
available
This is the mode to control with the
minimized number of signals to
perform the positioning operation by
reducing the amount of sent and
received data from Positioner 2 Mode.
Positioner 5
Mode
This is the operation mode of the
position data of 16 points at maximum
set in the position table.
It is a mode that enabled to monitor the
current position in 0.1mm unit by
number of position table from
Positioner 2 Mode.
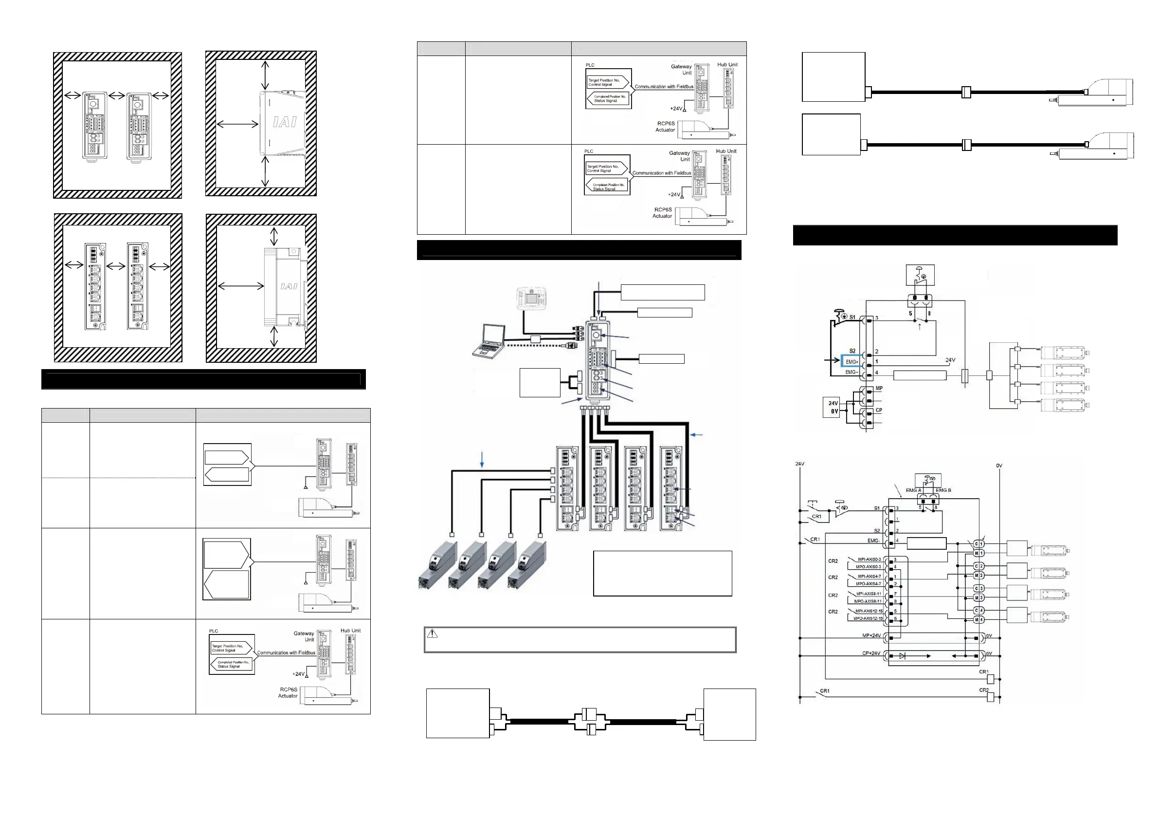
Wiring Diagram
Note 1 For RCM-P6GWG, in case a teaching tool is not connected to SIO connector, have the enclosed dummy plug
plugged (DP-5) in the connector.
Connection Cable
1. Connection to RCP6S Gateway Unit and Hub Unit
2. Connection to RCP6S Gateway Unit and RCP6S
3. Connection to RCP6S Hub unit and RCP6S
* Extension Cable is utilize these holes if necessary.
□□□ in the cable model code should be the cable length. e.g.) 030=3m, -RB should be included in the model code when it is the
robot cable.
The maximum length should be 10m between the gateway and hub unit.
The maximum length should be 20m from the gateway unit to RCP6S regardless of a hub unit is used or not used.
1, 3, 5 and 10m are prepared in standard for 1)
1, 3, and 5m are prepared in standard for 2) and 4)
Power Supply and Emergency Stop Circuit
The following diagram shows an example of how the emergency stop switch for the teaching pendant may be included in the
emergency stop circuit you may construct.
RCP6S Actuator or RCP6S
Gateway Controllers
Built in Drive Cutoff Circuit
(MAX.16 units)
Teaching Tool
Operation
Stop Switch
System I/O
Connector
SIO
Connector
Teaching
Tool Connection
Detection Circuit
(Contact opens
when connected)
Dedicated
Operation
Stop
Circuit
Wiring
Conducted
at Delivery
Operation Stop
Detection Times
Hub Unit
Gateway Unit
24V DC
Power Supply
Motor Power Supply
Control Power Supply
Example for shutting off motor power supply externally at emergency stop input.
RCP6S
Gateway Unit
Emergency Stop
Detection Circuit
System I/O
Connector
SIO Connector
Axis Control
Connector
(C)
Axis Power
Supply Connector
(M)
(MAX. 16 units)
Control Power Supply Connector
Motor Power Supply Connector
Use a hub unit if necessary.
Four units at the maximum of RCP6S
actuators and/or RCP6S Gateway
controllers can be connected to
one unit of the hub unit.
In case a hub unit is not to be
connected, connect an actuator
or a controller for RCP6S GW to
the axis control connector (C).
(Note 1)
(Note 3)
(Note 2)
(Note 2)
(Note 2)
(Note 2)
(Note 2)
(Note 4)
Drive Cutoff Connector
Emergency
Stop
Release
Switch
Emergency
Stop Switch
Emergency Stop Switch
on the Teaching Pendunt
Hub
Unit 1
Hub
Unit 4
Hub
Unit 3
Hub
Unit 2
RCP6S Actuator or
RCP6S Gateway
Controllers
Note 1 RCM-P6GW : When there is nothing plugged in the SIO connector, S1 and S2 are short-circuited inside the controller.
RCM-P6GWG : When there is nothing plugged in the SIO connector, S1 and S2 are not short-circuited.
To make them short-circuited, have the enclosed dummy plug DP-5 plugged in the SIO connector.
Note 2 When the motor power must be disconnected externally for safety category compliance, apply a safety rated relay
between MPI-AXIS
and MPO-AXIS
.
Note 3 The rating for the emergency stop signal (EMG-) to turn ON/OFF at contact CR1 is 24V DC and 10mA or less.
Note 4 For CR1, select the one with coil current 0.1A or less.
(Note) When supplying the power by turning ON/OFF the 24V DC, keep the 0V being connected and have the +24V
supplied/disconnected (cut one side only).
RCP6S Actuator
4) RCP6S Extension Cable*
CB-RCP6S-PWBIO□□□-JY1
3) RCP6S Connection Cable
CB-RCP6S-PWBIO□□□
Gateway Unit
Axis Power Supply
Connector
Axis Control Connector
Hub Unit
RCP6S Connector
RCP6S Actuator
4) RCP6S Extension Cable*
CB-RCP6S-PWBIO□□□-JY1
3) RCP6S Connection Cable
CB-RCP6S-PWBIO□□□
Hub Unit
Hub Power Supply
Connector
Hub Control
Connector
1) GW-hub Connection Cable
CB-RCP6S-RLY□□□
2) GW-hub Extension Cable*
CB-RCP6S-RLY□□□-JY1
Gateway Unit
Axis Power Supply
Connector
Axis Control Connector
10mm
or more
10mm
or more
10mm
or more
100mm or more
100mm or more
100mm or more
100mm or more
10mm or more
10mm or more
10mm
or more
10mm
or more
10mm
or more
Caution: Make sure to turn the power to the gateway unit OFF when inserting or removing the connector that
connects the PC software or gateway unit to the controller.
Inserting or removing the connector while the power is turned ON causes a gateway unit failure.
It is available that RCP6S Gateway controller is
connected instead of connecting a RCP6S actuator
and connects an actuator of RCP2 to 6, RCA2 or
RCD.
Refer to the Instruction Manual and First Step Guide of the
RCP6S Gateway Controllers for details.

Other manuals for IAI RCM-P6GW

Related product manuals