EasyManua.ls Logo

IBM MT 2877 - Page 145

IBM MT 2877
220 pages
Print Icon
To Next Page IconTo Next Page
To Next Page IconTo Next Page
To Previous Page IconTo Previous Page
To Previous Page IconTo Previous Page
Loading...
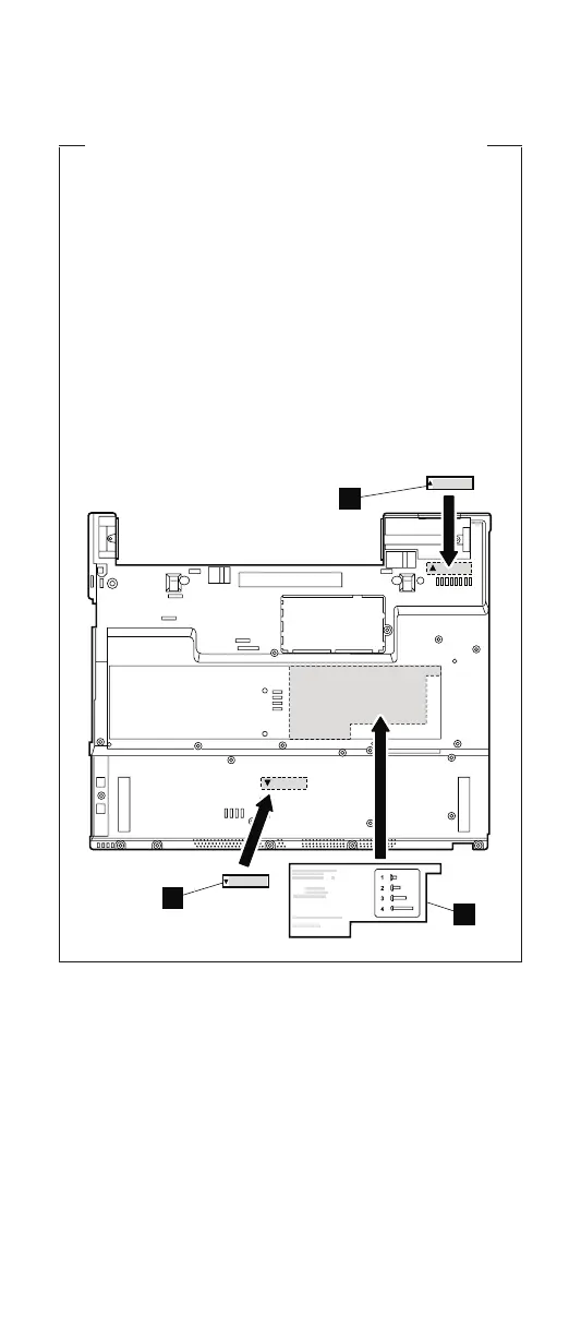
Note for sticking a label kit on the base cover
New base cover FRU is shipped with several kinds
of label kit. When you replace the base cover, you
need to stick a homologation label a which has
the same part no. with the label on the old base
cover (defective FRU) on the new base cover.
In some models, you also need to stick one or two
FCC labels b. Check the old base cover and if
there is one or two FCC labels on it, find the same
one from the label kit and stick it on the new base
cover.
Stick the labels on the new base cover as shown in
this figure.
a
b
b
Removing and replacing a FRU
ThinkPad T43 Series 139

Table of Contents

Related product manuals