EasyManua.ls Logo

ICP 9MPD - Page 7

ICP 9MPD
62 pages
Print Icon
To Next Page IconTo Next Page
To Next Page IconTo Next Page
To Previous Page IconTo Previous Page
To Previous Page IconTo Previous Page
Loading...
t3!4
17/8
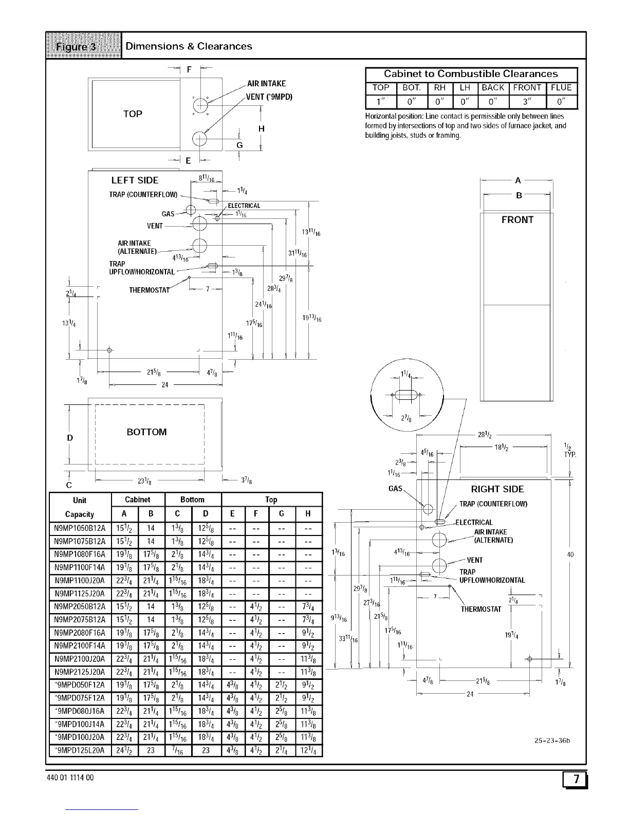
Dimensions & Clearances
TOP
F
| ]jAI. I.TAKE
_ /VENTrgMPD)
1
LEFT SIDE I_ _
I
TRAP (COUNTERFLOW) _ _
AiRI.TAKE ¢"
(ALTERNATE)_ J
TRAP 4131164 C
UPFLOWIHORIZONTAL
THERMOSTAT/J_T-_ 7_
21518 47/8
24
/ELECTRICAL
-- 11/16
13/8 2! /8
213/4
624
I
1311/16
1/16
1913116
Cabinet to Combustible Clearances
TOP BOT. RH LH BACK FRONT FLUE
1' O' O' O' O' 3' O'
Horizontalposition:Linecontactispermissibleonlybetween lines
formed by intersectionsof top andtwo sidesoffurnacejacket, and
buildingjoists,studs or framing,
--A--
-- B--
FRONT
C
Unit
Capacity
N9MP1050B12A
N9MP1075B12A
N9MP1080F16A
NgMP1100F14A
N9MP1100J20A
N9MP1125J20A
N9MP2050B12A
N9MP2075B12A
N9MP2080F16A
N9MP2100F14A
N9MP2100J20A
N9MP2125J20A
*9MPD050F12A
*9MPD075F12A
*9MPD080J16A
*9MPD100J14A
*9MPD100J20A
*9MPD125L20A
BOTTOM
23118
Cabinet Bottom
GAS
24
i
21/4
191/4
17/8
25=23-36b
44001 111400

Related product manuals