EasyManua.ls Logo

ICP N9MSE - Page 27

ICP N9MSE
56 pages
Print Icon
To Next Page IconTo Next Page
To Next Page IconTo Next Page
To Previous Page IconTo Previous Page
To Previous Page IconTo Previous Page
Loading...
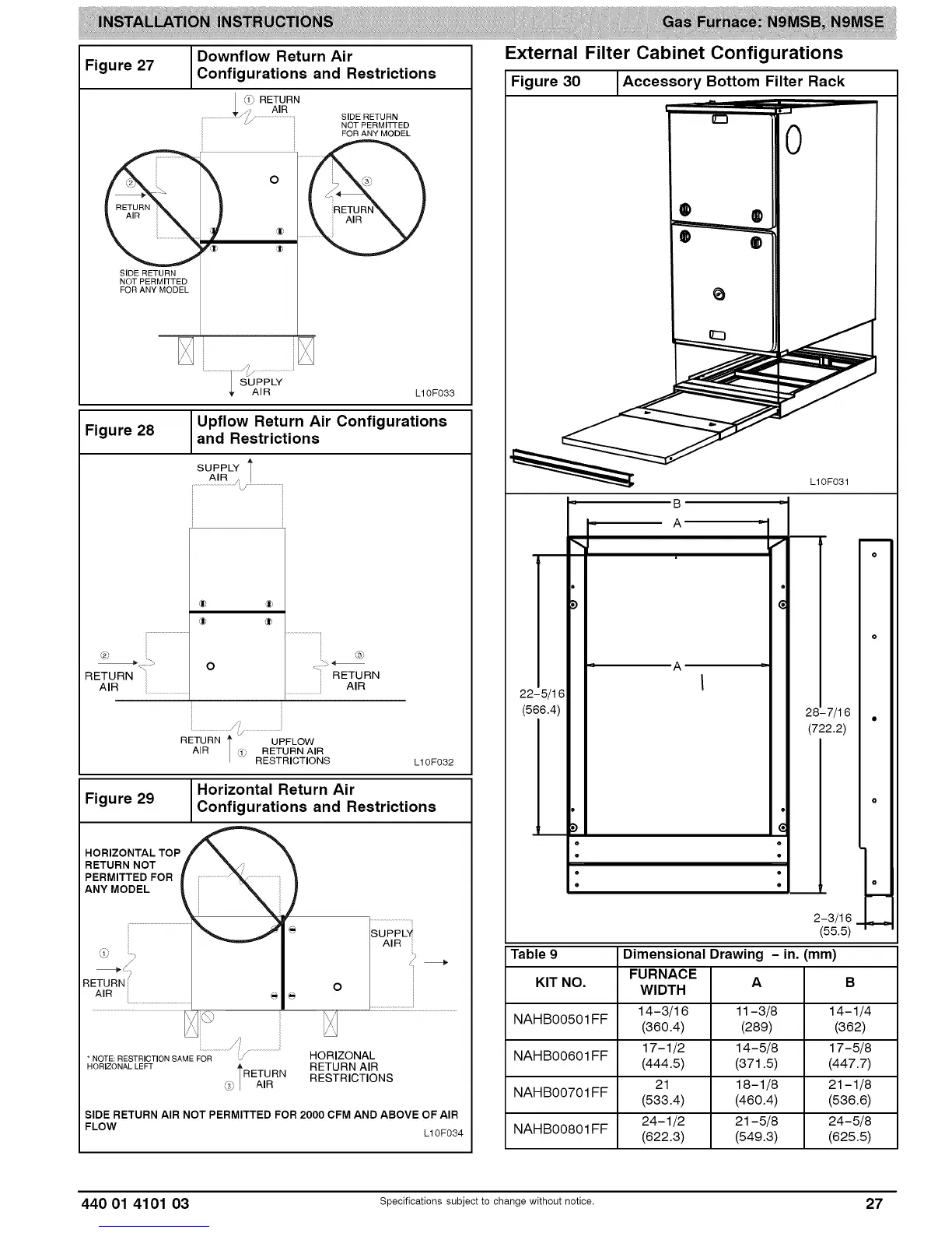
Figure 27
JDownflow Return AirConfigurations and Restrictions
/ (17 RETURN
AIR
......................._/z/i ......................... SIDE RETURN
NOT PERMI]qED
FOR ANY MODEL
SIDE RETURN
NOT PERMITTED
FOR ANY MODEL
O
®
®
i s_LY L,0F033
Upflow Return Air Configurations
Figure 28 and Restrictions
SUPPLY t
............._iR J/_....................
RETURN
AIR
® ®
® ®
®
RETURN
AIR
RETURN I UPFLOW
AIR C!_ RETURN AIR
RESTRICTIONS L10F032
IHorizontal Return Air
Figure 29 Configurations and Restrictions
HORIZONTAL TOP
RETURN NOT
PERMITTED FOR
ANY MODEL
RETURN
AIR
)
0
SUPPLY
AIR
24
* NOTE: RESTRICTION SAME FOR HORIZONAL
HORIZONAL LEFT RETURN AIR
RESTRICTIONS
RETURN
AIR
SIDE RETURN AIR NOT PERMITTED FOR 2000 CFM AND ABOVE OF AIR
FLOW L10F034
External
Figure 30
Filter Cabinet Configurations
Accessory Bottom Filter Rack
m
om
0
® @
@ @
B
A
L10F031
m
o
22-5/t 6
(566.4)
e
,3
A
I
28-7/16
(722.2)
o
,3
o
o
o
o
e
e
e
e
o
2-3/t 6 - .=,_=,
(55.5)
Table 9 Dimensional Drawing - in. (mm)
FURNACE
KIT NO. A B
WIDTH
NAH B00501FF 14-3/16 11-3/8 14-1/4
(360.4) (289) (362)
NAHB00601 FF 17-1/2 14-5/8 17-5/8
(444.5) (371.5) (447.7)
21 18-1/8 21-1/8
NAHB00701FF
(533.4) (460.4) (536.6)
NAH B00801FF 24-1/2 21-5/8 24-5/8
(622.3) (549.3) (625.5)
440 01 4101 03 specificationssubjectto change without notice. 27

Table of Contents