EasyManua.ls Logo

Ideal Boilers HE12 - Page 6

Ideal Boilers HE12
56 pages
Print Icon
To Next Page IconTo Next Page
To Next Page IconTo Next Page
To Previous Page IconTo Previous Page
To Previous Page IconTo Previous Page
Loading...
6
icos - Installation & Servicing
GENERAL
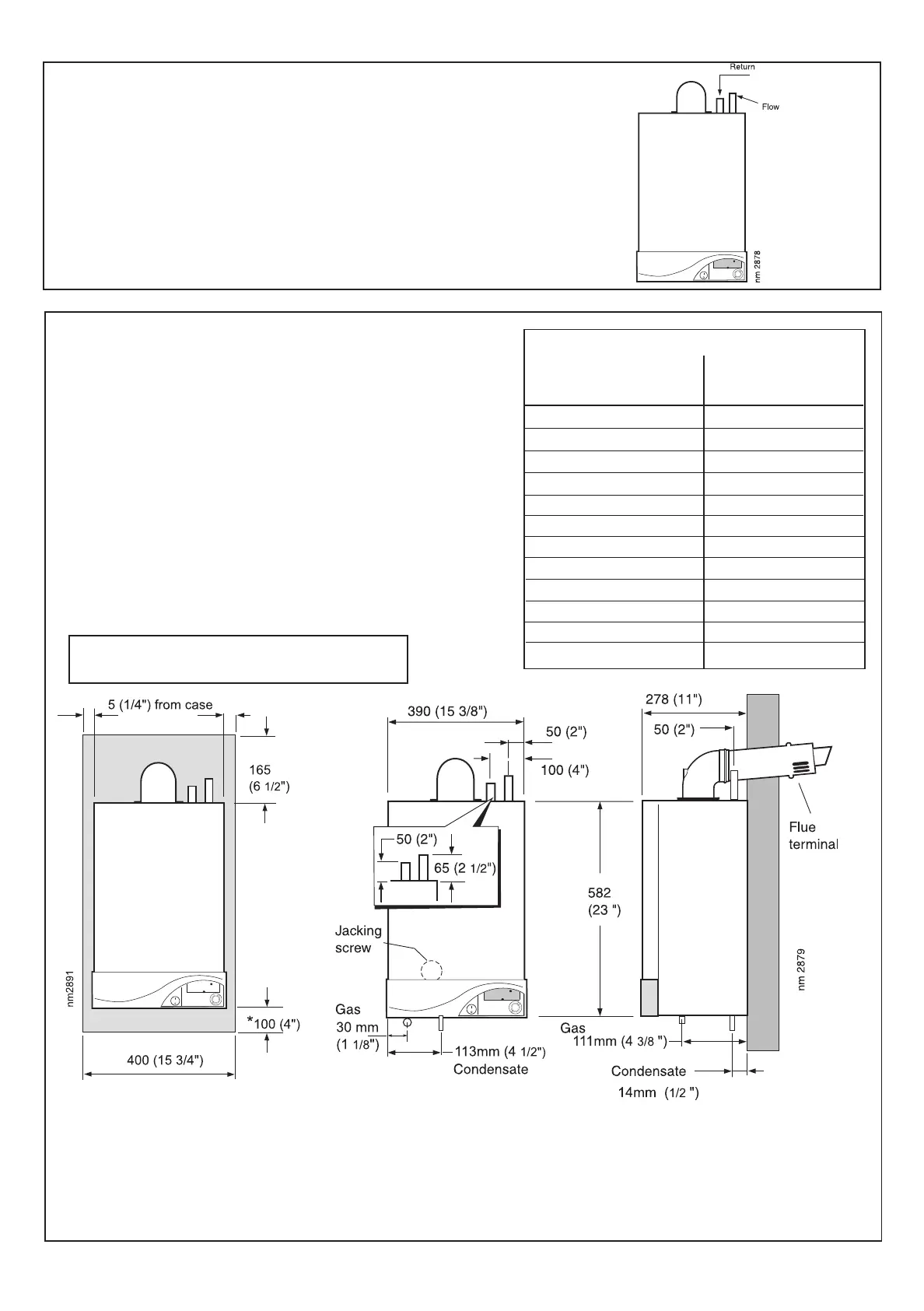
The boiler flow and return pipes are supplied fitted to the boiler
ready for top connection
Notes.
a. For the heating loads in excess of 60,000 Btu/h, 28mm (1") flow
and return pipes should be used to and from the boiler.
b. This appliance is NOT suitable for use with a direct hot water
cylinder.
1
BOILER WATER CONNECTIONS
A
2
BOILER CLEARANCES all dimensions in mm (in.)
The following minimum clearances must be maintained for
operation and servicing.
Additional space will be required for installation, depending upon
site conditions.
Side and Rear Flue
a Provided that the flue hole is cut accurately, e.g. with a core drill,
the flue can be installed from inside the building where wall
thicknesses do not exceed 600mm (24"). Where the space into
which the boiler is going to be installed is less than the length of
flue required the flue must be fitted from the outside.
Installation from inside ONLY
b. If a core boring tool is to be used inside the building the space in
which the boiler is to be installed must be at least wide enough
to accommodate the tool.
Front clearance
The minimum front clearance when built in to a cupboard is
5mm (
1/4") from the cupboard door but 450mm (17 3/4")
overall clearance is still required, with the cupboard door
open, to allow for servicing.
N.B. The boiler will not fit into a standard depth wall unit. In
order for it to do so the plastic fascia should be removed. See
Frame 36.
* Bottom clearance
after installation can be reduced to 5mm in an adequately
ventilated enclosed cupboard. However, 100mm must be
available for servicing.
SIDE FLUE ONLY
Horizontal length of flue Top clearance
from centre line of boiler required (MIN.)
to outside wall Dim. A
0.5 m 165 mm (6
1/2")
1.0 m 170 mm (6
11/16)
1.5 m 185 mm (7 1/4")
2.0 m 200 mm ( 7 7/8")
2.5 m 210 mm (8 1/4")
3.0 m 225 mm (8
7/8")
3.5 m 235 mm (9 1/4")
4.0 m 250 mm (10 7/8")
4.5 m 260 mm (10 1/4")
5.0 m 275 mm (10
13/16")
5.5 m 290 mm (11 3/8")
6.0 m 300 mm (11 13/16")
REAR FLUE ONLY
MIN. Top clearance required = 145 mm (5 3/4")
200212-10.pmd 9/5/2005, 8:58 AM6

Related product manuals