EasyManua.ls Logo

IHI 9VX3 - Page 57

IHI 9VX3
136 pages
Print Icon
To Next Page IconTo Next Page
To Next Page IconTo Next Page
To Previous Page IconTo Previous Page
To Previous Page IconTo Previous Page
Loading...
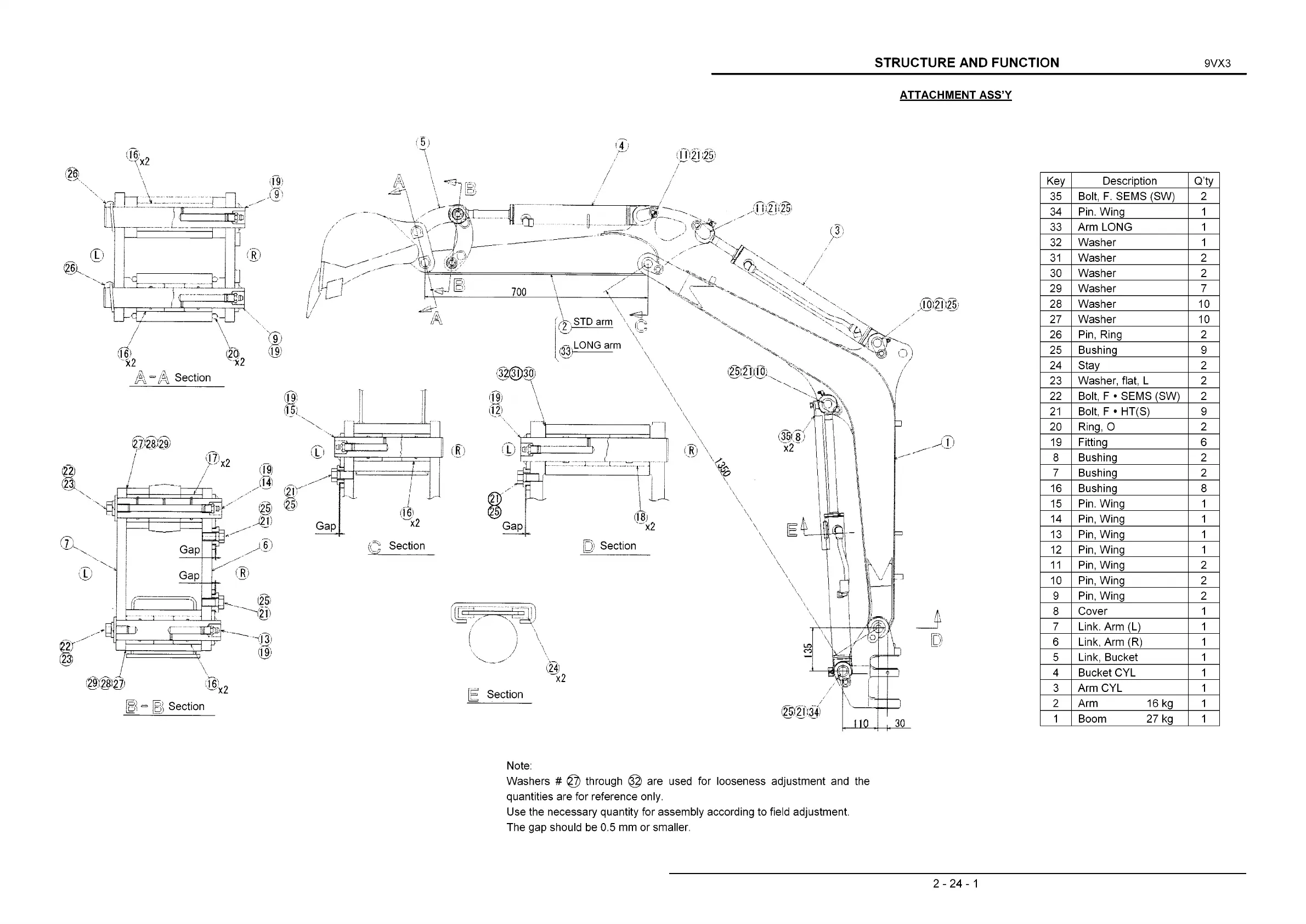
STRUCTURE AND FUNCTION 9VX3
ATTACHMENT ASSY
Key Description
Q’ty
35
Bolt, F. SEMS (SW)
2
34 Pin. Wing 1
33 Arm LONG 1
32 Washer 1
31 Washer 2
30 Washer 2
29
Washer 7
28 Washer 1 0
27 Washer 1 0
26
Pin, Ring 2
25 Bushing 9
24 Stay 2
23
Washer, flat, L
2
2 2 Bolt, F SEMS (SW) 2
21 Bolt, F HT(S) 9
2 0
Ring, 0 2
19 Fitting 6
8 Bushing 2
7 Bushing 2
16 Bushing 8
15 Pin. Wing 1
14 Pin, Wing 1
13 Pin, Wing 1
12 Pin, Wing 1
11 Pin, Wing 2
10 Pin, Wing 2
9 Pin, Wing 2
8
Cover 1
7 Link. Arm (L) 1
6 Link, Arm (R) 1
5
Link, Bucket
1
4 Bucket CYL 1
3 Arm CYL 1
2
Arm 16 kg
1
1 Boom 27 kg 1
Note:
Washers # © through © are used for looseness adjustment and the
quantities are for reference only.
Use the necessary quantity for assembly according to field adjustment.
The gap should be 0.5 mm or smaller.
2-24-1

Related product manuals