EasyManua.ls Logo

IKA ULTRA-TURRAX T50 basic - Page 5

IKA ULTRA-TURRAX T50 basic
Print Icon
To Next Page IconTo Next Page
To Next Page IconTo Next Page
To Previous Page IconTo Previous Page
To Previous Page IconTo Previous Page
Loading...
4
Fig. 4
012008
G 40 G
G 40 M
G 40 F
G 45 G
G 45 M
G 45 F
W 65 SK
S 50 N
S 50 KR
S 50 KG-HH
W 80 SMK
Schaftschlüssel
Generatorschlüssel
2
8
5
10
11
2
11
5
9
7
13
2
12
2001
4
8
5
2001
2001
3007
3008
3011
3010
3009
20
21
20
20
21 21
20
21
20
21
20
21
20
21
8
KG
22
20
21
ULTRA TURRAX T 50 basicULTRA TURRAX T 50 basic
IKAIKA
RR
11
8
3014
LABORTECHNIKLABORTECHNIK
1
2
3
4
5
6
7
10
3001
3013
3003
3004
3005
3006
3007
3008
3009
3002
3010
3011
3012
ws
ws
rt
ws
ws
br
br
br
br
bl
bl
1
2
3
4
5
6
4.000 1/min
5.200 1/min
6.400 1/min
7.600 1/min
8.800 1/min
10.000 1/min
125
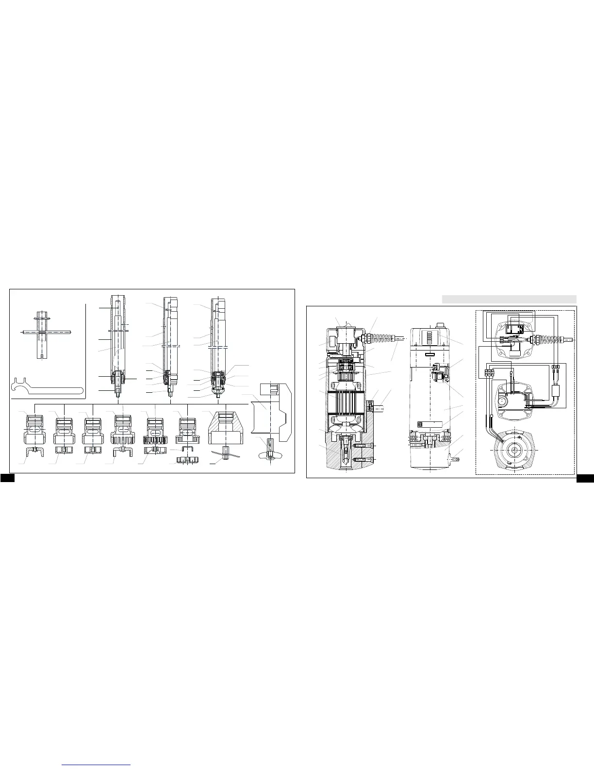
Ersatzteilbild / Spare parts diagram / Pièces de rechange
012008
FOR SERVICE REPAIRMAN ONLY!
Artisan Technology Group - Quality Instrumentation ... Guaranteed | (888) 88-SOURCE | www.artisantg.com

Related product manuals