EasyManua.ls Logo

IMER TR 225 N - Page 12

IMER TR 225 N
Print Icon
To Next Page IconTo Next Page
To Next Page IconTo Next Page
To Previous Page IconTo Previous Page
To Previous Page IconTo Previous Page
Loading...
TR 225 N
12
IMER INTERNATIONAL S.p.A.
TAB.1
(I)
GB)
Lunghezza cavo (m)
Cable length (m)
0 ÷ 15 16 ÷ 25 26 ÷ 45
(I)
GB)
Sezione cavo (mm²)
Cable Section (mm²)
3x 1.5 2.5 4
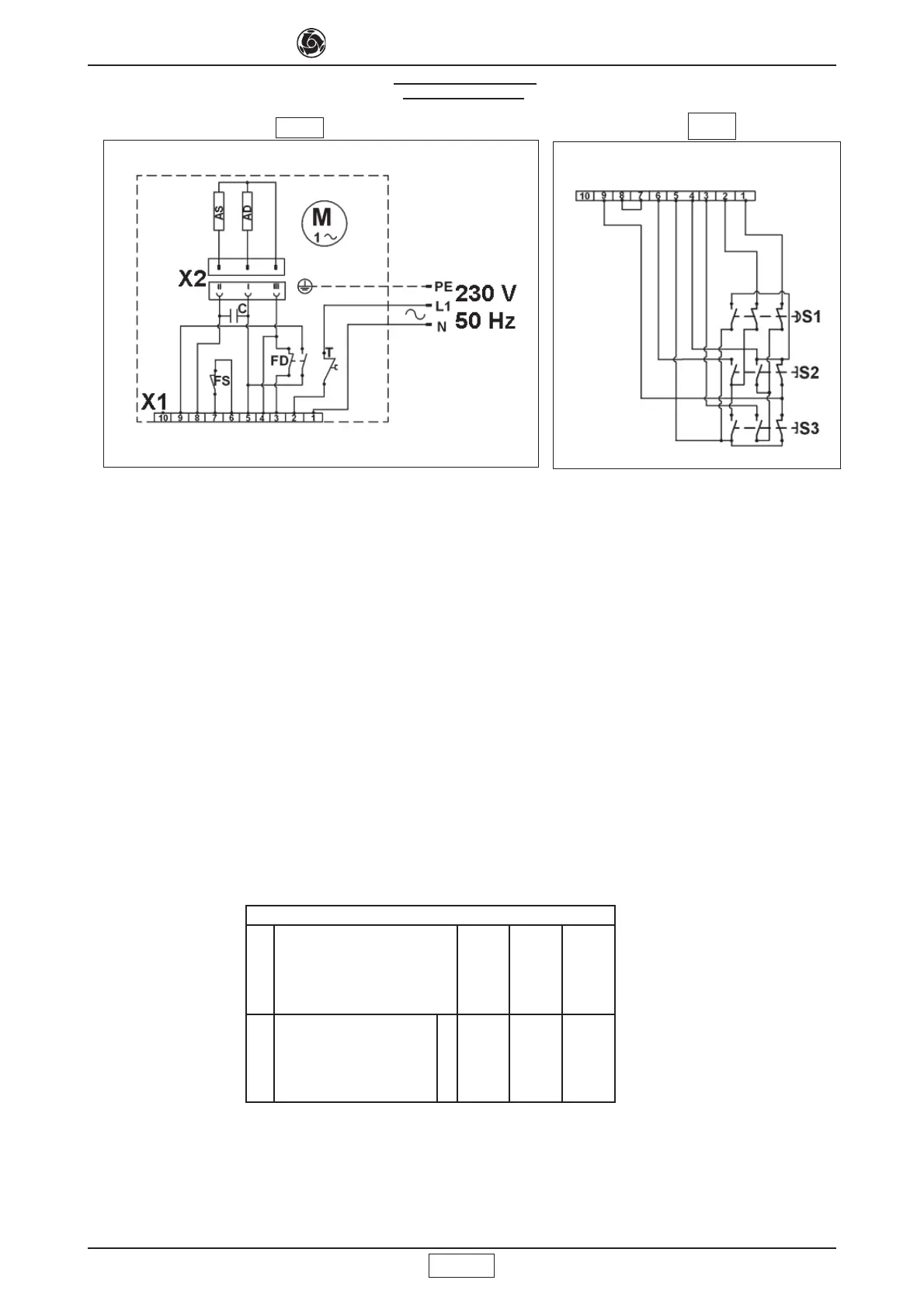
- SCHEMA ELECTRICO -
- WIRING DIAGRAM -
Fig.6.1
QUADRO ELETTRICO (FIG. 6.1)
PE CONDUTTORE DI PROTEZIONE
L1 CONDUTTORE DI LINEA FASE
N CONDUTTORE DI LINEA NEUTRO
T INTERRUTTORE TERMICO
FD FINECORSA DISCESA
FS FINECORSA SALITA
C CONDENSATORE
X1 CONNETTORE COMANDI
X2 CONNETTORE MOTORE
AS AVVOLGIMENTO MOTORE SALITA
AD AVVOLGIMENTO MOTORE DISCESA
PULSANTIERA (FIG. 6.2)
S1 PULSANTE ARRESTO
S2 PULSANTE SALITA
S3 PULSANTE DISCESA
X1 CONNETTORE COMANDI
SWITCHBOARD (FIG. 6.1)
PE EARTH WIRE
L1 LIVE WIRE
N NEUTRAL WIRE
T THERMAL OVERLOAD
FD DOWN LIMIT SWITCH
FS UP LIMIT SWITCH
C CAPACITOR
X1 PENDANT CONTROL CONNECTOR
X2 MOTOR CONNECTOR
AS MOTOR WINDING, UP
AD MOTOR WINDING, DOWN
PENDANT CONTROL (FIG. 6.2)
S1 STOP BUTTON
S2 UP BUTTON
S3 DOWN BUTTON
X1 PENDANT CONTROL PLUG
Fig.6.2

Related product manuals