EasyManua.ls Logo

iMettos B10 - Electrical Installation

iMettos B10
18 pages
Print Icon
To Next Page IconTo Next Page
To Next Page IconTo Next Page
To Previous Page IconTo Previous Page
To Previous Page IconTo Previous Page
Loading...
8
All required safety measures are taken to ensure correct lifting and handling to avoid risk of injury, which may be
through dropping, falling or tilting.
No damage is made to the machine which could impair the normal operation.
7.2. LOCATION
The mixer is not suitable for outdoor installation and must not be installed where a water jet could be used for cleaning.
The mixer must only be operated by trained staff and must be installed in an area where the use and maintenance is
restricted to trained personnel.
Ensure that the mixer is at a height with the bowl handles approximately between the knuckle and elbow height. This will
reduce the need to bend at the waist.
Select a suitable flat level surface that can support the weight of the mixer and bowl contents when full. It is
recommended the mixer is secured in position. Ensure the table, stand or work surface is firmly fixed to the floor. The
appliance must be restrained to prevent any movement during use.
Ensure that there is sufficient space around the mixer to allow for the safe operation. Servicing may also become an issue if
there is a greatly reduced clearance, so ensure that the service accesses to the top, side and rear of the mixer are clear
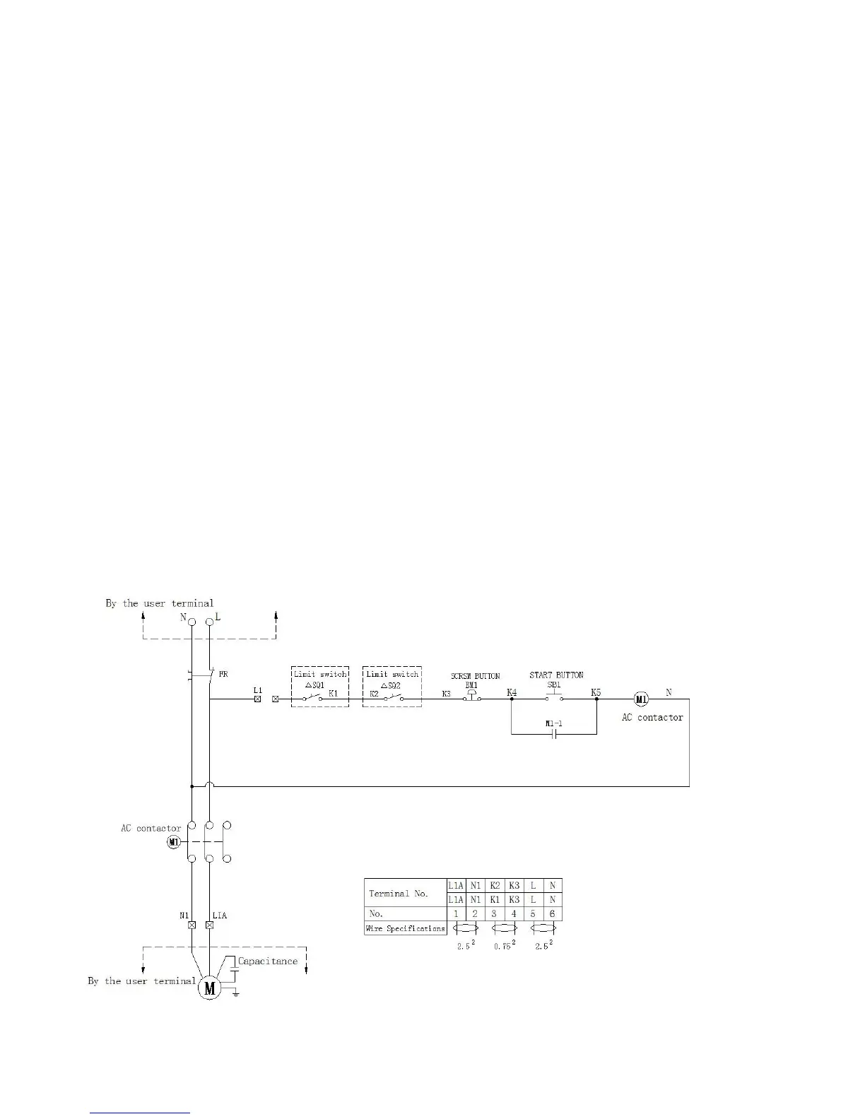
7.3. ELECTRICAL INSTALLATION.
The electrical installation of the mixer must conform to the local or national electricity board regulations.
A competent person must carry out the electrical installation. Ensure that the electrical supply agrees with the machine
specification, prior to connection.
The mixer is 'class l' appliances where the protection against electric shock does not rely solely on basic insulation. An
external electrical isolator and MCB/fuses (both items supplied by others) must be fitted to the incoming electrical supply
to the mixer. In addition a 35mA residual current device is strongly recommended to provide extra protection
This appliance should be connected to the point of the supply with the impedance value Zsys less than (0.05+j0.03)Ω.
If the supply cord is damaged , it must be replaced by a special cord or assembly available from the manufacture or its
service agent.
B10,B20,