EasyManua.ls Logo

Indesit VEM 645 C - Instalacja

Indesit VEM 645 C
64 pages
Print Icon
To Next Page IconTo Next Page
To Next Page IconTo Next Page
To Previous Page IconTo Previous Page
To Previous Page IconTo Previous Page
Loading...
44
PL
Instalacja
! Należy zachować niniejszą instrukcję, aby móc z
niej skorzystać w każdej chwili. W razie sprzedaży,
odstąpienia lub przeniesienia urządzenia, należy się
upewnić, czy instrukcja została przekazana wraz z nim,
aby nowy właściciel płyty grzejnej mógł się zapoznać z
jej działaniem i z właściwymi ostrzeżeniami.
! Należy uważnie przeczytać instrukcję: zawiera ona
ważne informacje dotyczące instalacji, użytkowania i
bezpieczeństwa.
Ustawienie
! Elementy opakowania nie sa zabawkami dla dzieci
i nalezy je usunac zgodnie z normami dotyczacymi
selektywnego gromadzenia odpadów (patrz Zalecenia i
srodki ostroznosci ).
! Instalacja powinna zostać wykonana zgodnie z
niniejszymi instrukcjami przez wykwalifi kowany
personel. Niewłaściwa instalacja może spowodować
szkody w stosunku do osób, zwierząt lub mienia.
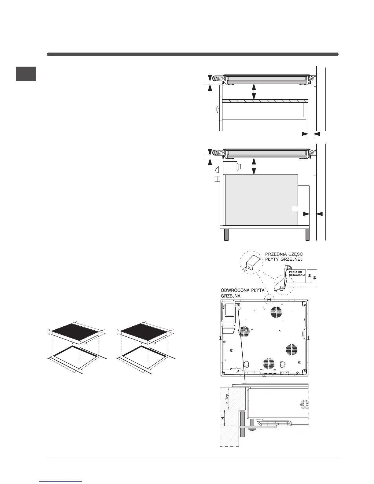
Zabudowa
Aby zapewnić prawidłowe działanie urządzenia, mebel
musi posiadać odpowiednie właściwości:
blat musi być wykonany z materiału odpornego na
ciepło, na temperaturę około 100°C;
jeśli płyta grzejna ma być zainstalowana na piecu,
musi on posiadać system chłodzenia z wentylacją
wymuszoną;
należy unikać instalowania płyty grzejnej na
zmywarce: w przypadku takiej konieczności,
umieścić pomiędzy dwoma urządzeniami szczelny
element oddzielający;
w zaleznosci od plyty grzejnej, jaka ma byc
zainstalowana (patrz rysunki), wewnetrzna czesc
mebla powinna miec nastepujace wymiary:
560 +/- 1
490 +/- 1
48
590
520
560 +/- 1
490 +/- 1
48
574
504
Obieg powietrza
Aby umożliwić właściwy obieg powietrza i aby uniknąć
przegrzania powierzchni wokół urządzenia, płyta grzejna
powinna być umieszczona:
w odległości co najmniej 40 mm od tylnej ściany lub;
w taki sposób, aby zachować odległość minimum
20 mm pomiędzy przestrzenią do zabudowy a
znajdującym się pod nią meblem.
Meble znajduce s obok, a krych wysokość przekracza
wysokość płyty roboczej, powinny zostać odsunięte
5 mm
min. 20 mm
min. 20 mm
min. 40 mm
SZUFLADY
5 mm
min. 40 mm
PIEKARNK
WENTYLATOROWY

Related product manuals