EasyManua.ls Logo

Indesit VRH 600 X - Installatie

Indesit VRH 600 X
48 pages
Print Icon
To Next Page IconTo Next Page
To Next Page IconTo Next Page
To Previous Page IconTo Previous Page
To Previous Page IconTo Previous Page
Loading...
32
NL
Installatie
! Bewaar dit instructieboekje zorgvuldig voor eventuele
raadpleging in de toekomst. Wanneer u het product
weggeeft, verkoopt, of wanneer u verhuist, dient
u dit boekje bij het apparaat te bewaren zodat
waarschuwingen en informatie betreffende werking
voorhanden blijven.
! Lees de instructies aandachtig door: u vindt er
belangrijke informatie betreffende installatie, gebruik
en veiligheid.
Plaatsing
! Het verpakkingsmateriaal is niet bestemd voor
kinderen en dient daarom te worden verwijderd
volgens de geldende normen voor gescheiden
afvalverzameling ( zie Voorzorgsmaatregelen en advies).
! De installatie moet worden uitgevoerd door een
bevoegde installateur en volgens de instructies van
de fabrikant. Een verkeerde installatie kan schade
berokkenen aan personen, dieren of dingen.
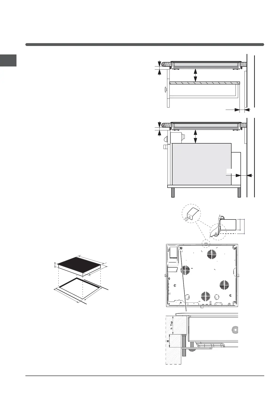
Inbouw
Voor een goede werking van het apparaat moet het
keukenmeubel de juiste kenmerken hebben:
het keukenblad moet uit hittebestendig materiaal zijn
vervaardigd en een temperatuur van circa 100°C
kunnen verdragen;
als de kookplaat boven een oven wordt geïnstalleerd
moet deze zijn voorzien van een geforceerd
geventileerd afkoelingssysteem;
installeer de kookplaat nooit boven een
afwasautomaat: indien u dit toch doet, breng dan
een waterdichte afscheiding aan tussen de twee
apparaten;
naar gelang het type kookplaat dat u wenst
te installeren (zie afbeeldingen), moet het
keukenmeubel de volgende afmetingen hebben:
560 +/- 1
490 +/- 1
53
590
520
Ventilatie
Teneinde een correcte ventilatie te bereiken en
een oververhitting van de oppervlakken rondom het
apparaat te voorkomen, moet de kookplaat geïnstalleerd
worden op:
een minimum afstand van 40 mm van de
achterwand of van elk ander verticaal oppervlak;
op zodanige wijze dat er een minimum afstand
overblijft van 20 mm tussen het inbouwmeubel en
het onderstaande meubel.
5 mm
min. 20 mm
min. 20 mm
min. 40 mm
CASSETTO
5 mm
min. 40 mm
FORNO
VENTILATO
LATO ANTERIORE
DEL PIANO COTTURA
PIANO DI
APPOGGIO
30
40
PIANO COTTURA
ROVESCIATO

Related product manuals