EasyManua.ls Logo

Integra RDV-1.1 - Page 11

Integra RDV-1.1
139 pages
Print Icon
To Next Page IconTo Next Page
To Next Page IconTo Next Page
To Previous Page IconTo Previous Page
To Previous Page IconTo Previous Page
Loading...
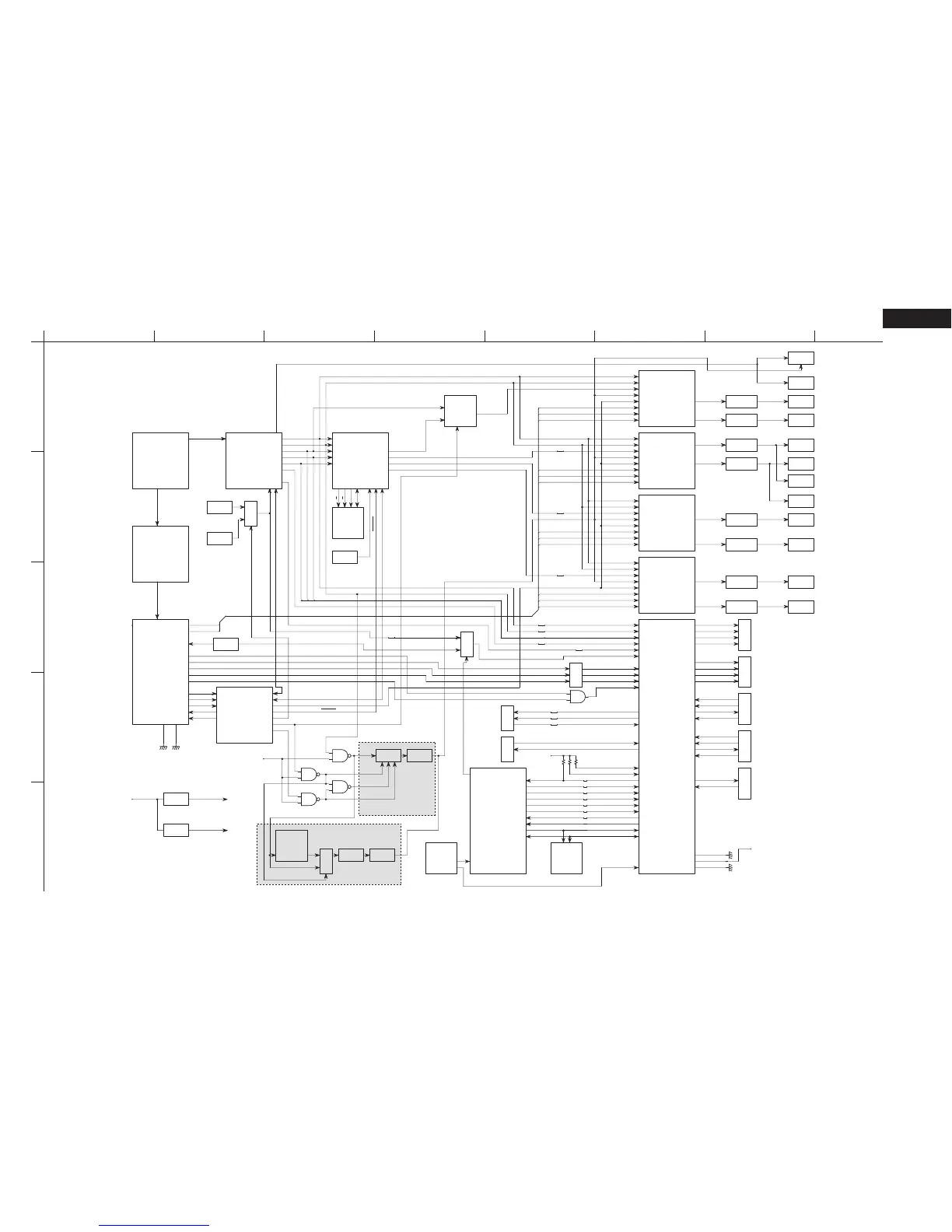
DV-SP1000
BLOCK DIAGRAM-4
A
1
2
3
4
5
BCDEFGH
VLSC
Q4422,4424
FILTER
VLSC
Q4421,4423
FILTER
VLSC
Q4522,4524
FILTER
VLSC
Q4521,4523
FILTER
VLSC
Q4622,4624
FILTER
VLSC
Q4621,4623
FILTER
VLSC
Q4322,4324
FILTER
VLSC
Q4321,4323
FILTER
IEEE1394
PORT-1
IEEE1394
PORT-2
UART
PORT
JTAG
PORT
JTAG
PORT
1
2
3
1
2
3
Q4007 TC74HCT00
1
2
3
1
2
3
HDMI_DATA
AUDIO
SPDIF
OUT
AUDIO
Q4801
LINE_OUT
AUDIO
LINE_OUT
AUDIO
LINE_OUT
AUDIO
Q4851
LINE_OUT
AUDIO
LINE_OUT
AUDIO
Q4751
LINE_OUT
AUDIO
LINE_OUT
AUDIO
Q4901
LINE_OUT
AUDIO
LINE_OUT
AUDIO
Q4701
LINE_OUT
Q3508
LM1117MPX-ADJ
Q3001
LM1117MPX-ADJ
BUFF
Q4015
TC7WH241
CLOCK_SEL
Q4018
TC7W241
AUDIO_PLL
Q4017
TC9246F
BUFF
Q4008
TC7WH241
AUDIO_PLL
Q4011
APOGEE
X4001
13.5MHZ
XTAL
XTAL[DVD]
24.576MHZ
NJU6321PE
Q4016
CLOCK_SEL
Q4018
TC7W241
CLK_SEL
Q3011
TC7WH241
PLL
Q3009
TLC2932
XTAL
33.8688MHZ
BUFFER
Q3005
74VHC541
XTAL
X3001
24.576MHZ
XTAL[CD]
22.5792MHZ
NJU6321PE
Q4014
10K
10K
10K
IEEE1394_CONTROLLER
Q3004
TSB43CA43A
TC7SH08FU
1
2
3
IEEE1394_CONTROL_MPU
Q3502
HD64F2367VF33
SACD-DECODER
Q1301
CXD2753R
RESET
Q3511
S-80145
X1/2
[3V_TO_5V]
TC7WT74
Q4013
DATA_SELECT
Q4019
TC7WH241
2M_SRAM
Q4005
CY7C1019BV33
Q4006
FLASH-ROM
Q3501
MBM29F800TA-70PF
M32102S6FP
Q2101
DVD_CONTROL_MPU
AUDIO_BASS_MANAGEMENT
Q1402
MB86344B
AUDIO_DAC
Q4602
WM8719
AUDIO_DAC
Q4502
WM8719
AUDIO_DAC
Q4402
WM8719
AUDIO_DAC
Q4302
WM8719
STREAM_SELECTOR
Q1371
HARMONY-8L
SERVO_PROCESSOR
Q1201
CXD1885Q
AV_1CHIP_DECODER
Q2001
M65776CFP
DOUT1 DOUT1
MCLK[256/128FS]
BCLK
LRCK
SDATA1
FL
AO1 DSD_DATA1[LDATA]
DSD_DATA2[RDATA]
SDO1 DSD_SCLK FR
BD[7..0] BCLK BCLK
LRCK LRCK SL
AO1 SDO1 SDATA2
AO2 SDO2
AOD SDO3 SR
AAD SDOD DSD_DATA3[LDATA]
X2FS DSD_DATA4[RDATA]
DSD_SCLK
RD
WR
AD
DA
ACLKI
DOUT0
VDT[7..0]
SDATA3
MCLK[256/128FS] C
XRST[DSP]
HCLK/HCS/HDIN/HDOUT/HACN
DSD_DATA5[LDATA]
4448X
DSD_DATA6[RDATA]
DSD_SCLK LFE
SDATA4
DMXL
BCLK CDATA/CLATCH/CCLK
LRCK DSD_DATA7[LDATA]
SD[7..0]
DSD_DATA8[RDATA]
DSD_SCLK DMXR
DSA[7..0] MLPCM_BCLK[64FS] TPA0P
BCKAO MLPCM_LRCLK TPA0N
DVD_CLK MLPCM_D[2..0] TPB0P
MCKI MLPCM_A[ANCILLARY] TPB0N
CD_CLK DOUT0 HSDI1_60958_OUT
IBCK[128FS] HSDI0_AMCLK_IN
IOUT[5..0] TPA1P
IANCO HSDI1_D[5..0] TPA1N
IFRM HSDI1_D6[ANCILLARY] TPB1P
IOUTE[64FS] HSDI1_SYNC TPB1N
HSDI1_CLK
MSDTAI
MSCK HCLK/HCS/HDIN/HDOUT/HACN JTAG_TCK
XMSLAT CDATA/CLATCH/CCLK JTAG_TDI
MSREADY
XRST[DSP]
FIN-A REF_SYT JTAG_TDO
MADAT0 4448X FIN-B DIV_VCO JTAG_TMS
X2FS VCO_OUT VCO_CLK
X4FS
IFULL
IEMPTY
JTAG_TRST
XI XI ARM_JTAG_TDI
XO XO ARM_JTAG_TDO
LRCK +3.3V ARM_JTAG_TMS
+3.3V
CLK_SEL
MCIF_RW
FS0[5V] MCIF_STRBZ
WAIT# MCIF_WAIT UART_TXD
FS2[5V] CS0# MCIF_CS_IOZ UART_RXD
CS2# MCIF_CS_MEMZ
EV5.6 3.3V_TSB FS1[5V] RD# MCIF_OEZ
WE0# MCIF_WEZ
CKIO MCIF_BUSCLK
IRQ1/IRL1# MCIF_INTZ
IRQ2/IRL2# WTCH_DG_TMRZ
3.3V_HD A[10..0] MCIF_ADDR[10..1]
D[15..0] MCIF_DATA[15..0]
+3.3V
MCIF_MODE2
MCIF_MODE1
RESET_ARMZ MCIF_MODE0
FS0[5V]
POWER_P3503
DV-SP1000/ DPS-10.5
RDV-1.1
AUDIO SECTION-1

Related product manuals