EasyManua.ls Logo

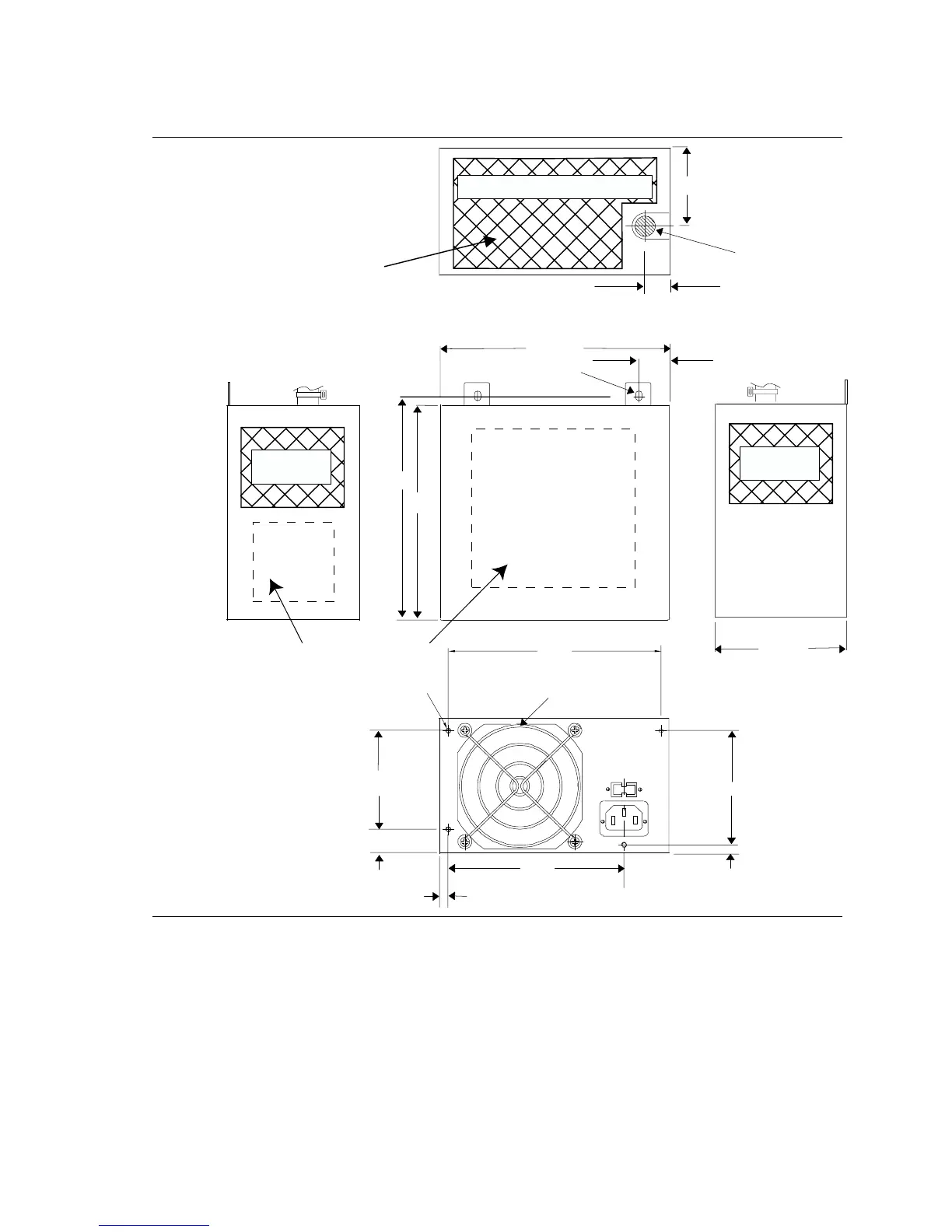
Intel ATX12V - Figure 8. Power Supply Dimensions for Chassis that Does Not Require Top Venting

Intel ATX12V
43 pages
Print Icon
To Next Page IconTo Next Page
To Next Page IconTo Next Page
To Previous Page IconTo Previous Page
To Previous Page IconTo Previous Page
Loading...
ATX12V Power Supply Design Guide
Version 2.0
29
.
3. Tolerances:
X +/- 1
X.X +/- 0.5
4. If a wire grill is required
for acoustics or thermals,
the grill and screws must
be flush mounted.
Air inlet grill, 55% open area.
Optional air
inlet area.
Optional air
inlet area.
53 REF
WIRE HARNESS
16 REF
150 REF
20.0
(2X)
4.0X6
(2X)
146.0
140 REF
No. 6-32 UNC-2B THREADED HOLE (4X)
138.0
86 REF
74.0
6.0
114.0
64.0
16.0
6.0 (2X)
Notes; unless otherwise
specified:
1. Dimensions are in mm.
2.
Drawing is not to scale.
See Note 4.
psu_grills
Preferred locations of
manufacturer label
Figure 8. Power Supply Dimensions for Chassis That Does Not Require Top Venting
Second optional
fan may go in
this location

Table of Contents

Related product manuals