EasyManua.ls Logo

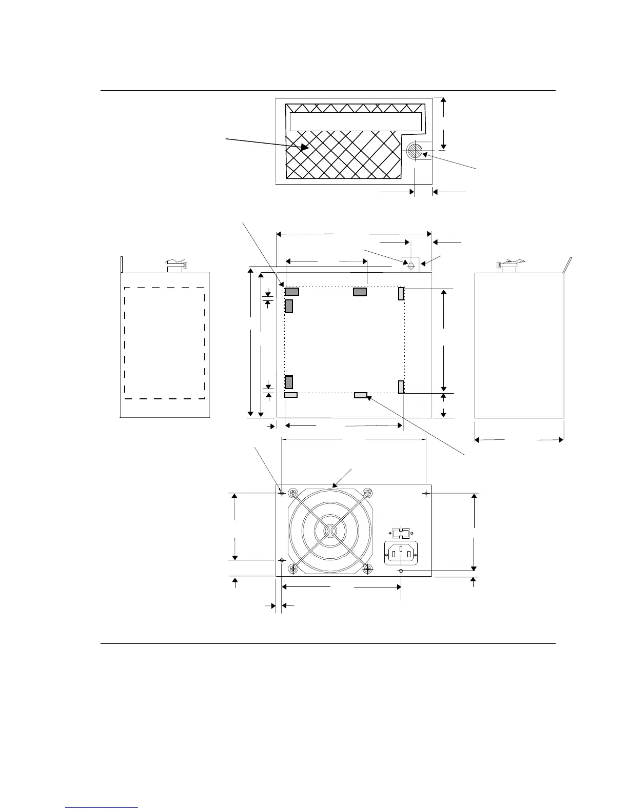
Intel ATX12V - Figure 9. Power Supply Dimensions for Chassis that Require Top Venting

Intel ATX12V
43 pages
Print Icon
To Next Page IconTo Next Page
To Next Page IconTo Next Page
To Previous Page IconTo Previous Page
To Previous Page IconTo Previous Page
Loading...
ATX12V Power Supply Design Guide
Version 2.0
30
.
53 REF
WIRE HARNESS
16 REF
150 REF
20.0
(2X)
4.0X6
94.0
11.0 x 5.0 cutouts (4X);
min 6.0 clearance under
cutout from inside top cover.
See Note 5.
Area on top surface
inside dotted lines should
have 60% minimum open
area for proper venting.
Eight rectangular holes
are for air duct mounting
to direct airflow across
processor heatsink.
146.0
140 REF
5.0
5.0
86 REF
80.0
45.0
8.0
114.0
138.0
3. Tolerances:
X +/- 1
X.X +/- 0.5
4. If a wire grill is required
for acoustics or thermals,
the grill and screws must
be flush mounted.
5. Bottom side (not pictured)
may be user-accessible in
final system installation.
Cover openings as
necessary to prevent
access to non-SELV
circuitry and to meet product
safety requirements.
No. 6-32 UNC-2B THREADED HOLE (4X)
Notes; unless otherwise specified:
1. Dimensions are in mm.
2.
Drawing is not to scale.
64.0
16.0
6.0 (2X)
114.0
See Note 4.
9.0 x 3.2 cutouts (4X);
min 5.0 clearance under
cutout from inside top cover.
74.0
6.0
psu_duct_mount
Preferred location of
manufacturer label
Figure 9. Power Supply Dimensions for Chassis That Require Top Venting
Optional Venting Area
Second optional
fan may be located
in optional venting
area or on topside.

Table of Contents

Related product manuals