EasyManua.ls Logo

Inter-m ACR-60 - Wiring Diagram

Inter-m ACR-60
15 pages
Print Icon
To Next Page IconTo Next Page
To Next Page IconTo Next Page
To Previous Page IconTo Previous Page
To Previous Page IconTo Previous Page
Loading...
1716
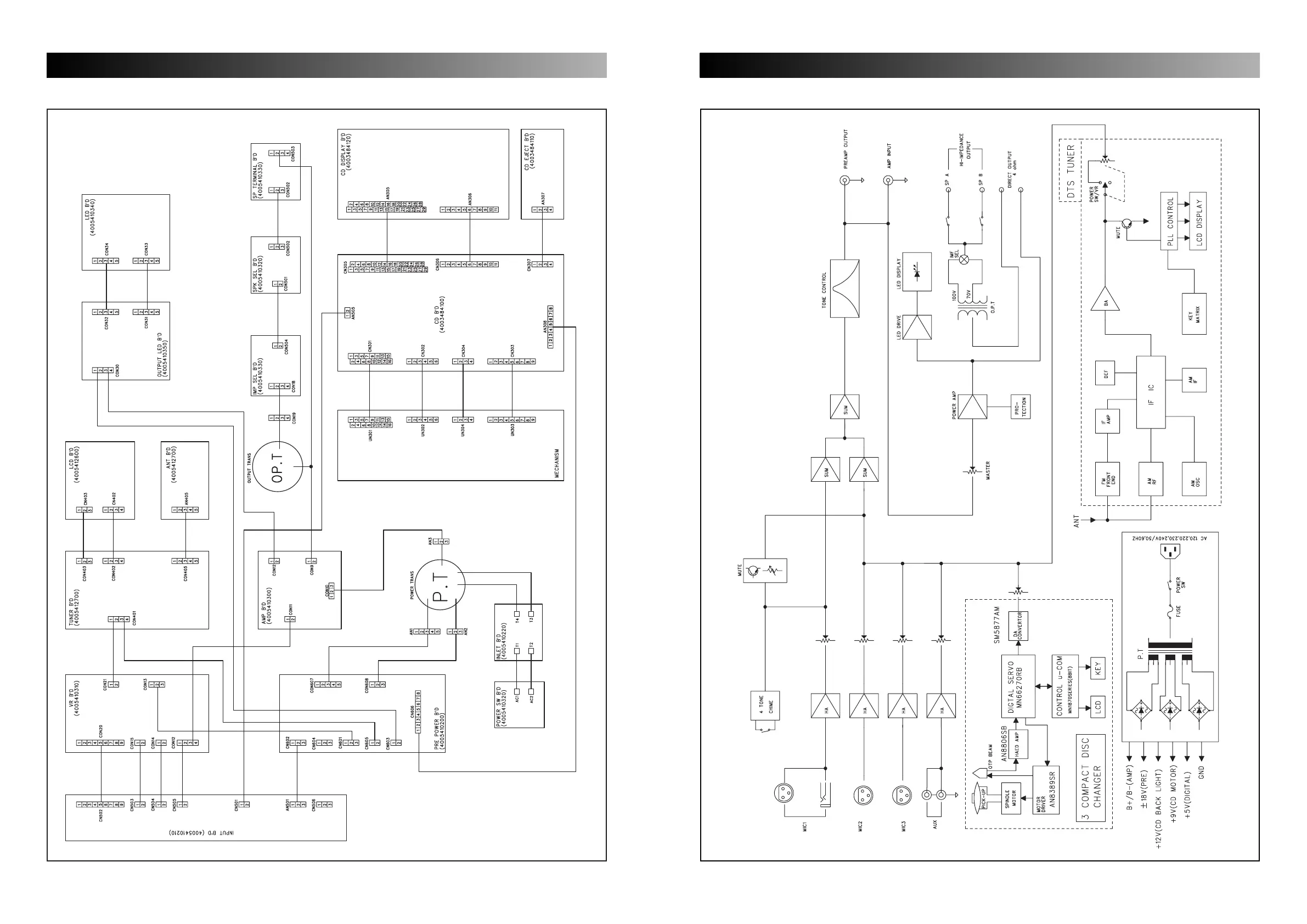
WIRING DIAGRAM BLOCK DIAGRAM

Related product manuals