EasyManua.ls Logo

Intermatic PE25300 - Wiring Diagram; Operation; Limited One Year Warranty

Intermatic PE25300
4 pages
Print Icon
To Previous Page IconTo Previous Page
To Previous Page IconTo Previous Page
Loading...
Because of our commitment to continuing research and improvements, Intermatic Incorporated reserves the right to make changes, without notice, in the specifications and material
contained herein and shall not be responsible for any damages, direct or consequential, caused by reliance on the material presented.
INTERMATIC INCORPORATED, SPRING GROVE, IL 60081-9698
http://www.intermatic.com
158PE11221
4
LIMITED ONE YEAR WARRANTY
If within the warranty period specified, this product fails due to a defect in material or workmanship, Intermatic Incorporated will repair or replace
it, at its sole option, free of charge. This warranty is extended to the original house hold purchaser only and is not transferable. this warranty does
not apply to: (a) damage to units caused by accident, dropping or abuse in handling, acts of God or any negligent use; (b) units which have been
subject to unauthorized repair, opened, taken apart or otherwise modified; (c) units not used in accordance with instructions; (d) damages exceed-
ing the cost of the product; (e) sealed lamps and/or lamp bulbs, LED’s and batteries; (f) the finish on any portion of the product, such as surface
and/or weathering, as this is considered normal wear and tear; (g) transit damage, initial installation costs, removal costs, or reinstallation costs.
INTERMATIC INCORPORATED WILL NOT BE LIABLE FOR INCIDENTAL OR CONSEQUENTIAL DAMAGES. SOME STATES DO NOT ALLOW THE EXCLU-
SION OR LIMITATION OF INCIDENTAL OR CONSEQUENTIAL DAMAGES, SO THE ABOVE LIMITATION OR EXCLUSION MAY NOT APPLY TO YOU. THIS
WARRANTY IS IN LIEU OF ALL OTHER EXPRESS OR IMPLIED WARRANTIES. ALL IMPLIED WARRANTIES, INCLUDING THE WARRANTY OF MER-
CHANTABILITY AND THE WARRANTY OF FITNESS FOR A PARTICULAR PURPOSE, ARE HEREBY MODIFIED TO EXIST ONLY AS CONTAINED IN THIS
LIMITED WARRANTY, AND SHALL BE OF THE SAME DURATION AS THE WARRANTY PERIOD STATED ABOVE. SOME STATES DO NOT ALLOW LIM-
ITATIONS ON THE DURATION OF AN IMPLIED WARRANTY, SO THE ABOVE LIMITATION MAY NOT APPLY TO YOU.
This warranty gives you specific legal rights and you may also have other rights which vary from state to state. Warranty service is available by
mailing postage prepaid to: Intermatic Incorporated/After Sales Service, 7777 Winn Rd., Spring Grove, IL 60081-9698/815-675-7000
http://www/intermatic.com
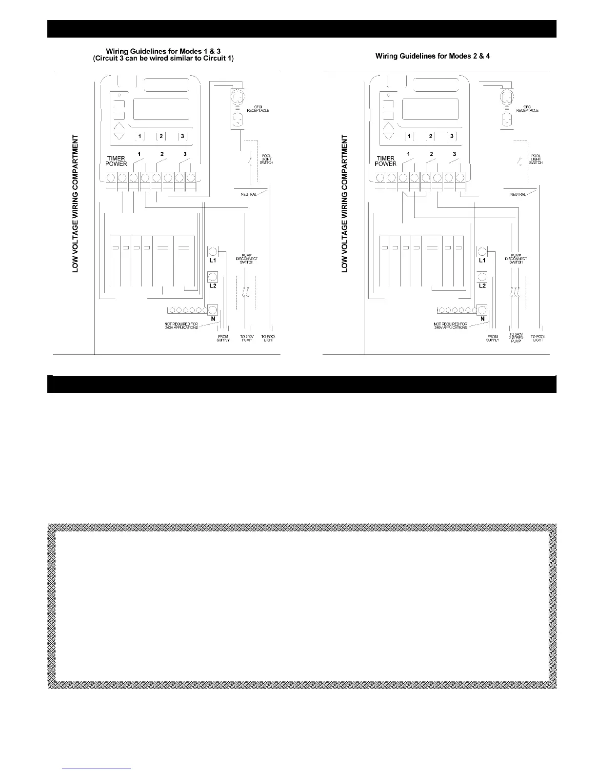
WIRING DIAGRAM
NOTES: 1.
Grounding connections are not shown but must be provided. Refer to the National Electrical Code for details.
2.
Diagrams above are only two of the many variations this Panel can accommodate.
P1353ME Operating instructions
1. Press PROG Key to cycle through menu options.
2. Press UP and DOWN arrow keys to change program settings.
3. Press ENTER key to save changes and exit programming mode.
4. Press ON/OFF keys to manually turn devices ON or OFF.
For more details, please refer to instruction manual booklet
OPERATION
NOTE: Refer to Digital Time Clock instruction manual booklet for description of modes.

Related product manuals