EasyManua.ls Logo

Invicta AKIMIX - Page 2

Invicta AKIMIX
Print Icon
To Next Page IconTo Next Page
To Next Page IconTo Next Page
To Previous Page IconTo Previous Page
To Previous Page IconTo Previous Page
Loading...
Poêle AKIMIX
Référence P619044
XD, le 07/12/2021 Français English - Deutsch
Page 2 sur 64
Notice particulière d’utilisation et d’installation
Consulter attentivement ce complément notice particulière ainsi que la notice générale également livrée avec l’appareil
Cet appareil est un poêle à bûches, avec un dispositif d’alimentation en granulés, qui peut être mis en service manuellement, pour
assurer la continuité du chauffage quand les contraintes de chargement en bûches ne peuvent être assurées.
Caractéristiques et performances en fonctionnement intermittent suivant EN 13240 :
Puissance nominale
7 kW
Rendement
76 %
Taux de CO%
0.10 %
Classement Flamme verte

Concentration de poussières rejetées à 13% d’O2
40 mg/Nm
3
fumées
312 °C
Combustible recommandé
Bois / bûches de 25 cm
longueur maximale possible (horizontalement) : 38 cm
Débit massique des fumées
6.6 g/s
Protection du sol
L’appareil ne doit pas être posé directement sur un sol en matériaux combustible ou se dégradant sous l’effet de la
chaleur. Si le cas se présente, placer l’appareil sur une sole carrelée ou une plaque métallique réfléchissante d’un mètre²
(1m x1m) centrée sous l’appareil pour protéger le sol contre le risque de températures élevées.
Distance minimale à respecter par rapport aux matériaux combustibles adjacents : Arrière 80 cm, latéral 80 cm
Si les parois avoisinantes sont en matériaux incombustible et ne se dégradent pas sous l’action de la chaleur (la
température du mur pouvant atteindre 200 °C), ces dimensions peuvent être réduites à 15 cm.
Autre combustible
Puissance calorifique (max/min) & consommation horaire
Combustion prolongée
8 h
Caractéristiques de construction :
Masse de l’appareil
181 kg
Chambre de combustion
Avec système de post combustion
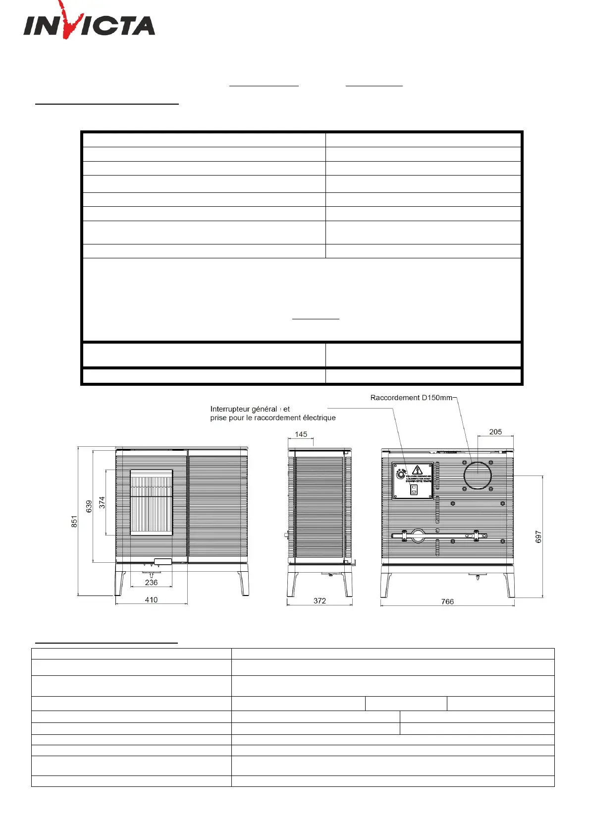
Raccordement au conduit de fumée par la buse située
sur le dessus ou sur l’arrière
Diamètre : 150 mm
Encombrement
h 851 mm
lg 766 mm
prof 372 mm
Dimensions de la porte
H 639 mm
lg 410 mm
Vision du feu
h 374 mm
lg 236 mm
Plaque signalétique
Collée sous couvercle trémie
Capacité du réservoir utile
15 kg
Tension et fréquence d’alimentation électrique
(pour fonctionnement au granulé seulement)
230 V / 50Hz
Puissance électrique absorbée
40 W

Other manuals for Invicta AKIMIX

Related product manuals