EasyManua.ls Logo

Invicta AKIMIX - Recommended Fuel

Invicta AKIMIX
Print Icon
To Next Page IconTo Next Page
To Next Page IconTo Next Page
To Previous Page IconTo Previous Page
To Previous Page IconTo Previous Page
Loading...
XD, le 07/12/2021 Français English - Deutsch
Page 25 sur 64
AKIMIX Wood Stove Reference P619044
Installation and user guide
Please read both this user manual and the general manual which were delivered with the appliance.
This model is for burning logs, with an additional feed to take granules, which can be installed manually to ensure that the stove
continues to work where logs cannot be supplied.
Non-continuous use in compliance with standard EN 13240:
Normal Output
7 kW
Output
76 %
Percentage CO2
0.10 %
Green Flame Class

Dust concentration at 13% O2
40 mg/Nm
3
T° smoke
312 °C
Recommended fuel
25 cm diameter wood / logs
Maximum possible length (horizontally): 38 cm
Smoke mass debit
6.6 g/s
Floor protection
The stove must not be placed on flooring made of combustible material or which might be degraded by heat. If the
flooring is made of combustible material, the stove should be placed centrally on a square of metal or tiling of 1 sq.m. to
protect the flooring from high temperatures.
Minimum distance from adjacent combustible material: Behind 80 cm, Lateral 80 cm
If the surrounding surfaces are made of material which is inflammable and cannot be degraded by heat (the temperature
of the wall may reach 200 °C), The dimensions can be reduced to 15 cm.
Other inflammable material
Heat output (max / min) and hourly consumption rate
Combustion over a long period
8 h
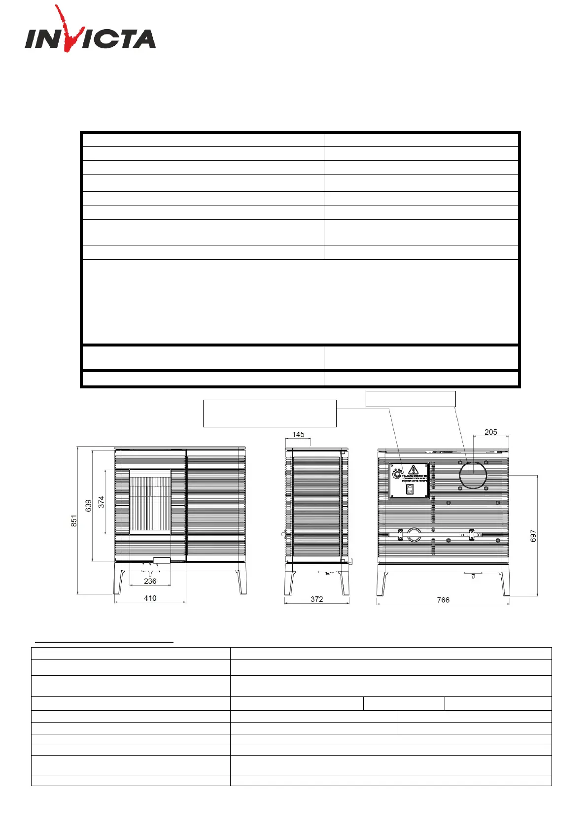
D150 mm connector
Main power switch and power cable
Characteristics of the wood stove
Weight of the stove
181 kg
Combustion chamber
With post-combustion system
Connection to the flue via the nozzle situated on the
top or at the back of the appliance
Diameter: 150 mm
Volume
Height 851 mm
Length 766 mm
Depth 372 mm
Dimensions of the hearth door
Height 639 mm
Length 410 mm
Flame viewer
Height 374 mm
Length 236 mm
Notice
Affixed under the hopper cover
Usable reservoir capacity
15 kg
Voltage and frequency of electrical supply
(for use with granules only)
230 V / 50Hz
Electrical current consumed
40 W

Other manuals for Invicta AKIMIX

Related product manuals