EasyManua.ls Logo

IPC Gansow 1010 E - Page 14

IPC Gansow 1010 E
Print Icon
To Next Page IconTo Next Page
To Next Page IconTo Next Page
To Previous Page IconTo Previous Page
To Previous Page IconTo Previous Page
Loading...
Pag. 13
ITALIANO (Istruzioni originali)
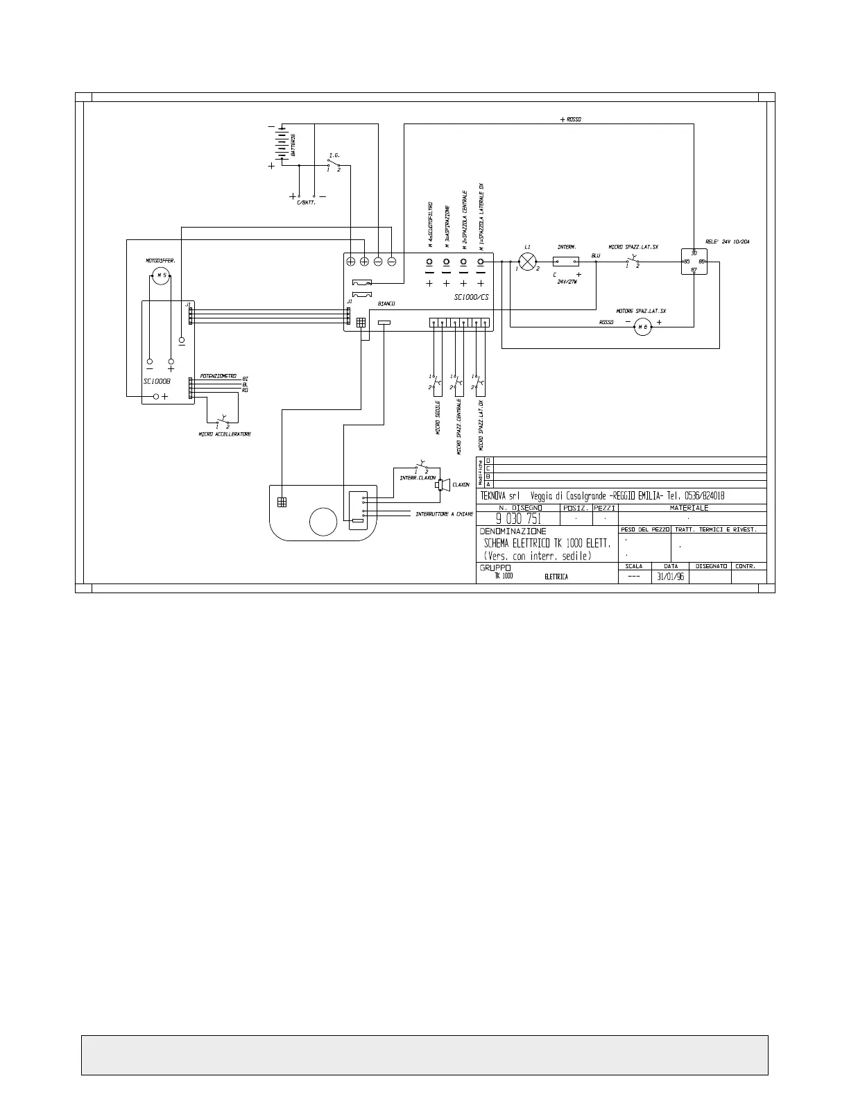
8.2 - SCHEMA ELETTRICO 8.2 - WIRING DIAGRAM
COMPONENTI:
Batt. Batterie
M1 Motore spazzola laterale DX
M2 Motore spazzola centrale
M3 Motore ventola aspirazione
M4 Motovibratore scuotifiltro
M5 Motodifferenziale
M6 Motore spazzola laterale SX
I.G. Chiave staccabatteria
C.Batt. Presa carica batteria
Int.1 Micro spazzola laterale
Int.2 Micro per acceleratore
Int.3 Micro spazzola centrale
F1 Fusibile 1,25A 250V
F2 Fusibile a barra 50A
Pot.1 Potenziometro regolaz.velocità
Tr1 Trimmer regolazione frenata
Comm.1 Commutatore funzione
Comm.2 Commutatore direzione
P1 Pulsante avvisatore acustico
C Avvisatore acustico
CH Interruttore a chiave
SC1 Scheda visualizz.carica batterie
SC2 Scheda completa di contaore

Related product manuals