EasyManua.ls Logo

IPC Gansow 1010 E - Page 85

IPC Gansow 1010 E
Print Icon
To Next Page IconTo Next Page
To Next Page IconTo Next Page
To Previous Page IconTo Previous Page
To Previous Page IconTo Previous Page
Loading...
Pag. 13
NEDERLANDS (Vertaling van de oorspronkelijke aanwijzingen)
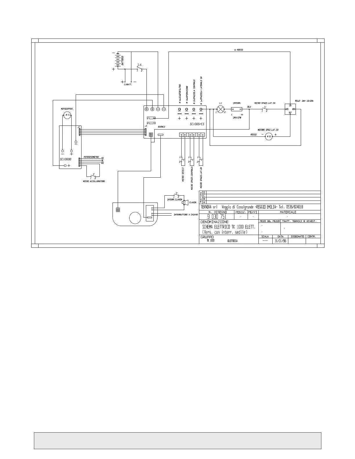
8.2 - BEDRADINGSSCHEMA 8.2 - WIRING DIAGRAM
COMPONENTEN:
Batt. Batterijen
M1 Motor Re. zijborstel
M2 Motor middelste borstel
M3 Motor zuigventilator
M4 Motorbediende triller filterschudder
M5 Motordifferentieel
M6 Motor Li. zijborstel
H.S. Sleutel uitschakelen batterij
Batt.Lad. Stopcontact batterijlader
Schak.1 Micro zijborstel
Schak.2 Micro voor gaspedaal
Schak.3 Micro middelste borstel
F1 Zekering 1,25A 250V
F2 Zekering 50°
Pot.1 Potentiometer snelheidsregel.
Tr1 Trimmer regel. remwerking
Omkeerd.1 Functie-omkeerder
Omkeerd.2 Richtingsomkeerder
P1 Drukknop claxon
C Claxon
SL Sleutelschakelaar
SC1 Kaart weergave batterijlader
SC2 Kaart met urenteller

Related product manuals