EasyManua.ls Logo

J. A. Roby Elda - EXTERNAL COMBUSTION AIR SOURCE; Exterior Air Intake pipe; Installation of Air Intake Pipe; Air Intake Obstruction

J. A. Roby Elda
35 pages
Print Icon
To Next Page IconTo Next Page
To Next Page IconTo Next Page
To Previous Page IconTo Previous Page
To Previous Page IconTo Previous Page
Loading...
July 13, 2017
17
EXTERNAL COMBUSTION AIR
SOURCE
In a conventional house, the natural fresh air supply is
sufficient to operate the wood stove properly.
However, in new energy saving houses, some of them could
be too air-tight and the fresh air supply might not be sufficient
for the stove to operate properly. It is therefore recommended
to install an outside combustion air duct to avoid smouldering
fire that can cause smoke spill out. This negative pressure in
the house can be also caused by some ventilators in motion
such as a tumble dryer, cooking fan, bathroom fan, etc.
If there is no outside combustion air duct, it is recommended to
open a window slightly in the room where the appliance is
placed in order to avoid the negative pressure caused by the
appliances mentioned above.
A mobile home on a foundation is considered as a
conventional house.
Exterior Air Intake pipe
This appliance has an outdoor air intake.
We recommend using a 4 inches (10.7 cm) diameter aluminum
fireproof flexible pipe with a fireproof insulating coating, an
outside cap and a weatherproof grate.
The grate openings must be smaller than ¼ x ¼ inches (6mm x
6mm).
In case of using air ducts made of other materials, they must
complied with ULC-S110 norms or UL-181 Class1 norms. They
must also be equipped with fireproof insulation and be
corrosion resistant.
THE STOVE MUST BE FIXED TO THE STRUCTURE WHEN
AN EXTERIOR AIR INTAKE IS INSTALLED.
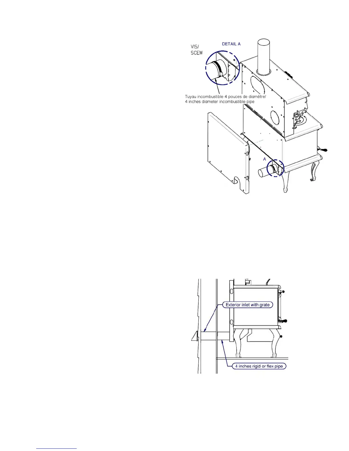
Installation of Air Intake Pipe
You can find external air intake head and grating in hardware
store. (The back panel is removed in the following picture only
to show the flue collar)
1) Find the air intake under the appliance
2) Fix the flexible or rigid pipe to the air intake collar with
a pipe clamp (A).
To install the outdoor air intake through a wall or a floor, follow
the air intake manufacturer installation instructions. Be sure to
seal the edge of the hole correctly too prevent loss of your
vapour barrier efficacy.
To avoid cold air entering in the stove constantly, we
recommend installing a damper which closes the pipe near the
outdoor air intake. Install a small rigid section of tube inside the
outdoor air intake and put a damper inside the rigid section to
close the air Intake. This damper is to reduce the cold air
circulation in the stove when it is not in use.
Connect the flexible air intake pipe onto the damper section.
Put a fireproof thermal insulation around the pipe if the pipe is
not insulated.
Air Intake Obstruction
If the stove extinguishes after closing the door, it’s possible that
the outdoor air inlet is obstructed by something, or that the
damper of the air intake is closed.
After a long period of disuse, insects or animals can build a
nest inside the air intake.
After a storm in winter, snow can accumulate over the air
intake and obstruct it.
Before the heating season, always inspect the air intake pipe to
be sure nothing is obstructing it.

Table of Contents

Related product manuals