EasyManua.ls Logo

Jackson ECOLAB ES-2000-V - Dimensions Es-4000 Cdr

Jackson ECOLAB ES-2000-V
91 pages
Print Icon
To Next Page IconTo Next Page
To Next Page IconTo Next Page
To Previous Page IconTo Previous Page
To Previous Page IconTo Previous Page
Loading...
ES-2000 & ES-4000 Series Installation/Operation Manual 7610-011-35-10
Issued: 10-29-2007 Revised: N/A
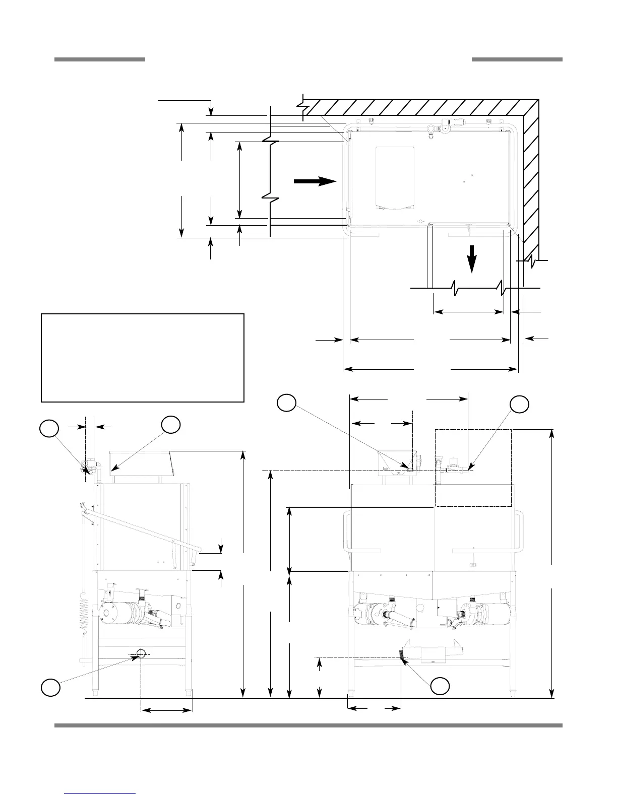
SECTION 1: SPECIFICATION INFORMATION
DIMENSIONS ES-4000CDR
9
19”
OPENING
12 3/8”
2 1/2”
5”
2 1/2”
20 3/4”
OPENING
4 1/2”
MINIMUM
1 1/2”
20 3/4”
OPENING
2 1/2”
4”
MINIMUM
3 1/2”
A.- DRAIN-GRAVITY 2” NPT
B.- WATER INLET 3/4” NPT
C.- ELECTRICAL CONNECTION
ALL DIMENSION FROM FLOOR ARE
ADJUSTABLE +/- 1/2” DUE TO BULLET FEET.
32 3/4”
25 3/4”
43 1/2”
46 1/2”
30 1/2”
16”
C
C
B
B
A
A
77”
60 3/4”
66 1/4”
34”
12”
14”

Table of Contents

Related product manuals