EasyManua.ls Logo

Jackson JPX-300H - JPX-300 H;HC Dimensions

Jackson JPX-300H
49 pages
Print Icon
To Next Page IconTo Next Page
To Next Page IconTo Next Page
To Previous Page IconTo Previous Page
To Previous Page IconTo Previous Page
Loading...
JPX-300 Installation/Operation Manual 7610-002-71-26 Rev. J
Issued: 03-09-2006 Revised: N/A
SECTION 1: SPECIFICATION INFORMATION
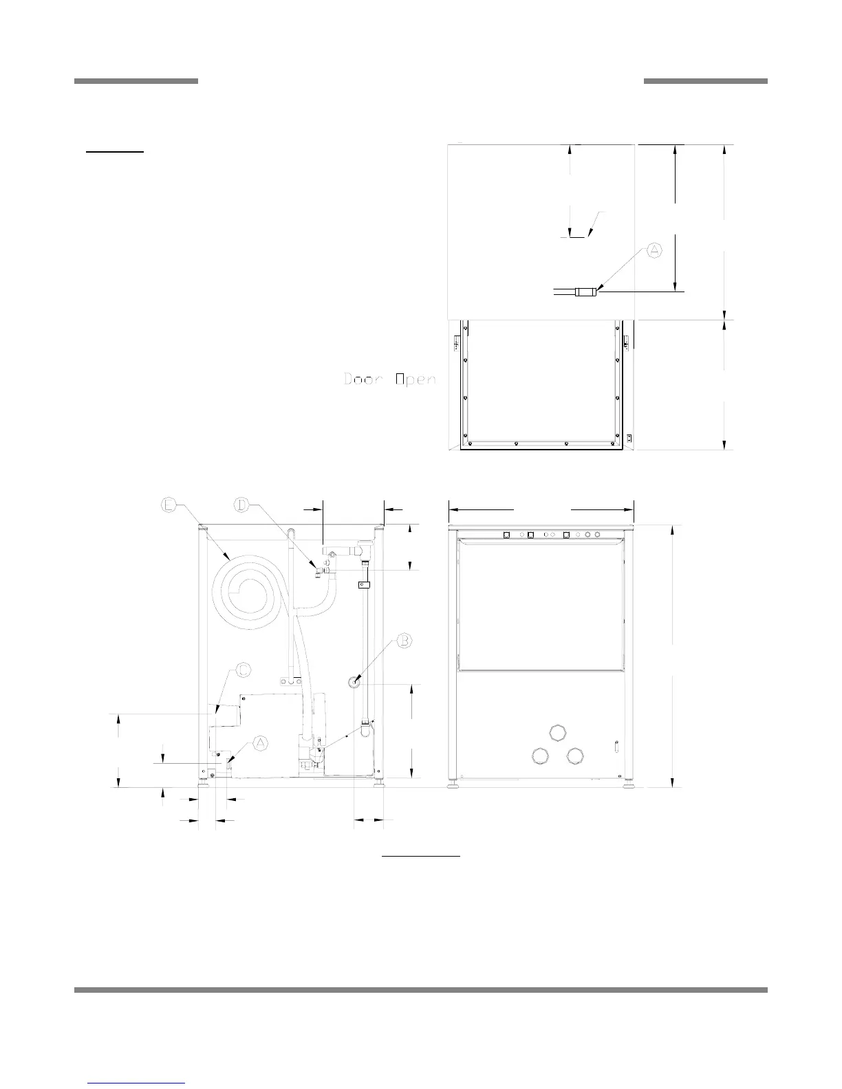
JPX-300H/HC DIMENSIONS
4
DIMENSIONS
Height (minimum): 33 1/4” (84.5 cm) Inside Clearance Height: 14 1/2” (36.8 cm)
Height (maximum): 34 1/4” (87 cm) Inside Clearance Width: 20 1/4” (51.4 cm)
Width: 24” (60.9 cm) Inside Clearance Depth: 21 1/4” (54 cm)
Depth: 22 5/8” (57.5 cm) Door Open Depth: 39 1/2” (100.3 cm)
Wall Clearance (minimum): 2 1/2” (6.4 cm)
*All dimensions are for reference only and are subject to change without notice.
LEGEND
A - Water Inlet 1/2” Female Pipe Thread, 2 1/2” AFF
B - Chemical Feeder Connection
C - Electrical Connection
D - Rinse Additive Connection
E - Drain Connection Flexible Hose 6’ Free Length,
1” ID x 1 3/8” OD
12”
(30.5 cm)
19”
(48.3 cm)
24”
(60.9 cm)
33 1/4”
(84.5 cm)
6 1/2”
(16.5 cm)
8 1/2”
(21.6 cm)
13 1/4”
(33.7 cm)
4 5/8” (11.7 cm)
4 1/4”
(10.8 cm)
2 1/4”
(5.7 cm)
22 5/8”
(57.5 cm)
16 3/4”
(42.5 cm)
4 1/2”
(11.4 cm)
C

Related product manuals