EasyManua.ls Logo

Jacuzzi J - 355 - Technical Information; Circuit Board Diagrams

Jacuzzi J - 355
64 pages
Print Icon
To Next Page IconTo Next Page
To Next Page IconTo Next Page
To Previous Page IconTo Previous Page
To Previous Page IconTo Previous Page
Loading...
49
J-300
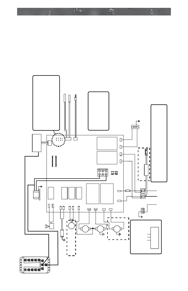
16.0 Circuit Board Diagrams
16.1 North American J-335, J-345, J-355, J-365 and J-375
Dedicated Power Models (60 Hz)
This wiring diagram is used for all North American, 240V (60 Hz)
dedicated power models.
OR
Mini-Din Cable provides
constant 12 VAC from
yellow transformer wires
Mini-Din Control
Panel Cable
Light DCU
1
2
3
4
5
6
7
8
9
10
POWER
EXP BAR EXP BAR
Stereo
Power Supply
CLEARRAY
GRN
TB1
Standard 240 VAC, 3-Wire Connection (60 Hz, 1-Phase Service)
USE COPPER CONDUCTORS ONLY. WIRE SIZE MUST BE APPROPRIATE
PER NEC AND/OR LOCAL CODES. THE MAX SUPPLY CONNECTOR
AMPACITY IS 60A. THE AMPERE RATING OF SUPPLY CONDUCTOR
OVERCURRENT PROTECTIVE DEVICE IS 60A.
RED
RED
J6
BLK
J5
WHT
WHT
RED
BLK
BLK
WHT
BLK
RED RED
BLK BLK
BLK
2
1
Hi - limit / freeze sensor
Temperature sensor
J1
J2
J3
F1
30A, 250V
SC-30
Pump 1
Circ
Pump
Pump 2
Transformer
240 VAC
J4
F1
JP1
4
2
3
1
6 5
8 7
HI
HI
LO
Control Panel
J20
K1
K2
K3
K4
K5
K6 K7 K8
J21
J11
J12
J13
J14
J15
J16
J17
J18
J19
J7 J8
J9
J10
This device complies with Part 15 of the
FCC rules. Operation is subject to the
following two conditions:
1. This device may not cause harmful
interference.
2. This device must accept any inteference
received including interference that may
cause undesired operation.
Heater
5.5 kW
240 VAC
WHT
BLK
LED Lighting
System DCU
EXTERNAL SERVICE PANEL
BOX DISCONNECT MEANS
MUST BE LOCATED NO CLOSER
THAN 5 FT. (1.52m) FROM THE
INSIDE WALLS OF THE SPA AND
WITHIN SIGHT OF SPA
MAIN POWER
ON//OFF SHUTOFF
SWITCH
Logic Jumper Settings
JP1 1-2 ON = 40A Logic
JP1 1-2 OFF = 50A Logic (Factory Default Setting)
JP1 3-4 ON = 2 Pump Operation
JP1 3-4 OFF = 1 Pump Operation
JP1 5-6 ON = 60A Logic (Remove JP1 1-2 Jumper)
JP1 5-6 OFF = Leave Off for 40A or 50A Logic
JP1 7-8 ON = Celsius Temperature Display
JP1 7-8 OFF = Fahrenheit Temperature Display
WHT
BLK
C
(Not offered on all models)
(Not offered on
all models)
Flow sensor
(Not offered
on all models)
Ports 1-10
power spa
lights, waterfall
lights and step
lights on
applicable
models

Table of Contents

Related product manuals