EasyManua.ls Logo

Jade Built-In Refrigerators - Page 20

Jade Built-In Refrigerators
21 pages
Print Icon
To Next Page IconTo Next Page
To Next Page IconTo Next Page
To Previous Page IconTo Previous Page
To Previous Page IconTo Previous Page
Loading...
FIG. 18
INSTALLATION GUIDE – SPECIAL CONSIDERATIONS
Installation Checklist:
INSTALLER
Doors
q Handles are solidly attached to doors.
q Doors seal completely to refrigerator cabinet.
q Door handle alignment is correct (framed models).
q Door seals are not pinched.
q Screws/sharp objects have not been driven into the doors.
Leveling
q L brackets are secured to 2x4 wood block.
q Stabilizing legs are against floor. Cabinet is secure.
q Toe kickplate is properly attached to refrigerator and
aligned with floor.
Icemaker
q Water supply to refrigerator is turned on and lines have
been flushed.
q Water leaks are not present at connection between
house-hold water supply and refrigerator.
q Icemaker arm is down for ice production.
q PuriClean
®
ice and water filtration system is installed
correctly, if applicable.
q Water has been purged from the fountain on dispenser models.
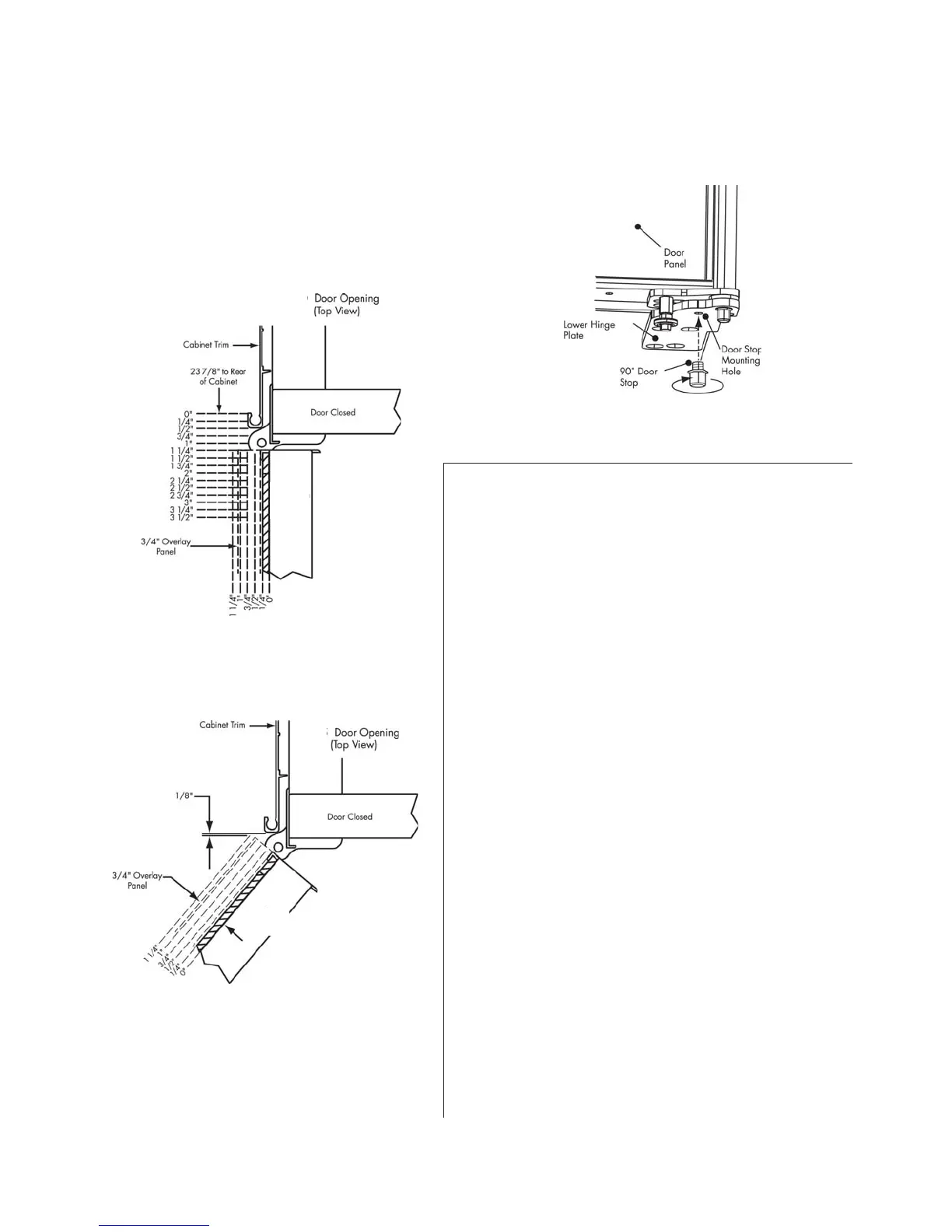
FIG. 16
FIG. 17
Figures 16 and 17 let you see what considerations you
need to make for any custom panel applications, and
how they may interact with adjacent cabinets and/or
countertops. Also refer to the Installation Guidelines for
framed and overlay models on pages 14 — 17.
Tool Requirements:
Tape measure
Level
Stud finder
Drill with various bits
Socket set
Utility knife
Magnetic extended screwdriver
Phillips screwdriver
Torx bit
Cardboard, carpet remnant or other protective material for flooring
Steel hanger strap
90˚ Door Stop
Both doors are designed to open 135˚. To restrict one or both
doors to a 90˚ opening, use the door stops supplied in this kit.
With the doors closed, screw a door stop into the
underside of the lower hinge plate as illustrated above.
18
90º
Door
Open
90º
135º
Door Open
135º