EasyManua.ls Logo

Jands HP6 - Page 95

Default Icon
96 pages
Print Icon
To Next Page IconTo Next Page
To Next Page IconTo Next Page
To Previous Page IconTo Previous Page
To Previous Page IconTo Previous Page
Loading...
Title
Number RevisionSize
A2
Date: 27-Apr-2000 Sheet of
File: D:\R_&_D\HPDIMMER\CIRCUIT\Dimcpu5.s01Drawn By:
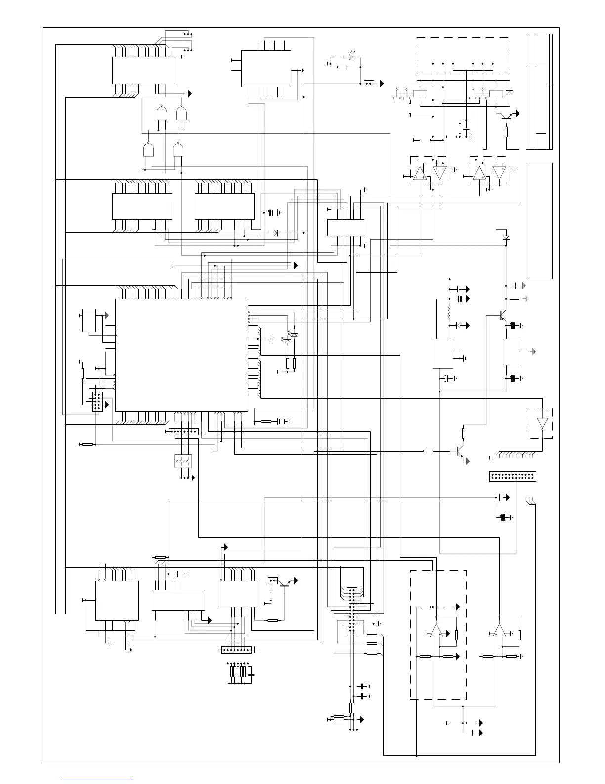
CIRCUIT COMMENTS
- The DMX-512 input can be used in loop back or party line mode. - Mains fluctuations can be
compensated.
- FLASH ROM program storage.
CE1
1nF
RE5
4k7
RE4
10k
RE3
18k
RE2
39k
RE1
82k
R45
10k
Q4
BCX19
R13
10k
R43
100k
R42
100k
Q3
BCX19
1
2
3
IC15A
74HC00
C5,6,7,8,9
100nF
+5
C1
10nF
C2
10nF
+5
IC9,13
2003
R36
56R
+5
+5
C15
100nF
R12
10k
R27
3k3
+5
IC14A
324
R34
10k
+5
R14
1M
R35
22k
R38 2k2
A0
12
A1
11
A2
10
A3
9
A4
8
A5
7
A6
6
A7
5
A8
27
A9
26
A10
23
A11
25
A12
4
A13
28
A14
29
A15
3
CE
22
OE
24
D0
13
D1
14
D2
15
D3
17
D4
18
D5
19
D6
20
D7
21
A16
2
A17
30
VPP
1
IC10
27020
+5
R2
220
R1
220
R4
10k
R3
10k
+5
C17
10uF
+5
R26
1k
LED3
RESET
R18,19,22
22k
R13,15,16
1M
+5
RLY1
MR62
RLY2
MR62
R5
120R
+5
R7
10R
C16
10nF
+5
R17,20,21
10k
IC14B,C,D
324
D0
111
A1
20
D1
110
A2
21
D2
109
A3
22
D3
108
A4
23
D4
105
A5
24
D5
104
A6
25
D6
103
A7
26
D7
102
A8
27
D8
100
A9
30
D9
99
A10
31
D10
98
A11
32
D11
97
A12
33
D12
94
A13
35
D13
93
A14
35
D14
92
A15
37
D15
91
A16
38
A17
41
A18
42
A19
121
A20
122
A21
123
A22
124
A23
125
AS
82
R/W
79
SIZ0
81
SIZ1
80
BERR
70
DSACK0
89
HALT
69
RESET
68
BR
113
BG
114
XTAL
60
BGACK
115
IRQ1
77
IRQ2
76
IRQ3
75
IRQ4
74
IRQ5
73
IRQ6
72
IRQ7
71
A0
90
TP0
16
TP1
16
TP2
14
TP3
13
TP4
12
TP5
11
TP6
10
TP7
9
TP8
6
TP9
5
TP10
4
TP11
3
TP12
132
TP13
131
TP14
130
TP15
129
T2CLK
128
FC2
120
FC1
119
FC0
118
DSACK1
88
CSBOOT
112
AVEC
87
RMC
86
DS
85
MODCLK
78
IFETCH
55
IPIPE
54
BKPT
56
FREEZE
58
TSTME
57
EXTAL
62
XFC
64
CLKOUT
66
VDDSYN
61
MISO
43
MOSI
44
SCK
45
PCSO
46
PCS1
47
PCS2
48
PCS3
49
TXD
52
RXD
53
VSTBY
19
IC1
68332
+5
Vcc
20
Vin
1
INT
9
Vrf(-)
11
OFL
18
Vrf(+)
12
DB0
2
DB1
3
DB2
4
DB3
5
CS
13
DB4
14
RD
8
DB5
15
WR/RDY
6
DB6
16
MODE
7
DB7
17
IC4
ADC0820
X0
13
X1
14
X2
15
X3
12
X4
1
X5
5
X6
2
X7
4
INH
6
A
11
B
10
C
9
VEE
7
X
3
IC6
4051
+5
BATT
CR2032
+5
1
2
3
45
6
7
8
SW1
LED1
Red
LED2
Green
R24
1k
R23
1k
+5
OC
1
C
11
1D
2
2D
3
3D
4
4D
5
5D
6
6D
7
7D
8
8D
9
1Q
19
2Q
18
3Q
17
4Q
16
5Q
15
6Q
14
7Q
13
8Q
12
IC5
74HC573
R25
1k
R37
1k
Q1
BCX19
+5
+5
CEO
12
CEI
13
VOUT
2
VCC
3
VBATT
1
RES
16
WDI
11
GND
4
OSC1
7
OSC2
8
LOW
6
PFI
9
PFO
10
BAT-ON
5
/RES
15
WDO
14
IC8
MAX691
+5
R10
10k
+5
+5
A0
12
A1
11
A2
10
A3
9
A4
8
A5
7
A6
6
A7
5
A8
27
A9
26
A10
23
A11
25
A12
4
A13
28
A14
3
A15
31
CE
22
OE
24
D0
13
D1
14
D2
15
D3
17
D4
18
D5
19
D6
20
D7
21
A16
2
WE
29
CS
30
VCC
32
IC2
62010
A0
12
A1
11
A2
10
A3
9
A4
8
A5
7
A6
6
A7
5
A8
27
A9
26
A10
23
A11
25
A12
4
A13
28
A14
3
A15
31
CE
22
OE
24
D0
13
D1
14
D2
15
D3
17
D4
18
D5
19
D6
20
D7
21
A16
2
WE
29
CS
30
VCC
32
IC3
62010
R9
10k
R30,29,28
22k
R33,32,31
4k7
+5
C18
10uF
D1
HER303
L1
220mH
C3
220uF
C4
220uF
R11
10k +5
D2
BAV21
R39
100k
+5
C11
100nF
+5
R40 2k2
R41 2k2
+5
4
5
6
IC15B
74HC00
8
9
10
IC15C
74HC00
11
12
13
IC15D
74HC00
Vin
1
35'G
+12V
2
REG2
MC78L12CG
C22
10uF
C21
10uF
Q2
BCX17
R6
10k
R8
10k
C20
100nF
D3
BAV21
+5
.
IC11
75176
IC12
75176
IC7
GAL16V8
,
+5
D4
1N4004
+5
2
(For test only)
External DAC
JP2
JP1
10,12,13,14,19
5
4
6
7
1
8
5
6
7
A
B
C
A15
A17
DXO
SZ1
SZ0
LWR
HWR
RRD
HC
LC
nc
RXD
CON
TXD
A0
RAM
COL
RW
AS
nc
Mux Expansion
100k
RN1
Zero cross gens
A0
A1
1
ELSE
Input
Encoder
EPROM SIZE
256
RST
16MHz
+
-
+
-
Input
Output
DMX
sh
sh
D.Timmins
1265.82/B2.2
JANDS
HP Dimmer CPU
Drive to Optos
address
data
BDM
CN1
Spkr
2832
A1
+5
Temp
gnd
Unreg
HSinA
HSinB
HSinC
Ch1
Ch2
Ch3
Ch4
Ch5
Ch6
Ch7
Ch8
Ch9
Ch10
Ch11
Ch12
Overvoltage Warning
2
+5
LM2575-5
REG1
2
4
1
Vin
GND
/ON
Out
FB
3
5
Power Supply
To Power PCB
D15
D15D7
D15
D15
D0
C
B
A
A
B
C
Sns
(View from solder side)
TO FRONT PANEL CARD
WE
31
Flash Control
/28F020
4
8
2
3
1
3
2

Table of Contents

Related product manuals