EasyManua.ls Logo

jcb G20QS - Canopy Delete Set - Side View

jcb G20QS
177 pages
Print Icon
To Next Page IconTo Next Page
To Next Page IconTo Next Page
To Previous Page IconTo Previous Page
To Previous Page IconTo Previous Page
Loading...
About the Product
Installation and Removal
19 9831/0650-3 19
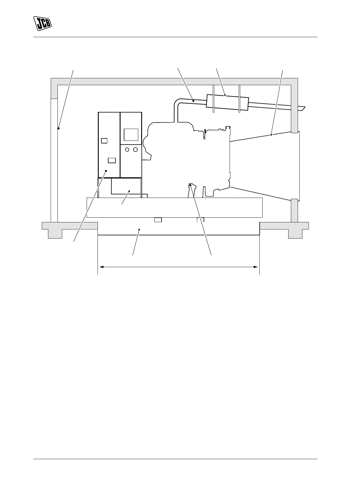
Figure 13. Canopy Delete Set - Side View
H
B
DA
C
F G
E
J
A Access door B Exhaust pipe
C Exhaust silencer D Hot air outlet ducts
E Control panel F Concrete base
G Generator set H Generator length + 200mm
J Alternator
The above figure shows a typical exhaust mounting arrangement. Operator can modified the exhaust mounting
arrangement as per their requirement.

Table of Contents

Related product manuals