EasyManua.ls Logo

JESS WELDING MIG 296 - Schaltpläne

JESS WELDING MIG 296
Print Icon
To Next Page IconTo Next Page
To Next Page IconTo Next Page
To Previous Page IconTo Previous Page
To Previous Page IconTo Previous Page
Loading...
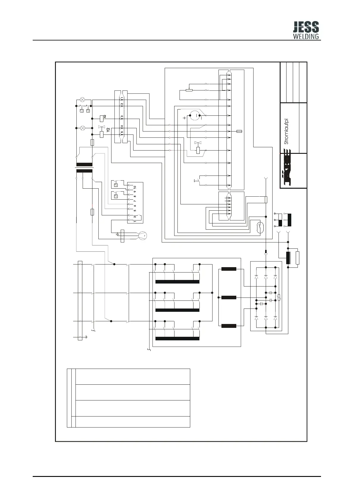
Betriebsanleitung Seite 23
12. Schaltpläne
Schaltplan MIG 296
KontakteStufe
1
Q2 Stufenschalter
2-5 8-9
22-23 26-27 30-31
2
24-23
8-9
26-27 30-31
2-5
14-13
14-13
3
4
5
6
24-23 30-31
8-92-5 14-13
28-27
24-23
8-92-5 14-13
28-27
30-31
32-31
4-5 10-9 16-13
22-23 26-27
24-23 26-27 30-31
24-23 26-27 30-31
4-5 10-9 16-13
4-5 10-9 16-13
4-5 10-9 16-13
7
8
9 6-5 12-9 18-13
6-5 12-9 18-13
6-5 12-9 18-13
6-5 12-9 18-13
24-23 30-3128-27
24-23 30-3128-27
24-23 28-27 32-31
24-23 28-27 32-31
30-3122-23 26-27
10
12
11
Name:
Datum:
Nr.:
400V 3~50Hz
Stromlaufplan
1 3 5
2 4 6
PE L1 L2 L3
K1
Lüster-
klemme
2
4
6
24
22
8
10
12
28
26
14
16
18
32
30
5 9
23 27 31
13
A
E
Q2Q2
T1T1
Q1
2 4 6
531
MIG 296
Schweiß- und
Schneidtechnik
F1
T2
400 V
230 V
0 V
42 V
0 V
F2
H2
4b
1210 11
3b2b1b
9
8a
8a
8
7a
7a
7
6a
6a
6
5a
5
4a
4a
4
5a
3a
3a
3
2a
1a
21
2a
4b 6b5b
M
T 6,3 AF2
1a1 2 3 4 5 6
Brenner
+
35 4 2 1
S1
Zwischen-
Schlauchpaket
externen
müssen
Brücken 3b-5b und 2b-6b
Bei Anschluß eines
die
Drahtvorschub-Potis R1
Drahtvorschubkoffer
klemme
Lüster-
Lüster-
klemme
Y1
3b1b 2b
entfernt werden
(nicht bei MSE).
Tuchel 5 pol.
1µF
M
1
blau
braun
schw.
M2
VR 1
S8 S9
regelplatine
A1 Ventilator-
ab 13.01.97
Venti-
lator
H1
T 6,3 A
T 2 A
S6
S7
K1
A1
V1
L1
R2
Werkstück
-
M1
Steuerbox MS15/MSE
S3S3S3S3S3S3S3S3
R3
MSE 2
R1
Gerlach
06.09.00
MIG-296.002
C1 Kondensator 1µF/400V
F1
F2
H1 Kontrolleuchte Netz
M1
L1
K1
Drossel
H2
Drahtvorschubmotor 42 V
Sicherung T2 sek.
Sicherung T2 prim.
Störleuchte Temperatur
Netzschütz
Q1
Stufenschalter
Q2
Netzschalter
R1
R2
Drahtvorschub-Poti
Widerstand
extern
440.020.044
440.220.038
S7
S8 Thermosch.
SchweißtrafoT1
SteuertrafoT2
Gleichrichter
Y1
V1
Magnetventil
Magnetventil i. Koffer
i. GerätY2
S9 Thermosch. Trafo 80° C
Gleichr. 50° C
Trafo 170° C
S1 Brennertaster
S3 Reed-Schalter (Einschl.)
S6
Thermosch.
Thermosch. Gleichr. 80° C
R3 Nebenwiderstand (Shunt)
AE

Related product manuals