EasyManua.ls Logo

JESS WELDING MIG 296 - Circuit Diagrams

JESS WELDING MIG 296
Print Icon
To Next Page IconTo Next Page
To Next Page IconTo Next Page
To Previous Page IconTo Previous Page
To Previous Page IconTo Previous Page
Loading...
operation instructions page 23
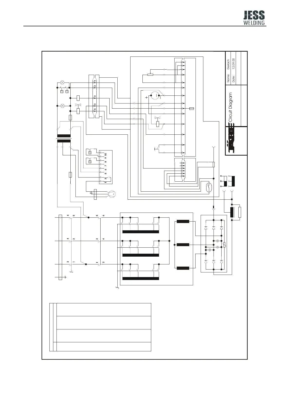
11. Circuit diagrams
Circuit diagram MIG 296
1
Q2
2-5 8-9
22-23 26-27 30-31
2
24-23
8-9
26-27 30-31
2-5
14-13
14-13
3
4
5
6
24-23 30-31
8-92-5 14-13
28-27
24-23
8-92-5 14-13
28-27
30-31
32-31
4-5 10-9 16-13
22-23 26-27
24-23 26-27 30-31
24-23 26-27 30-31
4-5 10-9 16-13
4-5 10-9 16-13
4-5 10-9 16-13
7
8
9 6-5 12-9 18-13
6-5 12-9 18-13
6-5 12-9 18-13
6-5 12-9 18-13
24-23 30-3128-27
24-23 30-3128-27
24-23 28-27 32-31
24-23 28-27 32-31
30-3122-23 26-27
10
12
11
Name:
Nr.:
400V 3~50Hz
PE L1 L2 L3
K1
2
4
6
24
22
8
10
12
28
26
14
16
18
32
30
5 9
23 27 31
13
A
E
Q2Q2
T1T1
Q1
MIG 296
Schweiß- und
Schneidtechnik
F1
T2
400 V
230 V
0 V
42 V
0 V
F2
Y2
H2
4b
1210 11
3b2b1b
9
8a
8a
8
7a
7a
7
6a
6a
6
5a
5
4a
4a
4
5a
3a
3a
3
2a
1a
21
2a
4b 6b5b
M
T 6,3 AF2
1a1 2 3 4 5 6
+
35 4 2 1
S1
Y1
3b1b 2b
Tuchel 5 pol.
1µF
VR 1
S8 S9
H1
T 6,3 A
T 2 A
S6
S7
K1
A2
A1
V1
L1
R2
-
M1
S3S3S3S3S3S3S3S3
R3
MSE 2
R1
Gerlach
Circuit Diagram
Date: 12.09.00
MIG-296.032
workpiece
torch
wire feed unit
control box MS15/MSE
luster-
terminal
luster-
terminal
luster-
terminal
The bridges 3b-5b and 2b-6b
must be removed if an ext.
wire feed poti is connected.
transition
hose-pack
A1 fan control
p.c.b. since
13.01.97
fan
weld grade switch
grade contacts
H1
M2
M1
L1
K1
H2
C1
F1,F2
condensator 1µF/400V
fuse aux. transformer
mains control lamp
malfunction lamp temp.
mains contactor
choke
wire feed motor 42V
fan
Q1
Q2
master switch
weld grade sw. coar.
R3
R1
R2
wire feed poti ext.
resistor
resistor shunt
S1 torch trigger
S3 reed switch (creep-in)
S6
S7 thermoswitch transf. 170°C
thermoswitch tect. 80° C
S8
S9S9
thermoswitch rect. 50° C
thermoswitch transf. 80° C
T1
T2
welding transformer
aux. transformer
Y1
Y2
V1 rectifier
solenoid valve
solenoid valve
440.220.038
440.020.044
M
1
blue
brown
black
M2
AE

Related product manuals