EasyManua.ls Logo

JESS WELDING MIG 296 - Page 28

JESS WELDING MIG 296
Print Icon
To Next Page IconTo Next Page
To Next Page IconTo Next Page
To Previous Page IconTo Previous Page
To Previous Page IconTo Previous Page
Loading...
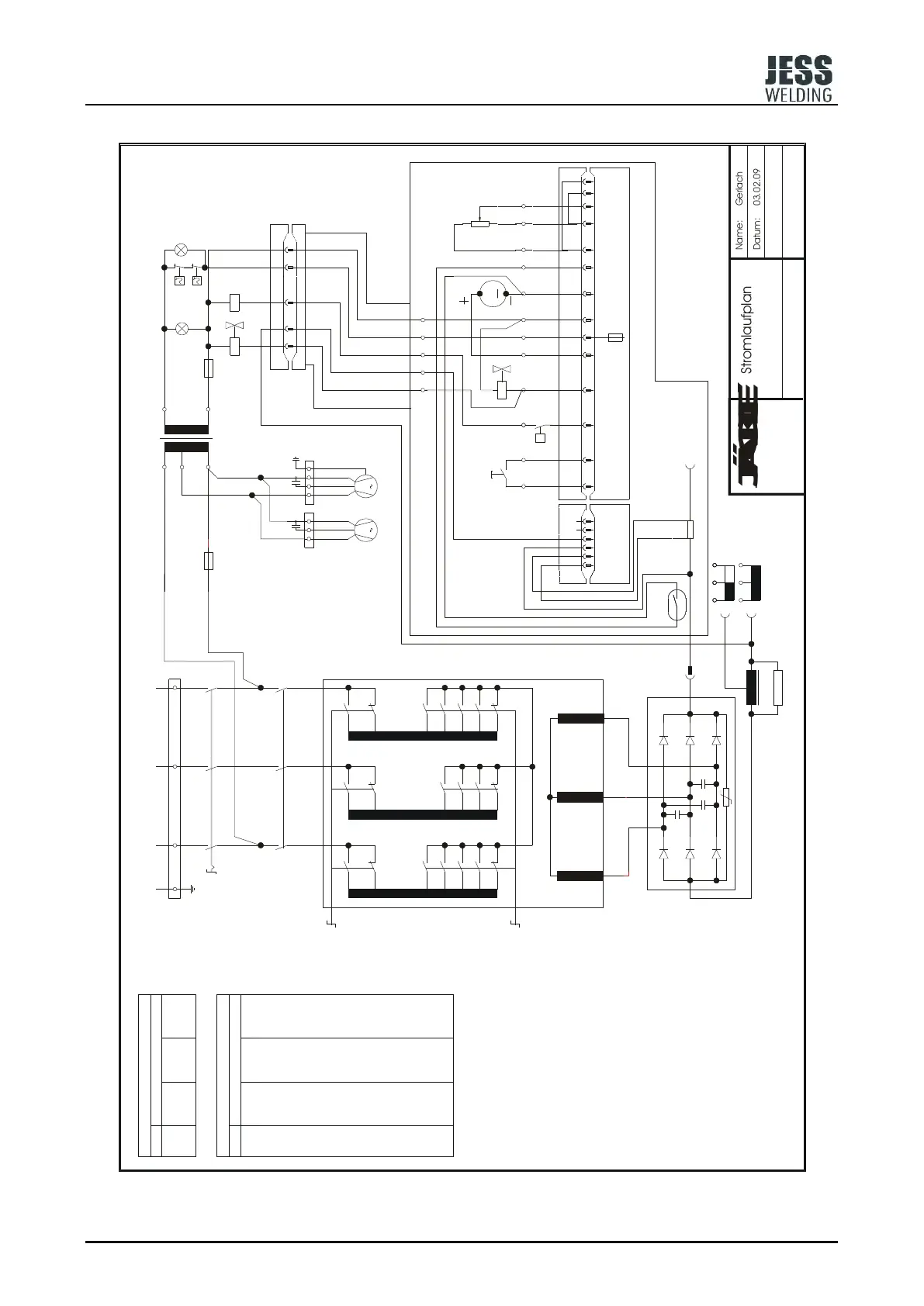
Betriebsanleitung Seite 25
Schaltplan MIG 326 / 406 / 506 Wasserkühlung
Name:
Datum:
Nr.:
Stromlaufplan
Kontakte
1
Stufe
KontakteStufe
1
Q2 grobStufenschalter
Q3 Stufenschalter fein
2
3
4
5
6
7
8
9
10
11
12
2 11-10
9-101-2
3-2
5-6
7-6
1-2
3-2
3-2
3-2
1-2
1-2
27-10
5-2
5-2
5-2
7-2
7-2
7-2
15-6
9-6
9-6
9-6
13-6
13-6
13-6
11-6
11-6
11-6
17-6
17-6
25-10
25-10
19-10
19-10
19-10
23-10
23-10
23-10
21-10
21-10
21-10
Schweiß- und
Schneidtechnik
PE L1 L2 L3
Q1
1 3 5
642
Lüster-
klemme
1 3 5
2 4 6
K1
Q2
3
1
27
6 2 10
2 1
4
6
8
5 910
12
17
13
11
9
15
7
5
21
23
19
25
T1
F1
T2
400 V
230 V
0 V
42 V
0 V
F2
Y2
H2
4b
1210 11
3b2b1b
9
8a
8a
8
7a
7a
7
6a
6a
6
5a
5
4a
4a
4
5a
3a
3a
3
2a
1a
21
2a
4b 6b5b
M
T 6,3 AF2
Steuerbox MS9/MS14/MSE
1a1 2 3 4 5 6
Brenner
+
35 4 2 1
S1
Zwischen-
Schlauchpaket
externen
müssen
Brücken 3b-5b und 2b-6b
Bei Anschluß eines
die
Drahtvorschub-Potis R1
Drahtvorschubkoffer
klemme
Lüster-
Lüster-
klemme
5 4 3 2 1
Y1
3b1b 2b
entfernt werden
(nicht bei MSE).
Tuchel 5 pol.
V1
L1
R2
Werkstück
-
H1
T 6,3 A
T 2 A
S6
S7
K1
A2
A1
M1
M
1
blau
schw.
braun
M3
5 µF
M
1
blau
braun
schw.
M2
1 µF
Venti-
lator
S1 Brennertaster
S3 Reed-Schalter
3a
P
S4
32
2a
S6 Thermosch.
S7 Thermosch.
Gleichr. 80° C
Trafo 170° C
SchweißtrafoT1
SteuertrafoT2
Gleichrichter
Y1
V1
Magnetventil
Magnetventil i. Koffer
i. GerätY2
S4 Druckschalter Wasser
400V 3~50Hzmit Wasserkühlung
MIG 326/406/506
S3S3S3S3
R3
MSE 2
R1
Gerlach
03.02.09
MIG-326.008
H1
M2 Ventilator
M1
L1
K1 Netzschütz 42 V
Drossel
Drahtvorschubm. 42 V
230 V
Kontrolleuchte Netz
H2 Störungsleuchte
C1 Kondensator 1µF/400V
F1,F2 Sicherung Steuertr.
Temp.
Q3
R1
R2
Q1
Stufenschalter
Q2
Q3 Stufenschalter
Drahtvorschub-Poti
Widerstand
extern
Netzschalter
fein
grob 440.032.107
440.032.106
440.020.044
230 VM3 Wasserpumpe
R3 Nebenwiderstand (Shunt)

Related product manuals