EasyManua.ls Logo

Johnson Controls ZJ Series - ZJ078-150 Unit Accessory Weights; ZJ078-120 Physical Dimensions

Johnson Controls ZJ Series
73 pages
Print Icon
To Next Page IconTo Next Page
To Next Page IconTo Next Page
To Previous Page IconTo Previous Page
To Previous Page IconTo Previous Page
Loading...
5803635-YIM-A-0220
Johnson Controls Ducted Systems 9
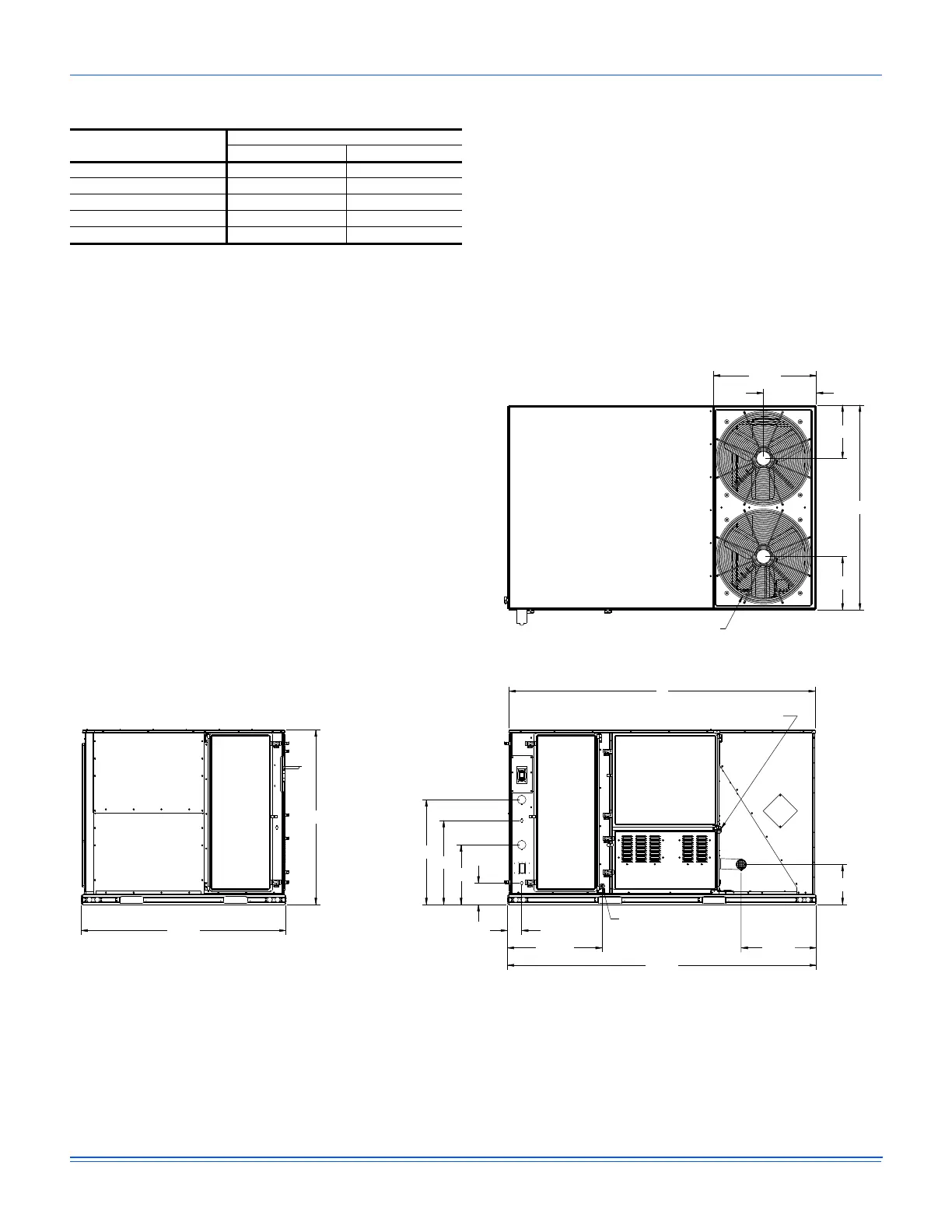
Figure 8: ZJ078-120 Physical Dimensions
Table 3: ZJ078-150 Unit Accessory Weights
Unit Accessory
Weight (lbs.)
Shipping Operating
Economizer 90 85
Power Exhaust 40 35
Electric Heat
1
1. Weight given is for the maximum heater size available
(54KW).
49 49
Gas Heat
2
2. Weight given is for the maximum number of tube heat
exchangers available (8 tube).
110 110
Variable Frequency Drive
3
3. Weight includes mounting hardware, controls and manual
bypass option.
30 30

Table of Contents

Related product manuals